Аренда 1 линия, напротив пешеходного перехода

ПСН
Дата обновления - 16.06.2025
Итоговая цена 185 500 ₽ / мес Итоговая цена
Стоимость за 1 м² 2 500 ₽ / мес
Стоимость за 1 м²
ПСН
Дата обновления - 16.06.2025

Аренда 1 линия, напротив пешеходного перехода

ХАРАКТЕРИСТИКИ ПОМЕЩЕНИЯ
Тип сделки
Аренда
Тип помещения
ПСН
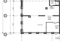
Площадь помещения
74 м²
Этаж
1
Высота потолков
3.75 м
Отделка
Черновая
Вход в помещение
Выборгский
ХАРАКТЕРИСТИКИ ЗДАНИЯ
Этажность
7
Парковка
Открытая
КОНСУЛЬТАЦИЯ НАШЕГО ЭКСПЕРТА
КОМПАНИИ БАЗА
Эксперт проекта
Вы можете позвонить или написать мне в whatsapp:
или нажмите на кнопку, чтобы записаться на просмотр, и в ближайшее время я свяжусь с вами
ОПИСАНИЕ ОБЪЕКТА
⭐Предлагаем в аренду Коммерческое помещение на 1 линии на Лесном проспекте 23а
ЖК Илона iLona. Данный ЖК находится в пешей доступности от станции Выборгская. Помещение имеет лучшее расположение. На перекрестке на против пешеходного перехода Каникулы предоставляем. .



✅Основные характеристики:
• Площадь: 74,2 м2;
• Мощность электросети: 10 кВт;
• Высота потолков:3,75 метра;
• Этаж:1;
• В 5  минутах от метро Выборгская;


 ⭐Стоимость, условия сделки:
• Арендная ставка -  185 500 руб./мес.; 
• Обеспечительный платеж - 100% (185 500руб.);
• Срок договора - длительный (от 11 мес.);


✅Описание:
• Высокий пешеходный и автомобильный трафик;
• Отдельный вход/ 1 входа;
• Витринные окна;
• Вывеска, места под рекламу;
• Все коммуникации: телефонные линии, водоснабжение, канализация, теплоснабжение;
• Юр. статус: собственность.

✅ Подойдет под любой вид деятельности;




☎ Звоните, организуем просмотр в удобное Вам время.

⭐ Мы – АГЕНТСТВО НЕДВИЖИМОСТИ СЕВЕРО-ЗАПАДА – лидирующий эксперт рынка недвижимости Санкт-Петербурга и Ленинградской области.
Наши агенты закрывают более 300 сделок в год.
Мы строим долгосрочные деловые отношения на основе принципов честности и качественного сервиса с нашими клиентами.
⭐ Работая с нами, вы получите:
✅ Высокое качество сопровождения сделки от начала и до конца;
✅ Широкий спектр сопутствующих услуг;
✅ Оптимизацию ваших расходов при заключении сделки;
✅ Экономию Ваших нервов и времени при переговорах;
✅ Доступ к уникальной базе объектов, многие из которых отсутствуют в открытой рекламе;
✅ Помогаем оформлять ипотеку!

⭐Заходите в наш профиль, чтобы ознакомиться с нашими актуальными предложениями!
Если не нашли в нашем профиле то, что Вам подходит – позвоните ☎, и мы обязательно подберем нужный объект по самым выгодным условиям на рынке коммерческой недвижимости!

⭐ Добавьте объявление в Избранное, чтобы не потерять!

С Уважением, Юрий.
Недвижимость Северо-Запада.
показать все описание
Заинтересовал объект?
Оставьте свой номер - наш эксперт свяжется с Вами, ответит на все вопросы и запишет на просмотр
РАСПОЛОЖЕНИЕ ОБЪЕКТА НА КАРТЕ
Заинтересовал объект?
Оставьте свой номер - наш эксперт свяжется с Вами, ответит на все вопросы и запишет на просмотр
РАСПОЛОЖЕНИЕ ОБЪЕКТА НА КАРТЕ
Другие объекты компании
Аренда
Эксклюзив
367
20.08.2024
location_white Санкт-Петербург г, Чапаева ул, 17к2стр1
Площадь
73.85 м²
Цена за м²
2 694 ₽
Этажей в здании
10
Этаж
1
Аренда
156
14.04.2025
location_white Санкт-Петербург г, Санкт-Петербург г, Просвещения пр-кт, 43
Площадь
1022.30 м²
Цена за м²
1 320 ₽
Этажей в здании
2
Этаж
1
Аренда
110
27.05.2025
location_white Ленинградская обл, Тельмана г, Красноборская дорога, 2
Площадь
1152.00 м²
Цена за м²
650 ₽
Этажей в здании
1
Этаж
1
Аренда
67
18.06.2025
location_white Ленинградская обл, Янино-1 гп, Ветряных мельниц (Янила Кантри мкр) ул, 3
Площадь
100.00 м²
Цена за м²
1 600 ₽
Этажей в здании
1
Этаж
2