Аренда 156.2м2

ПСН
Дата обновления - 17.03.2025
Итоговая цена 781 000 ₽ / мес Итоговая цена
Стоимость за 1 м² 5 000 ₽ / мес
Стоимость за 1 м²
ПСН
Дата обновления - 17.03.2025

Аренда 156.2м2

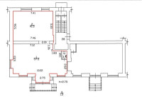
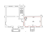
ХАРАКТЕРИСТИКИ ПОМЕЩЕНИЯ
Тип сделки
Аренда
Тип помещения
ПСН
Площадь помещения
156 м²
Этаж
1
Высота потолков
3.00 м
Отделка
Чистовая стандарт
Вход в помещение
Калининский
ХАРАКТЕРИСТИКИ ЗДАНИЯ
Этажность
8
Парковка
Открытая
КОНСУЛЬТАЦИЯ НАШЕГО ЭКСПЕРТА
КОМПАНИИ БАЗА
Эксперт проекта
Вы можете позвонить или написать мне в whatsapp:
или нажмите на кнопку, чтобы записаться на просмотр, и в ближайшее время я свяжусь с вами
ОПИСАНИЕ ОБЪЕКТА
⭐Предлагаем в аренду помещение на народной тропе около метро Академическая. Состоит из двух помещений, можно снять целиком или часть.

✅Основные характеристики:
• Площадь: 156.2м2(100.5м2+55.7м2);
• Мощность электросети: 30 кВт;
• Высота потолков:2.75м;
• Этаж: 1;
• В 2 минутах от метро Академическая;


⭐Стоимость, условия сделки:
• Арендная ставка за помещение целиком 156.2м2 - 781 000 рублей в месяц (5000 за 1м2);
• Арендная ставка 100,5м2  - 502 500 рублей в месяц;
• Арендная ставка 55.7м2 - 278 500 рублей в месяц;
• Обеспечительный платеж - 100% ;
• Срок договора - длительный (от 11 мес.);


✅Описание:
• Высокий пешеходный и автомобильный трафик;
• Отдельный вход с улицы и со двора;
• Витринные окна ;
• Вывеска, места под рекламу;
• Помещение в хорошем состоянии;
• Все коммуникации: телефонные линии, водоснабжение, канализация, теплоснабжение;
• Юр. статус: собственность.

✅ Подойдет под любой вид деятельности;




☎ Звоните, организуем просмотр в удобное Вам время.

⭐ Мы – АГЕНТСТВО НЕДВИЖИМОСТИ СЕВЕРО-ЗАПАДА – лидирующий эксперт рынка недвижимости Санкт-Петербурга и Ленинградской области.
Наши агенты закрывают более 300 сделок в год.
Мы строим долгосрочные деловые отношения на основе принципов честности и качественного сервиса с нашими клиентами.
⭐ Работая с нами, вы получите:
✅ Высокое качество сопровождения сделки от начала и до конца;
✅ Широкий спектр сопутствующих услуг;
✅ Оптимизацию ваших расходов при заключении сделки;
✅ Экономию Ваших нервов и времени при переговорах;
✅ Доступ к уникальной базе объектов, многие из которых отсутствуют в открытой рекламе;
✅ Помогаем оформлять ипотеку!

⭐Заходите в наш профиль, чтобы ознакомиться с нашими актуальными предложениями!
Если не нашли в нашем профиле то, что Вам подходит – позвоните ☎, и мы обязательно подберем нужный объект по самым выгодным условиям на рынке коммерческой недвижимости!

⭐ Добавьте объявление в Избранное, чтобы не потерять!

С Уважением, Лунев Михаил.
Недвижимость Северо-Запада.
показать все описание
Заинтересовал объект?
Оставьте свой номер - наш эксперт свяжется с Вами, ответит на все вопросы и запишет на просмотр
РАСПОЛОЖЕНИЕ ОБЪЕКТА НА КАРТЕ
Заинтересовал объект?
Оставьте свой номер - наш эксперт свяжется с Вами, ответит на все вопросы и запишет на просмотр
РАСПОЛОЖЕНИЕ ОБЪЕКТА НА КАРТЕ
Другие объекты компании
Аренда
Архив
191
24.10.2025
location_white Ленинградская обл, городской посёлок имени Свердлова, улица Петрова Дача, 20ГА
Площадь
540.00 м²
Цена за м²
399 ₽
Этажей в здании
1
Этаж
1
Продажа
2
02.03.2026
location_white Санкт-Петербург г, Юрия Гагарина пр-кт, 20к7
Площадь
740.00 м²
Цена за м²
175 675 ₽
Этажей в здании
2
Этаж
1
Аренда
Архив
0
20.09.2024
location_white Санкт-Петербург г, Введенский канал ул, 4
Площадь
330.30 м²
Этажей в здании
1
Этаж
1
Продажа
218
27.03.2024
location_white Санкт-Петербург г, Коммунаров ул, 188к3
Площадь
67.70 м²
Цена за м²
253 000 ₽
Этажей в здании
7
Этаж
1