Аренда 2-х этажей на пр. Науки

ПСН
Дата обновления - 18.09.2025
Итоговая цена 320 000 ₽ / мес Итоговая цена
Стоимость за 1 м² 2 379 ₽ / мес
Стоимость за 1 м²
Площадь помещения
135 м²
ПСН
Дата обновления - 18.09.2025

Аренда 2-х этажей на пр. Науки

ХАРАКТЕРИСТИКИ ПОМЕЩЕНИЯ
Тип сделки
Аренда
Тип помещения
ПСН
Площадь помещения
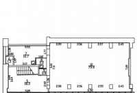
135 м²
Этаж
1
Высота потолков
3.16 м
Отделка
Чистовая стандарт
ХАРАКТЕРИСТИКИ ЗДАНИЯ
Этажность
2
Парковка
Открытая
КОНСУЛЬТАЦИЯ НАШЕГО ЭКСПЕРТА
Тлевалдэ Шуканов
Эксперт проекта
Вы можете позвонить или написать мне в whatsapp:
или нажмите на кнопку, чтобы записаться на просмотр, и в ближайшее время я свяжусь с вами
ОПИСАНИЕ ОБЪЕКТА
⭐Предлагаем в аренду двух этажное помещение на пр. Науки в отдельно стоящем здании, в густонаселенном районе.

✅Основные характеристики:
• Площадь: 134,5 м2;
• Мощность электросети: 30 кВт;
• Высота потолков: 3,16 м;
• Этаж: 1-2;
• Большие витринные окна.;
• Вытяжка-свеча организации общепита;
• Возможна работа без ограничений по шуму 24\7.
• 2 санузла, можно увеличить;
• Помещение подходит под требования любого вида деятельности:
Банкетный зал.
Ресторан-Кафе-Бар.
Компьютерный клуб.
Кальянная.
Цветы.
Медицинский центр. И т.д.
• В 15 минутах от метро Академическая;

⭐Стоимость, условия сделки:
• Арендная ставка - 320 000 руб./мес.;
• Срок договора - длительный (от 11 мес.);
• Все документы готовы к сделке, обременений нет.
• Собственник Физ.лицо.
• Объект в собственности около 10 лет.

✅Описание:
• Высокий пешеходный и автомобильный трафик;
• Вывеска, места под рекламу;
• Помещение в хорошем состоянии;
• Все коммуникации: телефонные линии, водоснабжение, канализация, теплоснабжение;
• Юр. статус: собственность.

✅ Подойдет под любой вид деятельности;




☎ Звоните, организуем просмотр в удобное Вам время.

⭐ Мы – АГЕНТСТВО НЕДВИЖИМОСТИ СЕВЕРО-ЗАПАДА – лидирующий эксперт рынка недвижимости Санкт-Петербурга и Ленинградской области.
Наши агенты закрывают более 300 сделок в год.
Мы строим долгосрочные деловые отношения на основе принципов честности и качественного сервиса с нашими клиентами.
⭐ Работая с нами, вы получите:
✅ Высокое качество сопровождения сделки от начала и до конца;
✅ Широкий спектр сопутствующих услуг;
✅ Оптимизацию ваших расходов при заключении сделки;
✅ Экономию Ваших нервов и времени при переговорах;
✅ Доступ к уникальной базе объектов, многие из которых отсутствуют в открытой рекламе;
✅ Помогаем оформлять ипотеку!

⭐Заходите в наш профиль, чтобы ознакомиться с нашими актуальными предложениями!
Если не нашли в нашем профиле то, что Вам подходит – позвоните ☎, и мы обязательно подберем нужный объект по самым выгодным условиям на рынке коммерческой недвижимости!

⭐ Добавьте объявление в Избранное, чтобы не потерять!

С Уважением, Тлевалдэ.
Недвижимость Северо-Запада.
показать все описание
Заинтересовал объект?
Оставьте свой номер - наш эксперт свяжется с Вами, ответит на все вопросы и запишет на просмотр
РАСПОЛОЖЕНИЕ ОБЪЕКТА НА КАРТЕ
Заинтересовал объект?
Оставьте свой номер - наш эксперт свяжется с Вами, ответит на все вопросы и запишет на просмотр
РАСПОЛОЖЕНИЕ ОБЪЕКТА НА КАРТЕ
Другие объекты компании
Продажа
68
14.07.2025
location_white Санкт-Петербург г, Революции ш, 69 А
Площадь
210.00 м²
Цена за м²
150 000 ₽
Этажей в здании
5
Этаж
1
Продажа
82
14.07.2025
location_white Санкт-Петербург г, Обводного канала наб, 118а Х
Площадь
7200.00 м²
Цена за м²
104 166 ₽
Этажей в здании
3
Этаж
1
Аренда
115
27.05.2025
location_white Ленинградская обл, Тельмана г, Красноборская дорога, 2
Площадь
1464.40 м²
Цена за м²
700 ₽
Этажей в здании
1
Этаж
1
Продажа
303
19.11.2024
location_white Санкт-Петербург г, 8-я В.О. линия, 63 литБ
Площадь
2800.00 м²
Цена за м²
32 107 ₽
Этажей в здании
3
Этаж
1