Аренда 2-х этажей на пр. Науки

ПСН
Дата обновления - 04.12.2025
Итоговая цена 250 000 ₽ / мес Итоговая цена
Стоимость за 1 м² 1 858 ₽ / мес
Стоимость за 1 м²
Площадь помещения
135 м²
ПСН
Дата обновления - 04.12.2025

Аренда 2-х этажей на пр. Науки

ХАРАКТЕРИСТИКИ ПОМЕЩЕНИЯ
Тип сделки
Аренда
Тип помещения
ПСН
Площадь помещения
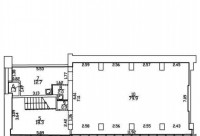
135 м²
Этаж
1
Высота потолков
3.16 м
Отделка
Чистовая стандарт
ХАРАКТЕРИСТИКИ ЗДАНИЯ
Этажность
2
Парковка
Открытая
КОНСУЛЬТАЦИЯ НАШЕГО ЭКСПЕРТА
Тлевалдэ Шуканов
Эксперт проекта
Вы можете позвонить или написать мне в whatsapp:
или нажмите на кнопку, чтобы записаться на просмотр, и в ближайшее время я свяжусь с вами
ОПИСАНИЕ ОБЪЕКТА
⭐Предлагаю в аренду двух этажное помещение на пр. Науки в отдельно стоящем здании, в густонаселенном районе.

✅Основные характеристики:
• Площадь: 134,5 м2;
• Мощность электросети: 30 кВт;
• Высота потолков: 3,16 м;
• Этаж: 1-2;
• Большие витринные окна.;
• Вытяжка-свеча организации общепита;
• Возможна работа без ограничений по шуму 24\7.
• 2 санузла, можно увеличить;
• Помещение подходит под требования любого вида деятельности:
Банкетный зал.
Ресторан-Кафе-Бар.
Компьютерный клуб.
Кальянная.
Цветы.
Медицинский центр. И т.д.
• В 15 минутах от метро Академическая;

⭐Стоимость, условия сделки:
• Арендная ставка - 250 000 руб./мес.;
• Срок договора - длительный (от 11 мес.);
• Все документы готовы к сделке, обременений нет.
• Собственник Физ.лицо.
• Объект в собственности около 10 лет.

✅Описание:
• Высокий пешеходный и автомобильный трафик;
• Вывеска, места под рекламу;
• Помещение в хорошем состоянии;
• Все коммуникации: телефонные линии, водоснабжение, канализация, теплоснабжение;
• Юр. статус: собственность.

✅ Подойдет под любой вид деятельности;

С Уважением, Тлевалдэ.
Недвижимость Северо-Запада.
показать все описание
Заинтересовал объект?
Оставьте свой номер - наш эксперт свяжется с Вами, ответит на все вопросы и запишет на просмотр
РАСПОЛОЖЕНИЕ ОБЪЕКТА НА КАРТЕ
Заинтересовал объект?
Оставьте свой номер - наш эксперт свяжется с Вами, ответит на все вопросы и запишет на просмотр
РАСПОЛОЖЕНИЕ ОБЪЕКТА НА КАРТЕ
Другие объекты компании
Продажа
80
11.12.2023
location_white Ленинградская обл, Цвелодубово п, Центральная ул, 20
Площадь
813.90 м²
Цена за м²
43 985 ₽
Этажей в здании
1
Этаж
1
Аренда
118
02.09.2025
location_white Санкт-Петербург г, Средний В.О. пр-кт, 49
Площадь
210.00 м²
Цена за м²
3 000 ₽
Этажей в здании
5
Этаж
1
Аренда
246
21.01.2025
location_white Санкт-Петербург г, Щербаков пер, 12 А
Площадь
650.00 м²
Цена за м²
1 250 ₽
Этажей в здании
7
Этаж
2
Продажа
51
17.05.2023
location_white Ленинградская обл, Кингисепп г, Вокзальная ул, 12
Площадь
835.00 м²
Цена за м²
75 449 ₽
Этажей в здании
1
Этаж
1