Аренда. Офисное помещение у Казанского собора.

ПСН
Дата обновления - 21.04.2025
Итоговая цена 188 000 ₽ / мес Итоговая цена
Стоимость за 1 м² 1 863 ₽ / мес
Стоимость за 1 м²
metro Адмиралтейская
metro мин
metro Невский проспект
metro мин
Площадь помещения
101 м²
ПСН
Дата обновления - 21.04.2025

Аренда. Офисное помещение у Казанского собора.

ХАРАКТЕРИСТИКИ ПОМЕЩЕНИЯ
Тип сделки
Аренда
Тип помещения
ПСН
Площадь помещения
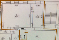
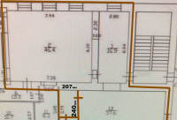
101 м²
Этаж
2
Высота потолков
3.40 м
Отделка
Чистовая стандарт
ХАРАКТЕРИСТИКИ ЗДАНИЯ
Этажность
5
Парковка
Охраняемая
КОНСУЛЬТАЦИЯ НАШЕГО ЭКСПЕРТА
Админ Екатерина
Эксперт проекта
Вы можете позвонить или написать мне в whatsapp:
или нажмите на кнопку, чтобы записаться на просмотр, и в ближайшее время я свяжусь с вами
ОПИСАНИЕ ОБЪЕКТА
⭐Предлагаем в аренду помещение в центре Санкт-Петербурга у Казанского Собора. С шикарным видом.

Основные характеристики:
• Площадь 100,9 м2;
• Мощность электросети: 15 кВт;
• Высота потолков: 3,4 м;
• Этаж 2;
• В 5 минутах от метро Невский Проспект, Гостиный Двор, Адмиралтейская;

⭐Стоимость, условия сделки:
• Арендная ставка - 188 000 руб./мес.;
• Обеспечительный платеж - 100% (188 000 руб.);
• Срок договора - длительный (от 11 мес.);

✅Описание:
• Помещение расположено в Историческом центре города в 3 минутах ходьбы от ст. м. Невский проспект, в "Золотом треугольнике"
• Высокий пешеходный и автомобильный трафик;
• Отдельный вход;
• Удобная парковка;
• Вывеска, места под рекламу;
• Все коммуникации: телефонные линии, водоснабжение, канализация, теплоснабжение, электроснабжение 15кВт (с возможностью увеличения);
• Юр. статус: собственность.

✅ Подойдет под любой вид деятельности;

☎ Звоните, организуем просмотр в удобное Вам время.

⭐ Мы – АГЕНТСТВО НЕДВИЖИМОСТИ СЕВЕРО-ЗАПАДА – лидирующий эксперт рынка недвижимости Санкт-Петербурга и Ленинградской области.
Наши агенты закрывают более 300 сделок в год.
Мы строим долгосрочные деловые отношения на основе принципов честности и качественного сервиса с нашими клиентами.
⭐ Работая с нами, вы получите:
✅ Высокое качество сопровождения сделки от начала и до конца;
✅ Широкий спектр сопутствующих услуг;
✅ Оптимизацию ваших расходов при заключении сделки;
✅ Экономию Ваших нервов и времени при переговорах;
✅ Доступ к уникальной базе объектов, многие из которых отсутствуют в открытой рекламе;

⭐Заходите в наш профиль, чтобы ознакомиться с нашими актуальными предложениями!
Если не нашли в нашем профиле то, что Вам подходит – позвоните ☎, и мы обязательно подберем нужный объект по самым выгодным условиям на рынке коммерческой недвижимости!

⭐ Добавьте объявление в Избранное, чтобы не потерять!

С Уважением, Сидоров Михаил.
Недвижимость Северо-Запада.
показать все описание
Заинтересовал объект?
Оставьте свой номер - наш эксперт свяжется с Вами, ответит на все вопросы и запишет на просмотр
РАСПОЛОЖЕНИЕ ОБЪЕКТА НА КАРТЕ
Заинтересовал объект?
Оставьте свой номер - наш эксперт свяжется с Вами, ответит на все вопросы и запишет на просмотр
РАСПОЛОЖЕНИЕ ОБЪЕКТА НА КАРТЕ
Другие объекты компании
Аренда
2
23.04.2024
location_white Ленинградская обл, Промышленная зона Пески тер, Красносельское ш, 10
Площадь
1488.00 м²
Цена за м²
1 000 ₽
Этажей в здании
1
Этаж
1
Продажа
0
20.05.2025
location_white Санкт-Петербург г, Гороховая ул, 47 В
Площадь
170.80 м²
Цена за м²
496 135 ₽
Этажей в здании
5
Этаж
1
Продажа
104
09.02.2026
location_white Санкт-Петербург г, Ленинский пр-кт, 147к2
Площадь
197.00 м²
Цена за м²
147 208 ₽
Этажей в здании
1
Этаж
1
Продажа
Архив
3
20.03.2024
location_white Санкт-Петербург г, Северный пр-кт, 129стр1
Площадь
945.60 м²
Цена за м²
169 204 ₽
Этажей в здании
2
Этаж
2