Аренда помещений

ПСН
Дата обновления - 26.01.2026
Итоговая цена 392 400 ₽ / мес Итоговая цена
Стоимость за 1 м² 3 000 ₽ / мес
Стоимость за 1 м²
ПСН
Дата обновления - 26.01.2026

Аренда помещений

ХАРАКТЕРИСТИКИ ПОМЕЩЕНИЯ
Тип сделки
Аренда
Тип помещения
ПСН
Площадь помещения
131 м²
Этаж
1
Высота потолков
4.00 м
Отделка
Чистовая стандарт
ХАРАКТЕРИСТИКИ ЗДАНИЯ
Этажность
14
Парковка
Открытая
КОНСУЛЬТАЦИЯ НАШЕГО ЭКСПЕРТА
КОМПАНИИ БАЗА
Эксперт проекта
Вы можете позвонить или написать мне в whatsapp:
или нажмите на кнопку, чтобы записаться на просмотр, и в ближайшее время я свяжусь с вами
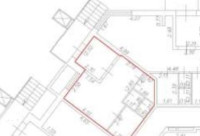
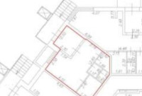
ОПИСАНИЕ ОБЪЕКТА
⭐Предлагаем в аренду помещения

✅Основные характеристики:
• Общая площадь: 130,8м2(31,3 м2+32,3 м2+30,8 м2+36,4 м2);
• Мощность электросети: 15кВт ;
• Высота потолков у углового помещения 4 метра, у остальных 3 м;
• Этаж:1;
• Густонаселенный жилой район ;


⭐Стоимость, условия сделки:
• Арендная ставка при аренде всех помещений-3000 руб.за кв.м. (392 400 руб./мес.);
• Арендная ставка при аренде помещений по отдельности 3500 руб.за кв.м:
31,3 м2-109 550 руб./мес.
32,3 м2- 113 050  руб./мес.
30,8 м2- 107 800  руб./мес.
36,4 м2 - 127 400  руб./мес.;
• Срок договора - длительный (от 11 мес.);


✅Описание:
• Высокий пешеходный и автомобильный трафик;
• Отдельный вход
• Витринные окна;
• Вывеска, места под рекламу;
• Присутствует отделка;
• Все коммуникации: телефонные линии, водоснабжение, канализация, теплоснабжение;
• Юр. статус: собственность.

✅ Подойдет под любой вид деятельности;




☎ Звоните, организуем просмотр в удобное Вам время.

⭐ Мы – АГЕНТСТВО НЕДВИЖИМОСТИ СЕВЕРО-ЗАПАДА – лидирующий эксперт рынка недвижимости Санкт-Петербурга и Ленинградской области.
Наши агенты закрывают более 300 сделок в год.
Мы строим долгосрочные деловые отношения на основе принципов честности и качественного сервиса с нашими клиентами.
⭐ Работая с нами, вы получите:
✅ Высокое качество сопровождения сделки от начала и до конца;
✅ Широкий спектр сопутствующих услуг;
✅ Оптимизацию ваших расходов при заключении сделки;
✅ Экономию Ваших нервов и времени при переговорах;
✅ Доступ к уникальной базе объектов, многие из которых отсутствуют в открытой рекламе;
✅ Помогаем оформлять ипотеку!

⭐Заходите в наш профиль, чтобы ознакомиться с нашими актуальными предложениями!
Если не нашли в нашем профиле то, что Вам подходит – позвоните ☎, и мы обязательно подберем нужный объект по самым выгодным условиям на рынке коммерческой недвижимости!

⭐ Добавьте объявление в Избранное, чтобы не потерять!

С Уважением, Даниил Сигов.
Недвижимость Северо-Запада.
показать все описание
Заинтересовал объект?
Оставьте свой номер - наш эксперт свяжется с Вами, ответит на все вопросы и запишет на просмотр
РАСПОЛОЖЕНИЕ ОБЪЕКТА НА КАРТЕ
Заинтересовал объект?
Оставьте свой номер - наш эксперт свяжется с Вами, ответит на все вопросы и запишет на просмотр
РАСПОЛОЖЕНИЕ ОБЪЕКТА НА КАРТЕ
Другие объекты компании
Аренда
Архив
2
17.10.2023
location_white Санкт-Петербург г, Ленинский пр-кт, 126 А
Площадь
200.00 м²
Цена за м²
2 000 ₽
Этажей в здании
9
Этаж
12
Продажа
0
03.06.2024
location_white Санкт-Петербург г, Муринская дор, 27к4стр1
Площадь
1046.00 м²
Цена за м²
100 009 ₽
Этажей в здании
8
Этаж
4
Продажа
122
22.10.2025
location_white Санкт-Петербург г, Шафировский пр-кт, 28
Площадь
520.00 м²
Цена за м²
29 807 ₽
Этажей в здании
1
Этаж
1
Аренда
432
16.09.2024
location_white Санкт-Петербург г, Руднева ул, 18стр1
Площадь
130.00 м²
Цена за м²
1 800 ₽
Этажей в здании
24
Этаж
1