Аренда помещений 3043.3 м2

ПСН
Дата обновления - 19.11.2025
Итоговая цена 5 477 940 ₽ / мес Итоговая цена
Стоимость за 1 м² 1 800 ₽ / мес
Стоимость за 1 м²
ПСН
Дата обновления - 19.11.2025

Аренда помещений 3043.3 м2

ХАРАКТЕРИСТИКИ ПОМЕЩЕНИЯ
Тип сделки
Аренда
Тип помещения
ПСН
Площадь помещения
3 043 м²
Этаж
2
Высота потолков
4.25 м
Отделка
Чистовая стандарт
ХАРАКТЕРИСТИКИ ЗДАНИЯ
Этажность
5
Парковка
Открытая
КОНСУЛЬТАЦИЯ НАШЕГО ЭКСПЕРТА
Михаил Лунев
Эксперт проекта
Вы можете позвонить или написать мне в whatsapp:
или нажмите на кнопку, чтобы записаться на просмотр, и в ближайшее время я свяжусь с вами
ОПИСАНИЕ ОБЪЕКТА
⭐Предлагаем в аренду нежилые помещения на 2,3,4,5 этажах отдельно стоящего, нежилого здания.

✅Основные характеристики:
• Общая площадь: 3043,3 м2;
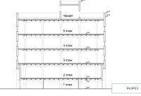
  2 эт - 223.9 м²;
  3 эт - 939.8 м²;
  4 эт - 939.8 м²;
  5 эт - 939.8 м²;
• Доступ осуществляется через вестибюль главного входа посредством лестницы и двух лифтов (пассажирский и грузопассажирский);
• Высота потолков: 4.25 м (ригель), 4.5 м (перекрытие);
• Две лестницы, два лифта (630 кг, 400 кг);
• Этаж: 2,3,4,5;
• Система отопления основана на использовании плинтусных электрических обогревателей, равномерно прогревающих стены и обеспечивающих комфортную температуру в помещении;
• Выполнена полная замена систем водоснабжения, канализации и электроснабжения;
• При необходимости, собственник готов произвести дополнительные отделочные работы по запросу покупателя;
• В Василеостровском районе СПБ, 850 метров от станции метро Приморская ;

⭐Стоимость, условия сделки:
• Общая арендная ставка за всю площадь: 5 477 940 руб/мес, (1800 руб/м2);
• Срок договора: длительный (от 11 месяцев);
• Обеспечительный платеж: 100%.
​​​​​​​
✅Описание:
• Высокий пешеходный и автомобильный трафик;
• Отдельный вход;
• Вывеска, места под рекламу;
• Все коммуникации: телефонные линии, водоснабжение, канализация, теплоснабжение;
• Юр. статус: собственность.

✅ Подойдет под любой вид деятельности;




☎ Звоните, организуем просмотр в удобное Вам время.

⭐ Мы – АГЕНТСТВО НЕДВИЖИМОСТИ СЕВЕРО-ЗАПАДА – лидирующий эксперт рынка недвижимости Санкт-Петербурга и Ленинградской области.
Наши агенты закрывают более 300 сделок в год.
Мы строим долгосрочные деловые отношения на основе принципов честности и качественного сервиса с нашими клиентами.
⭐ Работая с нами, вы получите:
✅ Высокое качество сопровождения сделки от начала и до конца;
✅ Широкий спектр сопутствующих услуг;
✅ Оптимизацию ваших расходов при заключении сделки;
✅ Экономию Ваших нервов и времени при переговорах;
✅ Доступ к уникальной базе объектов, многие из которых отсутствуют в открытой рекламе;
✅ Помогаем оформлять ипотеку!

⭐Заходите в наш профиль, чтобы ознакомиться с нашими актуальными предложениями!
Если не нашли в нашем профиле то, что Вам подходит – позвоните ☎, и мы обязательно подберем нужный объект по самым выгодным условиям на рынке коммерческой недвижимости!

⭐ Добавьте объявление в Избранное, чтобы не потерять!

С Уважением, Михаил.
Недвижимость Северо-Запада.
показать все описание
Заинтересовал объект?
Оставьте свой номер - наш эксперт свяжется с Вами, ответит на все вопросы и запишет на просмотр
РАСПОЛОЖЕНИЕ ОБЪЕКТА НА КАРТЕ
Заинтересовал объект?
Оставьте свой номер - наш эксперт свяжется с Вами, ответит на все вопросы и запишет на просмотр
РАСПОЛОЖЕНИЕ ОБЪЕКТА НА КАРТЕ
Другие объекты компании
Продажа
39
24.09.2024
location_white Санкт-Петербург г, Бабушкина ул, 73 А
Площадь
141.00 м²
Цена за м²
226 241 ₽
Этажей в здании
-1
Этаж
1
Продажа
143
16.07.2025
location_white Санкт-Петербург г, Тихоокеанская, 1к1
Площадь
181.60 м²
Цена за м²
160 000 ₽
Этажей в здании
13
Этаж
1
Продажа
Архив
1
27.11.2023
location_white Ленинградская обл, Волхов г, Металлургов ул, 6
Площадь
1950.00 м²
Цена за м²
9 743 ₽
Этажей в здании
3
Этаж
1
Аренда
71
29.09.2025
location_white Санкт-Петербург г, Малая Разночинная ул, 10стр1
Площадь
82.00 м²
Цена за м²
4 268 ₽
Этажей в здании
5
Этаж
1