Аренда помещения целиком этаж в Сланцах

ПСН
Дата обновления - 02.02.2026
Итоговая цена 200 000 ₽ / мес Итоговая цена
Стоимость за 1 м² 341 ₽ / мес
Стоимость за 1 м²
ПСН
Дата обновления - 02.02.2026

Аренда помещения целиком этаж в Сланцах

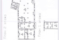
ХАРАКТЕРИСТИКИ ПОМЕЩЕНИЯ
Тип сделки
Аренда
Тип помещения
ПСН
Площадь помещения
586 м²
Этаж
2
Высота потолков
3.00 м
Отделка
Черновая
ХАРАКТЕРИСТИКИ ЗДАНИЯ
Этажность
2
Парковка
Открытая
КОНСУЛЬТАЦИЯ НАШЕГО ЭКСПЕРТА
КОМПАНИИ БАЗА
Эксперт проекта
Вы можете позвонить или написать мне в whatsapp:
или нажмите на кнопку, чтобы записаться на просмотр, и в ближайшее время я свяжусь с вами
ОПИСАНИЕ ОБЪЕКТА
⭐Предлагаем в аренду помещение целый этаж в Сланцах, микрорайон Большие Лучки.

Подходит под торговую и производственное назначение. Возможность установки грузового лифта. 
​​​​​​​
✅Основные характеристики:
• Площадь: 586 м2;
• Мощность электросети: 15 кВт, возможно увеличение;
• Высота потолков: 3 м;
• Этаж: 2;
• Отопление центральное;
• 2 входа: главный и отдельный с 1 этажа и запасной;
• Перекрытия железобетон;
• Черновая отделка;
• В Сланцах, Ленинградская область;

⭐Стоимость, условия сделки:
• Арендная ставка: 200 000 руб/месяц;
• Срок договора - длительный (от 11 мес.);


✅Описание:
• Высокий пешеходный и автомобильный трафик;
• Отдельный вход с 1-го этажа;
• Большое количество окон;
• Вывеска, места под рекламу;
• Помещение в хорошем состоянии;
• Все коммуникации: телефонные линии, водоснабжение, канализация, теплоснабжение;
• Юр. статус: собственность.

✅ Подойдет под любой вид деятельности;

​​​​​​​☎ Звоните, организуем просмотр в удобное Вам время.

⭐ Мы – АГЕНТСТВО НЕДВИЖИМОСТИ СЕВЕРО-ЗАПАДА – лидирующий эксперт рынка недвижимости Санкт-Петербурга и Ленинградской области.
Наши агенты закрывают более 300 сделок в год.
Мы строим долгосрочные деловые отношения на основе принципов честности и качественного сервиса с нашими клиентами.
⭐ Работая с нами, вы получите:
✅ Высокое качество сопровождения сделки от начала и до конца;
✅ Широкий спектр сопутствующих услуг;
✅ Оптимизацию ваших расходов при заключении сделки;
✅ Экономию Ваших нервов и времени при переговорах;
✅ Доступ к уникальной базе объектов, многие из которых отсутствуют в открытой рекламе;
✅ Помогаем оформлять ипотеку!

⭐Заходите в наш профиль, чтобы ознакомиться с нашими актуальными предложениями!
Если не нашли в нашем профиле то, что Вам подходит – позвоните ☎, и мы обязательно подберем нужный объект по самым выгодным условиям на рынке коммерческой недвижимости!

⭐ Добавьте объявление в Избранное, чтобы не потерять!


С Уважением, Тлевалдэ Шуканов.
Недвижимость Северо-Запада.

☎ Звоните, организуем просмотр в удобное Вам время.

С Уважением, Тлевалдэ.
Недвижимость Северо-Запада.
показать все описание
Заинтересовал объект?
Оставьте свой номер - наш эксперт свяжется с Вами, ответит на все вопросы и запишет на просмотр
РАСПОЛОЖЕНИЕ ОБЪЕКТА НА КАРТЕ
Заинтересовал объект?
Оставьте свой номер - наш эксперт свяжется с Вами, ответит на все вопросы и запишет на просмотр
РАСПОЛОЖЕНИЕ ОБЪЕКТА НА КАРТЕ
Другие объекты компании
Продажа
40
24.12.2024
location_white Санкт-Петербург г, Просвещения пр-кт, 53к1 Д
Площадь
417.50 м²
Цена за м²
222 754 ₽
Этажей в здании
12
Этаж
1
Аренда
56
17.04.2026
location_white Санкт-Петербург г, Туристская ул, 18к1
Площадь
156.00 м²
Цена за м²
1 500 ₽
Этажей в здании
1
Этаж
1
Аренда
Архив
54
12.12.2022
location_white Санкт-Петербург г, Большая Конюшенная ул, 15 А
Площадь
174.00 м²
Цена за м²
2 143 ₽
Этажей в здании
4
Этаж
1
Продажа
384
20.03.2025
location_white Санкт-Петербург г, Купчинская ул, 26
Площадь
798.00 м²
Цена за м²
194 235 ₽
Этажей в здании
6
Этаж
1