Аренда помещения на Бестужевской 377 м2

ПСН
Дата обновления - 02.02.2026
Итоговая цена 395 850 ₽ / мес Итоговая цена
Стоимость за 1 м² 1 050 ₽ / мес
Стоимость за 1 м²
ПСН
Дата обновления - 02.02.2026

Аренда помещения на Бестужевской 377 м2

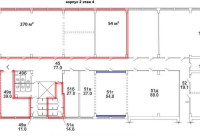
ХАРАКТЕРИСТИКИ ПОМЕЩЕНИЯ
Тип сделки
Аренда
Тип помещения
ПСН
Площадь помещения
377 м²
Этаж
4
Высота потолков
4.00 м
Отделка
Чистовая стандарт
ХАРАКТЕРИСТИКИ ЗДАНИЯ
Этажность
4
Парковка
Открытая
КОНСУЛЬТАЦИЯ НАШЕГО ЭКСПЕРТА
Артур Гаджимурадов
Эксперт проекта
Вы можете позвонить или написать мне в whatsapp:
или нажмите на кнопку, чтобы записаться на просмотр, и в ближайшее время я свяжусь с вами
ОПИСАНИЕ ОБЪЕКТА
⭐Предлагаем в аренду помещение  на Бестужевской улице под ваш бизнес. Большая проходимость!

✅Основные характеристики:
• Площадь: 377 м2;
• Электрическая мощность: 300 кВт ;
• Высота потолков - 4,2 м;
• Нагрузка на пол 1000 кг на м²;
• Грузовой лифт - г/п 1т;
• Центральное отопление;
• Наличие пожарной сигнализации ;
• Этаж: 4;
​​​​​​​• В состав площади входит комната для приема пищи и душевая, что делает это помещение максимально удобным для сотрудников.;
• Густонаселенная локация! 

⭐Стоимость, условия сделки:
• Арендная ставка - 395 850 руб./мес.;
• Срок договора - длительный (от 11 мес.);
• НДС и к/у оплачиваются отдельно.

✅Описание:
• Высокий пешеходный и автомобильный трафик;
• Вывеска, места под рекламу;
• Помещение в хорошем состоянии;
• Все коммуникации: телефонные линии, водоснабжение, канализация, теплоснабжение;
• Юр. статус: собственность.

✅ Подойдет под любой вид деятельности;




☎ Звоните, организуем просмотр в удобное Вам время.

⭐ Мы – АГЕНТСТВО НЕДВИЖИМОСТИ СЕВЕРО-ЗАПАДА – лидирующий эксперт рынка недвижимости Санкт-Петербурга и Ленинградской области.
Наши агенты закрывают более 300 сделок в год.
Мы строим долгосрочные деловые отношения на основе принципов честности и качественного сервиса с нашими клиентами.
⭐ Работая с нами, вы получите:
✅ Высокое качество сопровождения сделки от начала и до конца;
✅ Широкий спектр сопутствующих услуг;
✅ Оптимизацию ваших расходов при заключении сделки;
✅ Экономию Ваших нервов и времени при переговорах;
✅ Доступ к уникальной базе объектов, многие из которых отсутствуют в открытой рекламе;
✅ Помогаем оформлять ипотеку!

⭐Заходите в наш профиль, чтобы ознакомиться с нашими актуальными предложениями!
Если не нашли в нашем профиле то, что Вам подходит – позвоните ☎, и мы обязательно подберем нужный объект по самым выгодным условиям на рынке коммерческой недвижимости!

⭐ Добавьте объявление в Избранное, чтобы не потерять!

С Уважением, Тлевалдэ.
Недвижимость Северо-Запада.
показать все описание
Заинтересовал объект?
Оставьте свой номер - наш эксперт свяжется с Вами, ответит на все вопросы и запишет на просмотр
РАСПОЛОЖЕНИЕ ОБЪЕКТА НА КАРТЕ
Заинтересовал объект?
Оставьте свой номер - наш эксперт свяжется с Вами, ответит на все вопросы и запишет на просмотр
РАСПОЛОЖЕНИЕ ОБЪЕКТА НА КАРТЕ
Другие объекты компании
Аренда
228
14.07.2025
location_white Санкт-Петербург г, Обводного канала наб, 23 Б
Площадь
1800.00 м²
Цена за м²
2 300 ₽
Этажей в здании
4
Этаж
3
Продажа
95
06.06.2024
location_white Санкт-Петербург г, Новоизмайловский пр-кт, 40к1
Площадь
75.00 м²
Цена за м²
293 333 ₽
Этажей в здании
12
Этаж
1
Продажа
4
03.02.2026
location_white Санкт-Петербург г, Английский пр-кт, 26
Площадь
52.00 м²
Цена за м²
221 153 ₽
Этажей в здании
6
Этаж
-1
Продажа
Архив
89
19.01.2023
location_white Санкт-Петербург г, Ленинский пр-кт, 64к1 А
Площадь
313.00 м²
Цена за м²
162 939 ₽
Этажей в здании
22
Этаж
1