Аренда помещения на Бестужевской с витринами

ПСН
Дата обновления - 02.02.2026
Итоговая цена 469 800 ₽ / мес Итоговая цена
Стоимость за 1 м² 1 800 ₽ / мес
Стоимость за 1 м²
ПСН
Дата обновления - 02.02.2026

Аренда помещения на Бестужевской с витринами

ХАРАКТЕРИСТИКИ ПОМЕЩЕНИЯ
Тип сделки
Аренда
Тип помещения
ПСН
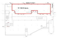
Площадь помещения
261 м²
Этаж
3
Высота потолков
4.00 м
Отделка
Чистовая стандарт
ХАРАКТЕРИСТИКИ ЗДАНИЯ
Этажность
4
Парковка
Открытая
КОНСУЛЬТАЦИЯ НАШЕГО ЭКСПЕРТА
Диана Ильюхина
Эксперт проекта
Вы можете позвонить или написать мне в whatsapp:
или нажмите на кнопку, чтобы записаться на просмотр, и в ближайшее время я свяжусь с вами
ОПИСАНИЕ ОБЪЕКТА
⭐Предлагаем в аренду помещение с витринами на Бестужевской улице под ваш бизнес. Витрины и вход в помещения выходят на пешеходный бульвар, большая проходимость!

✅Основные характеристики:
• Площадь: 261м2;
• Мощность электросети: 300 кВт, возможно увеличение;
• Высота потолков: 4 м;
• Современная механическая вентиляция и возможность установки кондиционеров;
• Водоснабжение (горячее и холодное), 2 сан.узла!
• Нагрузка на пол 1000 кг/м;
• Возможно деление;
• Этаж: 1;
• Витринное остекление;
​​​​​​​• Два отдельных входа;
• Напротив откроется школа на 1250 мест (срок сдачи 3 кв 2025), поликлиника на 100 посещений в смену (4 кв 2025), и детский сад (2 кв 2025).
• Густонаселенная локация! 

⭐Стоимость, условия сделки:
• Арендная ставка - 469 800 руб./мес.;
• Срок договора - длительный (от 11 мес.);
• Возможность сделать свой ремонт (арендные каникулы).

✅Описание:
• Высокий пешеходный и автомобильный трафик;
• Вывеска, места под рекламу;
• Помещение в хорошем состоянии;
• Все коммуникации: телефонные линии, водоснабжение, канализация, теплоснабжение;
• Юр. статус: собственность.

✅ Подойдет под любой вид деятельности;




☎ Звоните, организуем просмотр в удобное Вам время.

⭐ Мы – АГЕНТСТВО НЕДВИЖИМОСТИ СЕВЕРО-ЗАПАДА – лидирующий эксперт рынка недвижимости Санкт-Петербурга и Ленинградской области.
Наши агенты закрывают более 300 сделок в год.
Мы строим долгосрочные деловые отношения на основе принципов честности и качественного сервиса с нашими клиентами.
⭐ Работая с нами, вы получите:
✅ Высокое качество сопровождения сделки от начала и до конца;
✅ Широкий спектр сопутствующих услуг;
✅ Оптимизацию ваших расходов при заключении сделки;
✅ Экономию Ваших нервов и времени при переговорах;
✅ Доступ к уникальной базе объектов, многие из которых отсутствуют в открытой рекламе;
✅ Помогаем оформлять ипотеку!

⭐Заходите в наш профиль, чтобы ознакомиться с нашими актуальными предложениями!
Если не нашли в нашем профиле то, что Вам подходит – позвоните ☎, и мы обязательно подберем нужный объект по самым выгодным условиям на рынке коммерческой недвижимости!

⭐ Добавьте объявление в Избранное, чтобы не потерять!

С Уважением, Тлевалдэ.
Недвижимость Северо-Запада.
показать все описание
Заинтересовал объект?
Оставьте свой номер - наш эксперт свяжется с Вами, ответит на все вопросы и запишет на просмотр
РАСПОЛОЖЕНИЕ ОБЪЕКТА НА КАРТЕ
Заинтересовал объект?
Оставьте свой номер - наш эксперт свяжется с Вами, ответит на все вопросы и запишет на просмотр
РАСПОЛОЖЕНИЕ ОБЪЕКТА НА КАРТЕ
Другие объекты компании
Продажа
16
18.12.2024
location_white Понтонный п, Пролетарской Победы ул, 7
Площадь
7017.00 м²
Цена за м²
21 376 ₽
Этаж
1
Аренда
16
20.10.2023
location_white Санкт-Петербург г, Отважных ул, 10 А
Площадь
15.00 м²
Цена за м²
3 500 ₽
Этажей в здании
5
Этаж
1
Аренда
29
20.03.2026
location_white Санкт-Петербург г, Ветеранов пр-кт, 185к3
Площадь
242.00 м²
Цена за м²
2 500 ₽
Этажей в здании
14
Этаж
1
Аренда
5
24.04.2026
location_white Ленинградская обл, Ушаки с, Кирова пр-кт, 232в
Площадь
643.60 м²
Цена за м²
1 300 ₽
Этажей в здании
1
Этаж
1