Аренда помещения под ресторан

ПСН
Дата обновления - 24.11.2025
Итоговая цена 550 000 ₽ / мес Итоговая цена
Стоимость за 1 м² 2 263 ₽ / мес
Стоимость за 1 м²
ПСН
Дата обновления - 24.11.2025

Аренда помещения под ресторан

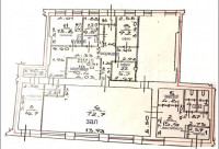
ХАРАКТЕРИСТИКИ ПОМЕЩЕНИЯ
Тип сделки
Аренда
Тип помещения
ПСН
Площадь помещения
243 м²
Этаж
1
Высота потолков
3.00 м
Отделка
Чистовая стандарт
ХАРАКТЕРИСТИКИ ЗДАНИЯ
Этажность
1
Парковка
Открытая
КОНСУЛЬТАЦИЯ НАШЕГО ЭКСПЕРТА
Дарья Лунёва
Эксперт проекта
Вы можете позвонить или написать мне в whatsapp:
или нажмите на кнопку, чтобы записаться на просмотр, и в ближайшее время я свяжусь с вами
ОПИСАНИЕ ОБЪЕКТА
⭐Предлагаем в аренду помещение под ресторан на Лермонтовском проспекте в доходном доме Синягина в минуте от Набережной реки Фонтанки. 
.
✅Основные характеристики:
• Площадь: 243 м2;
• Мощность электросети: 30 кВт;
• Высота потолков: 3 м;
• Этаж: 1;
• Свеча;
• В центре города на Лермонтовском пр-те;

⭐Стоимость, условия сделки:
• Арендная ставка - 550 000 руб./мес.;
• Обеспечительный платеж - 100% (550 000 руб.);
• Срок договора - длительный (от 11 мес.);

✅Описание:
• Высокий пешеходный и автомобильный трафик;
• Отдельных 3 входа;
• Витринные окна;
• Вывеска, места под рекламу;
• Помещение в хорошем состоянии;
• Все коммуникации: телефонные линии, водоснабжение, канализация, теплоснабжение;
• Юр. статус: собственность.

✅ Подойдет под любой вид деятельности;




☎ Звоните, организуем просмотр в удобное Вам время.

⭐ Мы – АГЕНТСТВО НЕДВИЖИМОСТИ СЕВЕРО-ЗАПАДА – лидирующий эксперт рынка недвижимости Санкт-Петербурга и Ленинградской области.
Наши агенты закрывают более 300 сделок в год.
Мы строим долгосрочные деловые отношения на основе принципов честности и качественного сервиса с нашими клиентами.
⭐ Работая с нами, вы получите:
✅ Высокое качество сопровождения сделки от начала и до конца;
✅ Широкий спектр сопутствующих услуг;
✅ Оптимизацию ваших расходов при заключении сделки;
✅ Экономию Ваших нервов и времени при переговорах;
✅ Доступ к уникальной базе объектов, многие из которых отсутствуют в открытой рекламе;
✅ Помогаем оформлять ипотеку!

⭐Заходите в наш профиль, чтобы ознакомиться с нашими актуальными предложениями!
Если не нашли в нашем профиле то, что Вам подходит – позвоните ☎, и мы обязательно подберем нужный объект по самым выгодным условиям на рынке коммерческой недвижимости!

⭐ Добавьте объявление в Избранное, чтобы не потерять!

С Уважением, Юрий.
Недвижимость Северо-Запада.
показать все описание
Заинтересовал объект?
Оставьте свой номер - наш эксперт свяжется с Вами, ответит на все вопросы и запишет на просмотр
РАСПОЛОЖЕНИЕ ОБЪЕКТА НА КАРТЕ
Заинтересовал объект?
Оставьте свой номер - наш эксперт свяжется с Вами, ответит на все вопросы и запишет на просмотр
РАСПОЛОЖЕНИЕ ОБЪЕКТА НА КАРТЕ
Другие объекты компании
Продажа
Архив
1
02.11.2023
location_white Санкт-Петербург г, Просвещения пр-кт, 75 А
Площадь
287.50 м²
Цена за м²
246 956 ₽
Этажей в здании
1
Этаж
1
Аренда
336
19.02.2025
location_white Санкт-Петербург г, Невский пр-кт, 1/4
Площадь
478.10 м²
Цена за м²
5 800 ₽
Этажей в здании
1
Этаж
3
Продажа
308
11.03.2025
location_white Санкт-Петербург г, Академика Константинова ул, 8к2
Площадь
101.21 м²
Цена за м²
260 003 ₽
Этажей в здании
13
Этаж
1
Продажа
371
26.03.2025
location_white Ленинградская обл, Колтуши г, Баррикадная 1-я ул, 10
Площадь
29070.00 м²
Цена за м²
2 100 ₽
Этаж
1