Аренда помещения под ваш бизнес

ПСН
Дата обновления - 07.11.2025
Итоговая цена 200 000 ₽ / мес Итоговая цена
Стоимость за 1 м² 500 ₽ / мес
Стоимость за 1 м²
ПСН
Дата обновления - 07.11.2025

Аренда помещения под ваш бизнес

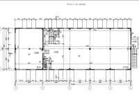
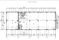
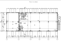
ХАРАКТЕРИСТИКИ ПОМЕЩЕНИЯ
Тип сделки
Аренда
Тип помещения
ПСН
Площадь помещения
400 м²
Этаж
2
Высота потолков
3.00 м
Отделка
Чистовая стандарт
ХАРАКТЕРИСТИКИ ЗДАНИЯ
Этажность
2
Парковка
Открытая
КОНСУЛЬТАЦИЯ НАШЕГО ЭКСПЕРТА
КОМПАНИИ БАЗА
Эксперт проекта
Вы можете позвонить или написать мне в whatsapp:
или нажмите на кнопку, чтобы записаться на просмотр, и в ближайшее время я свяжусь с вами
ОПИСАНИЕ ОБЪЕКТА
⭐Предлагаем в аренду помещение на втором этаже с ремонтом в д. Корабсельки, Всеволожского района.

✅Основные характеристики:
• Площадь: 400 м2;
• Мощность электросети: 50 кВт;
• Высота потолков: 3 м;
• Этаж: 2;
• Во Всеволожском районе, д. Корабсельки ;

⭐Стоимость, условия сделки:
• Арендная ставка - 200 000 руб./мес, 500 руб/м2.;
• Обеспечительный платеж - 100% (200 000 руб.);
• Срок договора - длительный (от 11 мес.);

✅Описание:
• Высокий пешеходный и автомобильный трафик;
• Отдельный вход;
• Окна по периметру;
• Вывеска, места под рекламу;
• Помещение в хорошем состоянии;
• Все коммуникации: телефонные линии, водоснабжение, канализация, теплоснабжение;
• Юр. статус: собственность.

✅ Подойдет под любой вид деятельности;




☎ Звоните, организуем просмотр в удобное Вам время.

⭐ Мы – АГЕНТСТВО НЕДВИЖИМОСТИ СЕВЕРО-ЗАПАДА – лидирующий эксперт рынка недвижимости Санкт-Петербурга и Ленинградской области.
Наши агенты закрывают более 300 сделок в год.
Мы строим долгосрочные деловые отношения на основе принципов честности и качественного сервиса с нашими клиентами.
⭐ Работая с нами, вы получите:
✅ Высокое качество сопровождения сделки от начала и до конца;
✅ Широкий спектр сопутствующих услуг;
✅ Оптимизацию ваших расходов при заключении сделки;
✅ Экономию Ваших нервов и времени при переговорах;
✅ Доступ к уникальной базе объектов, многие из которых отсутствуют в открытой рекламе;
✅ Помогаем оформлять ипотеку!

⭐Заходите в наш профиль, чтобы ознакомиться с нашими актуальными предложениями!
Если не нашли в нашем профиле то, что Вам подходит – позвоните ☎, и мы обязательно подберем нужный объект по самым выгодным условиям на рынке коммерческой недвижимости!

⭐ Добавьте объявление в Избранное, чтобы не потерять!

С Уважением, Дмитрий.
Недвижимость Северо-Запада.
показать все описание
Заинтересовал объект?
Оставьте свой номер - наш эксперт свяжется с Вами, ответит на все вопросы и запишет на просмотр
РАСПОЛОЖЕНИЕ ОБЪЕКТА НА КАРТЕ
Заинтересовал объект?
Оставьте свой номер - наш эксперт свяжется с Вами, ответит на все вопросы и запишет на просмотр
РАСПОЛОЖЕНИЕ ОБЪЕКТА НА КАРТЕ
Другие объекты компании
Продажа
49
10.06.2024
location_white Шушары п, Валдайская ул, 2к2стр1
Площадь
1267.80 м²
Цена за м²
150 000 ₽
Этажей в здании
2
Этаж
1
Продажа
54
20.02.2024
location_white Санкт-Петербург г, Среднерогатская ул, 14к1стр1
Площадь
105.90 м²
Цена за м²
320 963 ₽
Этажей в здании
18
Этаж
1
Аренда
95
29.09.2025
location_white Санкт-Петербург г, Гражданский пр-кт, 15к1
Площадь
251.00 м²
Цена за м²
1 314 ₽
Этажей в здании
9
Этаж
1
Аренда
171
18.06.2025
location_white Ленинградская обл, Янино-1 гп, Ветряных мельниц (Янила Кантри мкр) ул, 3
Площадь
70.00 м²
Цена за м²
1 500 ₽
Этажей в здании
1
Этаж
2