Аренда помещения Свеча, 15 кВт

ПСН
Дата обновления - 04.08.2025
Итоговая цена 80 000 ₽ / мес Итоговая цена
Стоимость за 1 м² 1 142 ₽ / мес
Стоимость за 1 м²
Площадь помещения
70 м²
ПСН
Дата обновления - 04.08.2025

Аренда помещения Свеча, 15 кВт

ХАРАКТЕРИСТИКИ ПОМЕЩЕНИЯ
Тип сделки
Аренда
Тип помещения
ПСН
Площадь помещения
70 м²
Этаж
1
Высота потолков
3.00 м
Отделка
Чистовая стандарт
Вход в помещение
Пушкинский
ХАРАКТЕРИСТИКИ ЗДАНИЯ
Этажность
24
Парковка
Открытая
КОНСУЛЬТАЦИЯ НАШЕГО ЭКСПЕРТА
КОМПАНИИ БАЗА
Эксперт проекта
Вы можете позвонить или написать мне в whatsapp:
или нажмите на кнопку, чтобы записаться на просмотр, и в ближайшее время я свяжусь с вами
ОПИСАНИЕ ОБЪЕКТА
⭐Предлагаем в аренду лучшее помещение по расположению по данному адресу.
На данный момент идет поиск арендатора, предположительная ставка 90 -100 000 рублей.
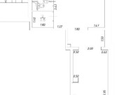
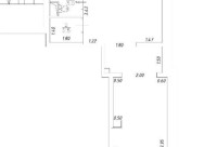
Развитая инфраструктура. А так же идет сдача 2 ух ЖК комплексов по соседству. Помещение было разделено. Можно рассмотреть другую часть или купить оба и объединить. (см.план)

✅Основные характеристики:
• Площадь 70 м2;
• Мощность электросети: 15 кВт;
• Высота потолков 3;
• Этаж 1;

⭐Стоимость, условия сделки:
• Арендная ставка  - 80 000 руб/мес.
• Обеспечительный платёж 100% (80 000 руб/мес);
• Срок договора - длительный (от 11 мес.);

✅Описание:
• Высокий пешеходный и автомобильный трафик;
• Отдельный вход
• Витринные окна;
• Вывеска, места под рекламу;
• Помещение в хорошем состоянии;
• Все коммуникации: телефонные линии, водоснабжение, канализация, теплоснабжение;
• Юр. статус: собственность.

✅ Подойдет под любой вид деятельности;

☎ Звоните, организуем просмотр в удобное Вам время.

⭐ Мы – АГЕНТСТВО НЕДВИЖИМОСТИ СЕВЕРО-ЗАПАДА – лидирующий эксперт рынка недвижимости Санкт-Петербурга и Ленинградской области.
Наши агенты закрывают более 300 сделок в год.
Мы строим долгосрочные деловые отношения на основе принципов честности и качественного сервиса с нашими клиентами.
⭐ Работая с нами, вы получите:
✅ Высокое качество сопровождения сделки от начала и до конца;
✅ Широкий спектр сопутствующих услуг;
✅ Оптимизацию ваших расходов при заключении сделки;
✅ Экономию Ваших нервов и времени при переговорах;
✅ Доступ к уникальной базе объектов, многие из которых отсутствуют в открытой рекламе;

⭐Заходите в наш профиль, чтобы ознакомиться с нашими актуальными предложениями!
Если не нашли в нашем профиле то, что Вам подходит – позвоните ☎, и мы обязательно подберем нужный объект по самым выгодным условиям на рынке коммерческой недвижимости!

⭐ Добавьте объявление в Избранное, чтобы не потерять!

С Уважением, Находко Юрий.
Недвижимость Северо-Запада.
показать все описание
Заинтересовал объект?
Оставьте свой номер - наш эксперт свяжется с Вами, ответит на все вопросы и запишет на просмотр
РАСПОЛОЖЕНИЕ ОБЪЕКТА НА КАРТЕ
Заинтересовал объект?
Оставьте свой номер - наш эксперт свяжется с Вами, ответит на все вопросы и запишет на просмотр
РАСПОЛОЖЕНИЕ ОБЪЕКТА НА КАРТЕ
Другие объекты компании
Продажа
246
16.05.2025
location_white Санкт-Петербург г, Синопская наб, 66
Площадь
4078.00 м²
Цена за м²
234 919 ₽
Этажей в здании
4
Этаж
1
Аренда
22
22.10.2025
location_white Красное Село г, Кингисеппское ш, 50
Площадь
480.00 м²
Цена за м²
1 450 ₽
Этажей в здании
1
Этаж
1
Продажа
54
22.05.2024
location_white Санкт-Петербург г, Муринская дор, 27к4стр1
Площадь
10.90 м²
Цена за м²
587 155 ₽
Этажей в здании
7
Этаж
1
Аренда
211
01.04.2025
location_white Санкт-Петербург г, Левашовский пр-кт, 15 А
Площадь
53.60 м²
Цена за м²
2 000 ₽
Этажей в здании
33
Этаж
3