Аренда помещения у метро Петроградская 119.2м2

ПСН
Дата обновления - 11.02.2026
Итоговая цена 298 000 ₽ / мес Итоговая цена
Стоимость за 1 м² 2 500 ₽ / мес
Стоимость за 1 м²
ПСН
Дата обновления - 11.02.2026

Аренда помещения у метро Петроградская 119.2м2

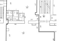
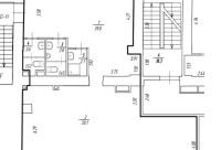
ХАРАКТЕРИСТИКИ ПОМЕЩЕНИЯ
Тип сделки
Аренда
Тип помещения
ПСН
Площадь помещения
119 м²
Этаж
2
Высота потолков
3.20 м
Отделка
Черновая
ХАРАКТЕРИСТИКИ ЗДАНИЯ
Этажность
10
Парковка
Открытая
КОНСУЛЬТАЦИЯ НАШЕГО ЭКСПЕРТА
КОМПАНИИ БАЗА
Эксперт проекта
Вы можете позвонить или написать мне в whatsapp:
или нажмите на кнопку, чтобы записаться на просмотр, и в ближайшее время я свяжусь с вами
ОПИСАНИЕ ОБЪЕКТА
⭐Предлагаем в аренду помещение у метро Петроградская в клубном доме «Мадонна Бенуа».
​​​​​​​
✅Основные характеристики:
• Площадь: 119,2 м2;
• Мощность электросети: 28кВт;
• Высота потолков:3.2м;
• Этаж: 2;

⭐Стоимость, условия сделки:
• Арендная ставка - 298 000 руб./мес. ( 2500 руб. за 1м2);
• Обеспечительный платеж - 100% ( 298 000 руб.);
• Срок договора - длительный (от 11 мес.);

✅Описание:
• В шаге от Каменноостровского проспекта, сквера Шевченко, Большого проспекта и знаменитого дома Розенштейна-Белогруда на площади Льва Толстого.;
• «Мадонна Бенуа» – уникальный проект по сохранению исторической застройки Петроградской стороны. Это яркий образец неоклассической архитектуры начала и середины ХХ века, авторства архитектора Логина Шретера, продолжателя знаменитой династии Бенуа.
• Вывеска, места под рекламу;
• Помещение в хорошем состоянии;
• Все коммуникации: телефонные линии, водоснабжение, канализация, теплоснабжение;
• Юр. статус: собственность.

✅ Подойдет под любой вид деятельности;




☎ Звоните, организуем просмотр в удобное Вам время.

⭐ Мы – АГЕНТСТВО НЕДВИЖИМОСТИ СЕВЕРО-ЗАПАДА – лидирующий эксперт рынка недвижимости Санкт-Петербурга и Ленинградской области.
Наши агенты закрывают более 300 сделок в год.
Мы строим долгосрочные деловые отношения на основе принципов честности и качественного сервиса с нашими клиентами.
⭐ Работая с нами, вы получите:
✅ Высокое качество сопровождения сделки от начала и до конца;
✅ Широкий спектр сопутствующих услуг;
✅ Оптимизацию ваших расходов при заключении сделки;
✅ Экономию Ваших нервов и времени при переговорах;
✅ Доступ к уникальной базе объектов, многие из которых отсутствуют в открытой рекламе;
✅ Помогаем оформлять ипотеку!

⭐Заходите в наш профиль, чтобы ознакомиться с нашими актуальными предложениями!
Если не нашли в нашем профиле то, что Вам подходит – позвоните ☎, и мы обязательно подберем нужный объект по самым выгодным условиям на рынке коммерческой недвижимости!

⭐ Добавьте объявление в Избранное, чтобы не потерять!

С Уважением, Уваров Максим.
Недвижимость Северо-Запада.
показать все описание
Заинтересовал объект?
Оставьте свой номер - наш эксперт свяжется с Вами, ответит на все вопросы и запишет на просмотр
РАСПОЛОЖЕНИЕ ОБЪЕКТА НА КАРТЕ
Заинтересовал объект?
Оставьте свой номер - наш эксперт свяжется с Вами, ответит на все вопросы и запишет на просмотр
РАСПОЛОЖЕНИЕ ОБЪЕКТА НА КАРТЕ
Другие объекты компании
Продажа
59
11.02.2026
location_white Ленинградская обл, Всеволожск г, Всеволожский пр-кт, 61
Площадь
1983.00 м²
Цена за м²
73 121 ₽
Этажей в здании
3
Этаж
1
Продажа
279
03.09.2025
location_white Санкт-Петербург г, 12-я В.О. линия, 43
Площадь
413.00 м²
Цена за м²
500 000 ₽
Этажей в здании
2
Этаж
1
Аренда
66
23.03.2026
location_white Санкт-Петербург г, Народная ул, 2
Площадь
485.10 м²
Цена за м²
2 500 ₽
Этажей в здании
1
Этаж
1
Аренда
Архив
2
10.12.2025
location_white Ленинградская обл, Аро д, Полевая ул, 19/54
Площадь
1440.00 м²
Цена за м²
900 ₽
Этажей в здании
1
Этаж
1