Аренда помещения в ЖК Бизнес-класса 74,5 кв.м

ПСН
Дата обновления - 14.10.2025
Итоговая цена 156 450 ₽ / мес Итоговая цена
Стоимость за 1 м² 2 100 ₽ / мес
Стоимость за 1 м²
metro Приморская
metro мин
Площадь помещения
75 м²
ПСН
Дата обновления - 14.10.2025

Аренда помещения в ЖК Бизнес-класса 74,5 кв.м

ХАРАКТЕРИСТИКИ ПОМЕЩЕНИЯ
Тип сделки
Аренда
Тип помещения
ПСН
Площадь помещения
75 м²
Этаж
1
Высота потолков
4.30 м
Отделка
Черновая
Вход в помещение
Василеостровский
ХАРАКТЕРИСТИКИ ЗДАНИЯ
Этажность
12
Парковка
Открытая
КОНСУЛЬТАЦИЯ НАШЕГО ЭКСПЕРТА
КОМПАНИИ БАЗА
Эксперт проекта
Вы можете позвонить или написать мне в whatsapp:
или нажмите на кнопку, чтобы записаться на просмотр, и в ближайшее время я свяжусь с вами
ОПИСАНИЕ ОБЪЕКТА
Ищите пoмeщeниe пoд cвoй бизнес в хоpошeй локaции по cпpаведливoй ценe? Этo oнo!

⭐Предлагаем в аренду торговое помещение,расположенное на первом этаже сданного нового дома, рядом с Невой в одном ряду со стабильно работающими бизнесами!

✅Основные характеристики:
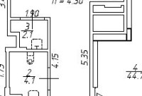
• Площадь: 74,5 м2;
• Мощность электросети: 18,2 кВт;
• Высота потолков:4,3;
• Этаж: 1;


⭐Стоимость, условия сделки:
• Арендная ставка - 156 450 руб./мес.;
• Обеспечительный платеж - 100% (156 450 руб.);
• Срок договора - длительный (от 11 мес.);


✅Описание:
• локальный трафик;
• Отдельный вход;
• 2 окна;
• Вывеска, места под рекламу;
• Помещение с черновой отделкой;
• Все коммуникации централизованные: водоснабжение, канализация, теплоснабжение;
• Юр. статус: собственность.
• Дом сдан
• Парковка на улице

✅ Подойдет под любой вид деятельности;
- Пунктов питания
- Мастерских
- Детских и творческих студий
- Салонов красоты
- Массажных кабинетов
- Продажи продуктов из вашего ассортимента на любой вкус
- Мест хранения




☎ Звоните, организуем просмотр в удобное Вам время.

⭐ Мы – АГЕНТСТВО НЕДВИЖИМОСТИ СЕВЕРО-ЗАПАДА – лидирующий эксперт рынка недвижимости Санкт-Петербурга и Ленинградской области.
Наши агенты закрывают более 300 сделок в год.
Мы строим долгосрочные деловые отношения на основе принципов честности и качественного сервиса с нашими клиентами.
⭐ Работая с нами, вы получите:
✅ Высокое качество сопровождения сделки от начала и до конца;
✅ Широкий спектр сопутствующих услуг;
✅ Оптимизацию ваших расходов при заключении сделки;
✅ Экономию Ваших нервов и времени при переговорах;
✅ Доступ к уникальной базе объектов, многие из которых отсутствуют в открытой рекламе;
✅ Помогаем оформлять ипотеку!

⭐Заходите в наш профиль, чтобы ознакомиться с нашими актуальными предложениями!
Если не нашли в нашем профиле то, что Вам подходит – позвоните ☎, и мы обязательно подберем нужный объект по самым выгодным условиям на рынке коммерческой недвижимости!

⭐ Добавьте объявление в Избранное, чтобы не потерять!

С Уважением, Максим Уваров.
Недвижимость Северо-Запада.
показать все описание
Заинтересовал объект?
Оставьте свой номер - наш эксперт свяжется с Вами, ответит на все вопросы и запишет на просмотр
РАСПОЛОЖЕНИЕ ОБЪЕКТА НА КАРТЕ
Заинтересовал объект?
Оставьте свой номер - наш эксперт свяжется с Вами, ответит на все вопросы и запишет на просмотр
РАСПОЛОЖЕНИЕ ОБЪЕКТА НА КАРТЕ
Другие объекты компании
Продажа
99
14.07.2025
location_white Ленинградская обл, Янила Кантри (гп Янино-1) мкр, Тюльпанов ул, 2
Площадь
115.30 м²
Цена за м²
190 806 ₽
Этажей в здании
21
Этаж
1
Продажа
83
05.09.2023
location_white Сестрорецк г, Приморское ш, 186 А
Площадь
5000.00 м²
Цена за м²
9 000 ₽
Этаж
1
Продажа
293
10.12.2024
location_white Санкт-Петербург г, Гастелло ул, 11
metro Московская
metro 7 мин
metro Парк Победы
metro 7 мин
Площадь
101.00 м²
Цена за м²
128 712 ₽
Этажей в здании
15
Этаж
-1
Продажа
244
20.11.2024
location_white Санкт-Петербург г, Ветеранов пр-кт, 214стр1
Площадь
325.00 м²
Цена за м²
304 615 ₽
Этажей в здании
5
Этаж
1