Аренда углового помещения на трафике, 174м2

ПСН
Дата обновления - 23.03.2024
Итоговая цена 172 000 ₽ / мес Итоговая цена
Стоимость за 1 м² 988 ₽ / мес
Стоимость за 1 м²
metro Академическая
metro мин
metro Гражданский проспект
metro мин
metro Политехническая
metro мин
Площадь помещения
174 м²
ПСН
Дата обновления - 23.03.2024

Аренда углового помещения на трафике, 174м2

ХАРАКТЕРИСТИКИ ПОМЕЩЕНИЯ
Тип сделки
Аренда
Тип помещения
ПСН
Площадь помещения
174 м²
Этаж
1
Высота потолков
3.20 м
Отделка
Чистовая стандарт
ХАРАКТЕРИСТИКИ ЗДАНИЯ
Этажность
16
Парковка
Открытая
КОНСУЛЬТАЦИЯ НАШЕГО ЭКСПЕРТА
КОМПАНИИ БАЗА
Эксперт проекта
Вы можете позвонить или написать мне в whatsapp:
или нажмите на кнопку, чтобы записаться на просмотр, и в ближайшее время я свяжусь с вами
ОПИСАНИЕ ОБЪЕКТА
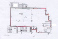
Предлагаем в аренду угловое коммерческое помещение свободного назначения с витринами, рядом с крупными сетевыми арендаторами.

Основные характеристики:
• Площадь 174 м2;
• Мощность электросети: 20 кВт;
• Высота потолков: 3,2 м;
• Этаж 1;
• В 20 минутах от метро Академическая;

Стоимость, условия сделки:
• Арендная ставка - 172 000 руб./мес.;
• Обеспечительный платеж - 100% (172 000 руб.);
• Срок договора - длительный (от 11 мес.);

Описание:
• Хорошее расположение, перекрёсток Северного пр. и ул. Вавиловых, рядом 2 остановки общественного транспорта. 
• Рядом сидят якорные сетевые арендаторы, Семишагов, Красное Белое, Винлаб;
• 2 отдельных входа;
• Витринные окна на Северный проспект;
• Вывеска, места под рекламу;
• В помещении установлены перегородки из гипрока, можно убрать и получить помещение прямоугольной правильной формы;
• Все коммуникации: телефонные линии, водоснабжение, канализация, теплоснабжение;
• Юр. статус: собственность.

Подойдет под любой вид деятельности, кроме продуктового магазина!;

☎ Звоните, организуем просмотр в удобное Вам время.

⭐ Мы – АГЕНТСТВО НЕДВИЖИМОСТИ СЕВЕРО-ЗАПАДА – лидирующий эксперт рынка недвижимости Санкт-Петербурга и Ленинградской области.
Наши агенты закрывают более 300 сделок в год.
Мы строим долгосрочные деловые отношения на основе принципов честности и качественного сервиса с нашими клиентами.
⭐ Работая с нами, вы получите:
✅ Высокое качество сопровождения сделки от начала и до конца;
✅ Широкий спектр сопутствующих услуг;
✅ Оптимизацию ваших расходов при заключении сделки;
✅ Экономию Ваших нервов и времени при переговорах;
✅ Доступ к уникальной базе объектов, многие из которых отсутствуют в открытой рекламе;

⭐Заходите в наш профиль, чтобы ознакомиться с нашими актуальными предложениями!
Если не нашли в нашем профиле то, что Вам подходит – позвоните ☎, и мы обязательно подберем нужный объект по самым выгодным условиям на рынке коммерческой недвижимости!

⭐ Добавьте объявление в Избранное, чтобы не потерять!

С Уважением, Зубцов Михаил.
Недвижимость Северо-Запада.
показать все описание
Заинтересовал объект?
Оставьте свой номер - наш эксперт свяжется с Вами, ответит на все вопросы и запишет на просмотр
РАСПОЛОЖЕНИЕ ОБЪЕКТА НА КАРТЕ
Заинтересовал объект?
Оставьте свой номер - наш эксперт свяжется с Вами, ответит на все вопросы и запишет на просмотр
РАСПОЛОЖЕНИЕ ОБЪЕКТА НА КАРТЕ
Другие объекты компании
Продажа
293
09.09.2025
location_white Санкт-Петербург г, Инструментальщиков ул, 18
Площадь
655.10 м²
Цена за м²
412 150 ₽
Этажей в здании
10
Этаж
1
Продажа
112
27.06.2025
location_white Санкт-Петербург г, Тореза пр-кт, 75к2
Площадь
268.00 м²
Цена за м²
97 014 ₽
Этажей в здании
5
Этаж
1
Аренда
23
29.10.2025
location_white Санкт-Петербург г, Народного Ополчения пр-кт, 62
Площадь
561.00 м²
Цена за м²
1 000 ₽
Этажей в здании
2
Этаж
1
Продажа
50
25.02.2026
location_white Санкт-Петербург г, Суворовский пр-кт, 38
Площадь
154.00 м²
Цена за м²
512 987 ₽
Этажей в здании
1
Этаж
1