Аренда углового помещения в проходимом месте

ПСН
Дата обновления - 14.07.2025
Итоговая цена 180 000 ₽ / мес Итоговая цена
Стоимость за 1 м² 3 202 ₽ / мес
Стоимость за 1 м²
ПСН
Дата обновления - 14.07.2025

Аренда углового помещения в проходимом месте

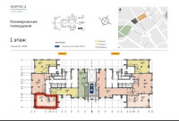
ХАРАКТЕРИСТИКИ ПОМЕЩЕНИЯ
Тип сделки
Аренда
Тип помещения
ПСН
Площадь помещения
56 м²
Этаж
1
Высота потолков
3.30 м
Отделка
Чистовая стандарт
ХАРАКТЕРИСТИКИ ЗДАНИЯ
Этажность
25
Парковка
Наземная
КОНСУЛЬТАЦИЯ НАШЕГО ЭКСПЕРТА
КОМПАНИИ БАЗА
Эксперт проекта
Вы можете позвонить или написать мне в whatsapp:
или нажмите на кнопку, чтобы записаться на просмотр, и в ближайшее время я свяжусь с вами
ОПИСАНИЕ ОБЪЕКТА
⭐Предлагаем в аренду угловое помещение в густозаселенном районе, рядом школа, лента, леруа мерлен, первая линия. На первое время предоставляются арендные каникулы.

✅Основные характеристики:
• Площадь: 56,2 м2;
• Мощность электросети: 25 кВт;
• Высота потолков:3,3 ;
• Этаж: 1 ;

⭐Стоимость, условия сделки:
• Арендная ставка -180 000 руб./мес.;
• Обеспечительный платеж - 100% (180 000 руб.);
• Срок договора - длительный (от 11 мес.);


✅Описание:
• Высокий пешеходный и автомобильный трафик;
• Отдельный вход;
• Большие окна;
• Вывеска, места под рекламу;
• Помещение в хорошем состоянии;
• Все коммуникации: телефонные линии, водоснабжение, канализация, теплоснабжение;
• Юр. статус: собственность.

✅ Подойдет под любой вид деятельности;




☎ Звоните, организуем просмотр в удобное Вам время.

⭐ Мы – АГЕНТСТВО НЕДВИЖИМОСТИ СЕВЕРО-ЗАПАДА – лидирующий эксперт рынка недвижимости Санкт-Петербурга и Ленинградской области.
Наши агенты закрывают более 300 сделок в год.
Мы строим долгосрочные деловые отношения на основе принципов честности и качественного сервиса с нашими клиентами.
⭐ Работая с нами, вы получите:
✅ Высокое качество сопровождения сделки от начала и до конца;
✅ Широкий спектр сопутствующих услуг;
✅ Оптимизацию ваших расходов при заключении сделки;
✅ Экономию Ваших нервов и времени при переговорах;
✅ Доступ к уникальной базе объектов, многие из которых отсутствуют в открытой рекламе;
✅ Помогаем оформлять ипотеку!

⭐Заходите в наш профиль, чтобы ознакомиться с нашими актуальными предложениями!
Если не нашли в нашем профиле то, что Вам подходит – позвоните ☎, и мы обязательно подберем нужный объект по самым выгодным условиям на рынке коммерческой недвижимости!

⭐ Добавьте объявление в Избранное, чтобы не потерять!

С Уважением, Сергей.
Недвижимость Северо-Запада.
показать все описание
Заинтересовал объект?
Оставьте свой номер - наш эксперт свяжется с Вами, ответит на все вопросы и запишет на просмотр
РАСПОЛОЖЕНИЕ ОБЪЕКТА НА КАРТЕ
Заинтересовал объект?
Оставьте свой номер - наш эксперт свяжется с Вами, ответит на все вопросы и запишет на просмотр
РАСПОЛОЖЕНИЕ ОБЪЕКТА НА КАРТЕ
Другие объекты компании
Аренда
128
08.04.2024
location_white Ленинградская обл, Колтуши д, Дерибасовская, 5б
Площадь
432.00 м²
Цена за м²
600 ₽
Этажей в здании
1
Этаж
1
Продажа
467
10.10.2024
location_white Ленинградская обл, Пески д, Победы ул, 21
Площадь
1120.00 м²
Цена за м²
78 571 ₽
Этажей в здании
1
Этаж
1
Аренда
21
20.10.2025
location_white Ленинградская обл, Всеволожск г, Плоткина ул, 16
Площадь
31.20 м²
Цена за м²
1 500 ₽
Этажей в здании
1
Этаж
1
Продажа
583
27.01.2025
location_white г Санкт-Петербург, Белы Куна ул, 3Б
Площадь
677.00 м²