Аренда ЗУ 24 сотки

УЧАСТОК ЗЕМЛИ
Дата обновления - 15.10.2025
Итоговая цена 0 ₽ / мес Итоговая цена
Стоимость за 1 м² 0 ₽ / мес
Стоимость за 1 м²
Площадь помещения
2 400 м²
УЧАСТОК ЗЕМЛИ
Дата обновления - 15.10.2025

Аренда ЗУ 24 сотки

ХАРАКТЕРИСТИКИ ПОМЕЩЕНИЯ
Тип сделки
Аренда
Тип помещения
УЧАСТОК ЗЕМЛИ
Площадь помещения
2 400 м²
Этаж
1
Высота потолков
0.00 м
ХАРАКТЕРИСТИКИ ЗДАНИЯ
КОНСУЛЬТАЦИЯ НАШЕГО ЭКСПЕРТА
Михаил Лунев
Эксперт проекта
Вы можете позвонить или написать мне в whatsapp:
или нажмите на кнопку, чтобы записаться на просмотр, и в ближайшее время я свяжусь с вами
ОПИСАНИЕ ОБЪЕКТА
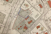
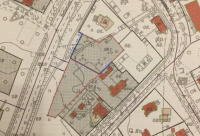
⭐Предлагаем в аренду универсальный земельный участок площадью 24 сотки в Курортном районе Санкт-Петербурга в Зеленогорске.

✅Основные характеристики:
• Площадь: 24 сотки (2400 м2);
• Кадастровый номер: 78:38:0022483:3;
• Категория земель: земли населенных пунктов;
• Участок возможно использовать как в жилых, так и в коммерческих целях;
• В соответствии с ГПЗУ основные виды разрешённого использования:
-для индивидуального жилищного строительства;
-хранение автотранспорта;
-предоставление коммунальных услуг;
-оказание социальной помощи населению;
-оказание услуг связи;
-бытовое обслуживание;
-амбулаторно-поликлиническое обслуживание;
-дошкольное, начальное и среднее общее образование;
-объекты культурно-досуговой деятельности;
-магазины;
-общественное питание;
-банковская и страховая деятельность;
-обеспечение занятий спортом в помещениях;
-площадки для занятий спортом;
-ведение садоводства и др.

• Условно разрешённые виды использования:
-заправка транспортных средств;
-обеспечение дорожного отдыха;
-автомобильные мойки;
-ремонт автомобилей;
-амбулаторное ветеринарное обслуживание;
-осуществление религиозных обрядов;
-религиозное управление и образование;
-для ведения личного подсобного хозяйства и др.

• Возможно разделение на два участка по 12 соток с проектированием и исполнением въездов с асфальтированной магистрали (Выборгский переулок);
• Участок ровный, дренированный;
• По границам участка проходят все необходимые городские коммуникации: электричество, водопровод, канализация, газ;
• Мощность электросети: 15 кВт;
• Подъездные пути: асфальт;
• Участок находится в оживлённом месте на дороге с интенсивным трафиком;
• Напротив - комплекс зданий и сооружений торговли и услуг.
• Оборудован пешеходный переход;
• Имеется въезд с улицы Мира;
• В шаговой доступности вся социальная инфраструктура - общеобразовательная, музыкальная , художественная, спортивная школы, поликлиника, магазины, гостиницы, кафе, рестораны, парки, бассейны, пляжи, МФЦ и административные учреждения;
• До выезда на ЗСД по Зеленогорскому шоссе - 17 км, до КАД -32 км, до железнодорожной станции "Зеленогорск" - 15 минут пешком (скоростной поезд "Ласточка" идёт до центра Санкт-Петербурга). ;


⭐Стоимость, условия сделки:
• Арендная ставка: ПО ЗАПРОСУ;
• Все документы на участок в полном порядке. Собственность физического лица. Ограничения и обременения отсутствуют.


☎ Звоните, организуем просмотр в удобное Вам время.

⭐ Мы – АГЕНТСТВО НЕДВИЖИМОСТИ СЕВЕРО-ЗАПАДА – лидирующий эксперт рынка недвижимости Санкт-Петербурга и Ленинградской области.
Наши агенты закрывают более 300 сделок в год.
Мы строим долгосрочные деловые отношения на основе принципов честности и качественного сервиса с нашими клиентами.
⭐ Работая с нами, вы получите:
✅ Высокое качество сопровождения сделки от начала и до конца;
✅ Широкий спектр сопутствующих услуг;
✅ Оптимизацию ваших расходов при заключении сделки;
✅ Экономию Ваших нервов и времени при переговорах;
✅ Доступ к уникальной базе объектов, многие из которых отсутствуют в открытой рекламе;
✅ Помогаем оформлять ипотеку!

⭐Заходите в наш профиль, чтобы ознакомиться с нашими актуальными предложениями!
Если не нашли в нашем профиле то, что Вам подходит – позвоните ☎, и мы обязательно подберем нужный объект по самым выгодным условиям на рынке коммерческой недвижимости!

⭐ Добавьте объявление в Избранное, чтобы не потерять!

С Уважением, Михаил.
Недвижимость Северо-Запада.
показать все описание
Заинтересовал объект?
Оставьте свой номер - наш эксперт свяжется с Вами, ответит на все вопросы и запишет на просмотр
РАСПОЛОЖЕНИЕ ОБЪЕКТА НА КАРТЕ
Заинтересовал объект?
Оставьте свой номер - наш эксперт свяжется с Вами, ответит на все вопросы и запишет на просмотр
РАСПОЛОЖЕНИЕ ОБЪЕКТА НА КАРТЕ
Другие объекты компании
Аренда
97
18.06.2025
location_white Ленинградская обл, Янино-1 гп, Ветряных мельниц (Янила Кантри мкр) ул, 3
Площадь
100.00 м²
Цена за м²
1 600 ₽
Этажей в здании
1
Этаж
2
Аренда
129
16.07.2025
location_white Санкт-Петербург г, Тихоокеанская, 1к1
Площадь
195.00 м²
Цена за м²
1 000 ₽
Этажей в здании
13
Этаж
1
Аренда
Архив
263
02.12.2024
location_white Ленинградская обл, Бугры г, Тихая ул, 5к2
Площадь
72.80 м²
Цена за м²
2 100 ₽
Этажей в здании
18
Этаж
1
Аренда
18
23.04.2024
location_white Санкт-Петербург г, Невский пр-кт, 61 А
Площадь
231.70 м²
Цена за м²
2 157 ₽
Этажей в здании
5
Этаж
-1