ГАБ, окупаемость 7 лет, + индексация, 935 м2

ПСН
Дата обновления - 11.11.2025
Итоговая цена 86 000 000 ₽ Итоговая цена
Стоимость за 1 м² 91 978 ₽
Стоимость за 1 м²
ПСН
Дата обновления - 11.11.2025

ГАБ, окупаемость 7 лет, + индексация, 935 м2

ХАРАКТЕРИСТИКИ ПОМЕЩЕНИЯ
Тип сделки
Продажа
Тип помещения
ПСН
Площадь помещения
935 м²
Этаж
-1
Высота потолков
3.50 м
Отделка
Чистовая стандарт
ХАРАКТЕРИСТИКИ ЗДАНИЯ
Этажность
12
Парковка
Наземная
КОНСУЛЬТАЦИЯ НАШЕГО ЭКСПЕРТА
Александр Николаев
Эксперт проекта
Вы можете позвонить или написать мне в whatsapp:
или нажмите на кнопку, чтобы записаться на просмотр, и в ближайшее время я свяжусь с вами
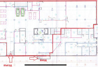
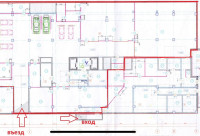
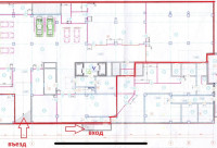
ОПИСАНИЕ ОБЪЕКТА
⭐Предлагаем в продажу готовый арендный бизнес на 2-м Муринском проспекте, д. 36


✅Основные характеристики:


· Площадь: 935 м2;
· Мощность электросети: 50 кВт;
· Высота потолков: 3.5м;
· Этаж: цоколь;
· В 5 минутах от метро Площадь Мужества;


⭐Стоимость, условия сделки: 86 000 000 руб



· Полностью сдано в аренду стабильным бизнесам: «Киберкар» (тюнинг) и «Car spa» (мойка).
· Арендная ставка -1 000 000 руб./мес. (ком. платежи оплачиваются отдельно);
· Договор аренды до ноября 2030 г.


✅Описание:
· Высокий пешеходный и автомобильный трафик;
· Отдельных 3 входа;
· Вывеска, места под рекламу;
· Помещение в хорошем состоянии; Современное здание 2022 год постройки
· Все коммуникации: телефонные линии, водоснабжение, канализация, теплоснабжение;
· Юр. статус: собственность.

✅ Подойдет под любой вид деятельности; Уже функционирует как автосервис и центр ухода за автомобилями.


---

☎ Звоните, организуем просмотр в удобное Вам время.

⭐ Мы – АГЕНТСТВО НЕДВИЖИМОСТИ СЕВЕРО-ЗАПАДА – лидирующий эксперт рынка недвижимости Санкт-Петербурга и Ленинградской области.
Наши агенты закрывают более 300 сделок в год.
Мы строим долгосрочные деловые отношения на основе принципов честности и качественного сервиса с нашими клиентами.
⭐ Работая с нами, вы получите:
✅ Высокое качество сопровождения сделки от начала и до конца;
✅ Широкий спектр сопутствующих услуг;
✅ Оптимизацию ваших расходов при заключении сделки;
✅ Экономию Ваших нервов и времени при переговорах;
✅ Доступ к уникальной базе объектов, многие из которых отсутствуют в открытой рекламе;
✅ Помогаем оформлять ипотеку!

⭐Заходите в наш профиль, чтобы ознакомиться с нашими актуальными предложениями!
Если не нашли в нашем профиле то, что Вам подходит – позвоните ☎, и мы обязательно подберем нужный объект по самым выгодным условиям на рынке коммерческой недвижимости!

⭐ Добавьте объявление в Избранное, чтобы не потерять!

С Уважением, Александр.
Недвижимость Северо-Запада.
показать все описание
Заинтересовал объект?
Оставьте свой номер - наш эксперт свяжется с Вами, ответит на все вопросы и запишет на просмотр
РАСПОЛОЖЕНИЕ ОБЪЕКТА НА КАРТЕ
Заинтересовал объект?
Оставьте свой номер - наш эксперт свяжется с Вами, ответит на все вопросы и запишет на просмотр
РАСПОЛОЖЕНИЕ ОБЪЕКТА НА КАРТЕ
Другие объекты компании
Продажа
120
16.07.2025
location_white Санкт-Петербург г, Фёдора Котанова ул, 5к1стр1
Площадь
104.70 м²
Цена за м²
490 926 ₽
Этажей в здании
17
Этаж
1
Продажа
67
04.09.2025
location_white Санкт-Петербург г, Малый В.О. пр-кт, 63/14
Площадь
144.70 м²
Цена за м²
262 612 ₽
Этажей в здании
10
Этаж
1
Продажа
168
28.05.2025
location_white Санкт-Петербург г, Московское ш, 262к4 стр 1
Площадь
210.00 м²
Цена за м²
165 000 ₽
Этажей в здании
1
Этаж
1
Продажа
Архив
30
23.01.2023
location_white Санкт-Петербург г, Наставников пр-кт, 25к1 А
Площадь
50.00 м²
Цена за м²
370 000 ₽
Этажей в здании
14
Этаж
1