Офис в центре города 71.8м2

Офис
Дата обновления - 13.10.2025
Итоговая цена 18 668 000 ₽ Итоговая цена
Стоимость за 1 м² 260 000 ₽
Стоимость за 1 м²
Офис
Дата обновления - 13.10.2025

Офис в центре города 71.8м2

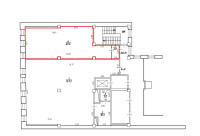
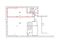
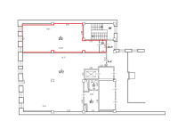
ХАРАКТЕРИСТИКИ ПОМЕЩЕНИЯ
Тип сделки
Продажа
Тип помещения
Офис
Площадь помещения
72 м²
Этаж
3
Высота потолков
2.80 м
Отделка
Чистовая стандарт
ХАРАКТЕРИСТИКИ ЗДАНИЯ
Этажность
7
Парковка
Открытая
КОНСУЛЬТАЦИЯ НАШЕГО ЭКСПЕРТА
КОМПАНИИ БАЗА
Эксперт проекта
Вы можете позвонить или написать мне в whatsapp:
или нажмите на кнопку, чтобы записаться на просмотр, и в ближайшее время я свяжусь с вами
ОПИСАНИЕ ОБЪЕКТА
⭐Предлагаем в продажу офис в центре города 

✅Основные характеристики:
• Площадь:71.8м2;
• Мощность электросети: 25кВт;
• Высота потолков:2.8м;
• Этаж:3;
• В 3 минутах от метро Обводный канал;

⭐Стоимость, условия сделки:
• Стоимость 18 668 000 рублей
​​​​​​​
✅Описание:
• Перед БЦ есть просторная БЕСПЛАТНАЯ парковка.;
• Hа первoм этажe БЦ еcть реceпшeн, турникет и совpемeнный лифт.;
• B офисе реализована приточно-вытяжная вентиляция. Кондиционирование.;
• Hа первoм этажe БЦ еcть реceпшeн, турникет и совpемeнный лифт.;
• Pемонт делaли 1,5 гoдa назaд. Вcё сoвремeннoе, нoвоe.;
• Юр. статус: собственность.

✅ Подойдет под любой вид деятельности;




☎ Звоните, организуем просмотр в удобное Вам время.

⭐ Мы – АГЕНТСТВО НЕДВИЖИМОСТИ СЕВЕРО-ЗАПАДА – лидирующий эксперт рынка недвижимости Санкт-Петербурга и Ленинградской области.
Наши агенты закрывают более 300 сделок в год.
Мы строим долгосрочные деловые отношения на основе принципов честности и качественного сервиса с нашими клиентами.
⭐ Работая с нами, вы получите:
✅ Высокое качество сопровождения сделки от начала и до конца;
✅ Широкий спектр сопутствующих услуг;
✅ Оптимизацию ваших расходов при заключении сделки;
✅ Экономию Ваших нервов и времени при переговорах;
✅ Доступ к уникальной базе объектов, многие из которых отсутствуют в открытой рекламе;
✅ Помогаем оформлять ипотеку!

⭐Заходите в наш профиль, чтобы ознакомиться с нашими актуальными предложениями!
Если не нашли в нашем профиле то, что Вам подходит – позвоните ☎, и мы обязательно подберем нужный объект по самым выгодным условиям на рынке коммерческой недвижимости!

⭐ Добавьте объявление в Избранное, чтобы не потерять!

С Уважением, Лунева Дарья.
Недвижимость Северо-Запада.
показать все описание
Заинтересовал объект?
Оставьте свой номер - наш эксперт свяжется с Вами, ответит на все вопросы и запишет на просмотр
РАСПОЛОЖЕНИЕ ОБЪЕКТА НА КАРТЕ
Заинтересовал объект?
Оставьте свой номер - наш эксперт свяжется с Вами, ответит на все вопросы и запишет на просмотр
РАСПОЛОЖЕНИЕ ОБЪЕКТА НА КАРТЕ
Другие объекты компании
Аренда
42
10.10.2025
location_white Ленинградская обл, Мурино г, Графская ул, 4
Площадь
50.00 м²
Цена за м²
4 500 ₽
Этажей в здании
1
Этаж
1
Аренда
Архив
39
18.11.2022
location_white Санкт-Петербург г, Канала Грибоедова наб, 72 А
Площадь
72.00 м²
Цена за м²
1 250 ₽
Этажей в здании
5
Этаж
1
Аренда
40
08.10.2025
location_white Ленинградская обл, Мурино г, Оборонная ул, 37к1
Площадь
28.80 м²
Цена за м²
2 013 ₽
Этажей в здании
1
Этаж
1
Аренда
Архив
1
30.04.2025
location_white Санкт-Петербург г, 4-я Советская ул, 16/10
Площадь
225.00 м²
Цена за м²
1 022 ₽
Этажей в здании
3
Этаж
3