ОСЗ на большом трафике с парковкой

ОСЗ
Дата обновления - 07.08.2025
Итоговая цена 2 040 000 ₽ / мес Итоговая цена
Стоимость за 1 м² 1 700 ₽ / мес
Стоимость за 1 м²
ОСЗ
Дата обновления - 07.08.2025

ОСЗ на большом трафике с парковкой

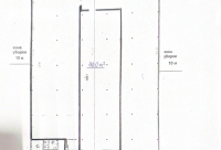
ХАРАКТЕРИСТИКИ ПОМЕЩЕНИЯ
Тип сделки
Аренда
Тип помещения
ОСЗ
Площадь помещения
1 200 м²
Этаж
1
Высота потолков
4.00 м
Отделка
Чистовая стандарт
ХАРАКТЕРИСТИКИ ЗДАНИЯ
Этажность
1
Парковка
Наземная
КОНСУЛЬТАЦИЯ НАШЕГО ЭКСПЕРТА
КОМПАНИИ БАЗА
Эксперт проекта
Вы можете позвонить или написать мне в whatsapp:
или нажмите на кнопку, чтобы записаться на просмотр, и в ближайшее время я свяжусь с вами
ОПИСАНИЕ ОБЪЕКТА
⭐Предлагаем в аренду ОСЗ на трафике с парковкой в Петергофе

✅Основные характеристики:
• Площадь: 1200 м2;
• Мощность электросети:  100 кВт;
• Высота потолков: 4 м;
• Этаж: 1;
• Своя парковка;


⭐Стоимость, условия сделки:
• Арендная ставка - 2 040 000 руб./мес.;
• Обеспечительный платеж - 100% (2 040 000 руб.);
• Срок договора - длительный (от 11 мес.);


✅Описание:
• Высокий пешеходный и автомобильный трафик;
• Возможность разделения площади;
• Свободное ОСЗ в густо-населённом районе;
• Вывеска, места под рекламу;
• Помещение в хорошем состоянии;
• Все коммуникации: телефонные линии, водоснабжение, канализация, теплоснабжение;
• Юр. статус: собственность.

✅ Подойдет под любой вид деятельности;




☎ Звоните, организуем просмотр в удобное Вам время.

⭐ Мы – АГЕНТСТВО НЕДВИЖИМОСТИ СЕВЕРО-ЗАПАДА – лидирующий эксперт рынка недвижимости Санкт-Петербурга и Ленинградской области.
Наши агенты закрывают более 300 сделок в год.
Мы строим долгосрочные деловые отношения на основе принципов честности и качественного сервиса с нашими клиентами.
⭐ Работая с нами, вы получите:
✅ Высокое качество сопровождения сделки от начала и до конца;
✅ Широкий спектр сопутствующих услуг;
✅ Оптимизацию ваших расходов при заключении сделки;
✅ Экономию Ваших нервов и времени при переговорах;
✅ Доступ к уникальной базе объектов, многие из которых отсутствуют в открытой рекламе;
✅ Помогаем оформлять ипотеку!

⭐Заходите в наш профиль, чтобы ознакомиться с нашими актуальными предложениями!
Если не нашли в нашем профиле то, что Вам подходит – позвоните ☎, и мы обязательно подберем нужный объект по самым выгодным условиям на рынке коммерческой недвижимости!

⭐ Добавьте объявление в Избранное, чтобы не потерять!

С Уважением, Корчагин Тимофей.
Недвижимость Северо-Запада.
показать все описание
Заинтересовал объект?
Оставьте свой номер - наш эксперт свяжется с Вами, ответит на все вопросы и запишет на просмотр
РАСПОЛОЖЕНИЕ ОБЪЕКТА НА КАРТЕ
Заинтересовал объект?
Оставьте свой номер - наш эксперт свяжется с Вами, ответит на все вопросы и запишет на просмотр
РАСПОЛОЖЕНИЕ ОБЪЕКТА НА КАРТЕ
Другие объекты компании
Продажа
159
10.09.2025
location_white Санкт-Петербург г, Обводного канала наб, 21 А
Площадь
3660.00 м²
Цена за м²
109 289 ₽
Этажей в здании
2
Этаж
2
Продажа
19
06.02.2026
location_white Шушары п, Нины Петровой ул, 8к1
Площадь
152.00 м²
Цена за м²
319 736 ₽
Этажей в здании
1
Этаж
1
Аренда
Эксклюзив
2
23.09.2024
location_white Санкт-Петербург г, Лесной пр-кт, 23/19 А
Площадь
30.00 м²
Цена за м²
3 300 ₽
Этажей в здании
7
Этаж
1
Продажа
Архив
4
08.11.2022
location_white Санкт-Петербург г, Петровская коса, 1 к.1
Площадь
416.00 м²
Цена за м²
156 250 ₽
Этажей в здании
5
Этаж
1