Отель на Фонтанке у Невского

ОТЕЛЬ
Дата обновления - 18.08.2025
Итоговая цена 30 000 000 ₽ Итоговая цена
Стоимость за 1 м² 384 615 ₽
Стоимость за 1 м²
ОТЕЛЬ
Дата обновления - 18.08.2025

Отель на Фонтанке у Невского

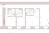
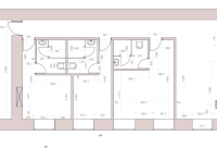
ХАРАКТЕРИСТИКИ ПОМЕЩЕНИЯ
Тип сделки
Продажа
Тип помещения
ОТЕЛЬ
Площадь помещения
78 м²
Этаж
2
Высота потолков
2.60 м
Отделка
Чистовая стандарт
Вход в помещение
Центральный
ХАРАКТЕРИСТИКИ ЗДАНИЯ
Этажность
3
Парковка
Наземная
КОНСУЛЬТАЦИЯ НАШЕГО ЭКСПЕРТА
КОМПАНИИ БАЗА
Эксперт проекта
Вы можете позвонить или написать мне в whatsapp:
или нажмите на кнопку, чтобы записаться на просмотр, и в ближайшее время я свяжусь с вами
ОПИСАНИЕ ОБЪЕКТА
⭐Предлагаем в продажу «Бутик-отель «Мегаполис»» на 4 номера, располагается в золотом треугольнике Санкт-Петербурга! Центр города, в центре центрального района - локация говорит сама за себя, тут есть всё для любого рода отдыха! 

✅Основные характеристики:
• Площадь: 78 м2;
• Мощность электросети: 15 кВт;
• Этаж: 2;
• В 3 минутах пешком от метро «Маяковская»;

⭐Стоимость, условия сделки:
• Стоимость - 30 000 000 руб./мес. - действующий отель;
• ГАП составляет 3 028 000 руб./год. 
• Номерной фонд:
  Двухместный номер. 
  Двухместный номер. 
  Двухместный номер.  
  Одноместный номер.  

✅Описание:
• "Дом, где жили: в 1837 г. актриса В.Н. Асенкова, до 1843 г. издатель А.А. Краевский, в 1842 - 1846 гг. литературный критик В.Г. Белинский"
• Рядом с отелем находятся главные рестораны улицы Рубинштейна. Буквально в 100 м от Отеля располагается Невский проспект. Неподалёку: Гостиный двор, Улица Зодчего Росси и Михайловский замок.
• Окна во двор;
• Помещение в отличном состоянии;
• Все коммуникации: телефонные линии, водоснабжение, канализация, теплоснабжение;
• Документы готовы к быстрой сделке. Собственники - физ. лицо.


✅ Подойдет под любой вид деятельности;




☎ Звоните, организуем просмотр в удобное Вам время.

⭐ Мы – АГЕНТСТВО НЕДВИЖИМОСТИ СЕВЕРО-ЗАПАДА – лидирующий эксперт рынка недвижимости Санкт-Петербурга и Ленинградской области.
Наши агенты закрывают более 300 сделок в год.
Мы строим долгосрочные деловые отношения на основе принципов честности и качественного сервиса с нашими клиентами.
⭐ Работая с нами, вы получите:
✅ Высокое качество сопровождения сделки от начала и до конца;
✅ Широкий спектр сопутствующих услуг;
✅ Оптимизацию ваших расходов при заключении сделки;
✅ Экономию Ваших нервов и времени при переговорах;
✅ Доступ к уникальной базе объектов, многие из которых отсутствуют в открытой рекламе;
✅ Помогаем оформлять ипотеку!

⭐Заходите в наш профиль, чтобы ознакомиться с нашими актуальными предложениями!
Если не нашли в нашем профиле то, что Вам подходит – позвоните ☎, и мы обязательно подберем нужный объект по самым выгодным условиям на рынке коммерческой недвижимости!

⭐ Добавьте объявление в Избранное, чтобы не потерять!

С Уважением, Игнатьев Тимур.
Недвижимость Северо-Запада.
показать все описание
Заинтересовал объект?
Оставьте свой номер - наш эксперт свяжется с Вами, ответит на все вопросы и запишет на просмотр
РАСПОЛОЖЕНИЕ ОБЪЕКТА НА КАРТЕ
Заинтересовал объект?
Оставьте свой номер - наш эксперт свяжется с Вами, ответит на все вопросы и запишет на просмотр
РАСПОЛОЖЕНИЕ ОБЪЕКТА НА КАРТЕ
Другие объекты компании
Продажа
36
11.07.2024
location_white Санкт-Петербург г, Каменноостровский пр-кт, 24 А
Площадь
337.20 м²
Цена за м²
473 457 ₽
Этажей в здании
5
Этаж
1
Продажа
59
19.03.2026
location_white Санкт-Петербург г, Гороховая ул, 47 В
Площадь
132.00 м²
Цена за м²
497 500 ₽
Этажей в здании
1
Этаж
1
Аренда
Архив
0
03.06.2025
location_white Санкт-Петербург г, 1-й Верхний пер, 12
Площадь
2158.00 м²
Цена за м²
1 400 ₽
Этажей в здании
1
Этаж
1
Продажа
Архив
0
18.10.2024
location_white Санкт-Петербург г, Заневский пр-кт, 65а А
Площадь
164.80 м²
Цена за м²
350 000 ₽
Этажей в здании
1
Этаж
1