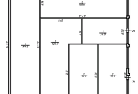
Помещение площадью 577 м2 с арендаторами

ОСЗ
Дата обновления - 03.12.2025
Итоговая цена 200 000 000 ₽ Итоговая цена
Стоимость за 1 м² 346 620 ₽
Стоимость за 1 м²
ОСЗ
Дата обновления - 03.12.2025

Помещение площадью 577 м2 с арендаторами

ХАРАКТЕРИСТИКИ ПОМЕЩЕНИЯ
Тип сделки
Продажа
Тип помещения
ОСЗ
Площадь помещения
577 м²
Этаж
1
Высота потолков
6.00 м
Отделка
Чистовая стандарт
ХАРАКТЕРИСТИКИ ЗДАНИЯ
Этажность
1
Парковка
Открытая
КОНСУЛЬТАЦИЯ НАШЕГО ЭКСПЕРТА
Михаил Лунев
Эксперт проекта
Вы можете позвонить или написать мне в whatsapp:
или нажмите на кнопку, чтобы записаться на просмотр, и в ближайшее время я свяжусь с вами
ОПИСАНИЕ ОБЪЕКТА
⭐ Предлагаем в продажу ТЦ   с арендаторами.Интенсивный пешеходный и автомобильный трафик. Густонаселенный спальный район. Эксклюзивная локация. Крупный перекресток. Рядом остановки общественного транспорта, напротив здания - два пешеходных перехода

✅ Основные характеристики:
• Площадь ОСЗ 577 м2;
• Площадь ЗУ 670м2
• Мощность электросети: 100 кВт;
• Высота потолков 6 м;
• Этаж 1

⭐ Стоимость, условия сделки:
• Цена объекта - 200 000 000 рублей;
• ОБЩИЙ МАП - 1 405 699 руб.мес;
• В собственности юр лица на УСН
• МАП Зоопторг 346 500 рублей в месяц
• МАП Альбион 267 499  рублей в месяц
• МАП Аптека 176 400  рублей в месяц
• МАП  Вкусвилл 199 000 рублей в месяц
• МАП  200 000 рублей в месяц
• МАП  216 300 рублей в месяц


✅ Описание:
• Высокий пешеходный и автомобильный трафик;
• Задние поделено на Нки с отдельными кадастрами. 
• Большие витринные окна;
• Вывеска, места под рекламу;
• Помещение в хорошем состоянии;
• Все коммуникации: телефонные линии, водоснабжение, канализация, теплоснабжение;
• Юр. статус: собственность.


показать все описание
Заинтересовал объект?
Оставьте свой номер - наш эксперт свяжется с Вами, ответит на все вопросы и запишет на просмотр
РАСПОЛОЖЕНИЕ ОБЪЕКТА НА КАРТЕ
Заинтересовал объект?
Оставьте свой номер - наш эксперт свяжется с Вами, ответит на все вопросы и запишет на просмотр
РАСПОЛОЖЕНИЕ ОБЪЕКТА НА КАРТЕ
Другие объекты компании
Аренда
Архив
146
08.11.2022
location_white Санкт-Петербург г, пр-кт Дунайский, 27к1
Площадь
280.00 м²
Цена за м²
2 000 ₽
Этажей в здании
3
Этаж
2
Продажа
519
02.11.2024
location_white Санкт-Петербург г, Индустриальный пр-кт, 76
Площадь
1260.00 м²
Цена за м²
185 000 ₽
Этажей в здании
1
Этаж
1
Продажа
22
13.02.2026
location_white Песочный п, Школьная ул, 80
Площадь
85.00 м²
Цена за м²
282 352 ₽
Этажей в здании
1
Этаж
1
Аренда
248
18.06.2025
location_white Ленинградская обл, Янино-1 гп, Ветряных мельниц (Янила Кантри мкр) ул, 3
Площадь
70.00 м²
Цена за м²
1 500 ₽
Этажей в здании
1
Этаж
2