Помещение рядом с Магнитом с арендатором Вингараж

ПСН
Дата обновления - 20.01.2026
Итоговая цена 33 000 000 ₽ Итоговая цена
Стоимость за 1 м² 352 941 ₽
Стоимость за 1 м²
ПСН
Дата обновления - 20.01.2026

Помещение рядом с Магнитом с арендатором Вингараж

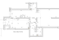
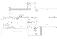
ХАРАКТЕРИСТИКИ ПОМЕЩЕНИЯ
Тип сделки
Продажа
Тип помещения
ПСН
Площадь помещения
94 м²
Этаж
1
Высота потолков
3.00 м
Отделка
Черновая
ХАРАКТЕРИСТИКИ ЗДАНИЯ
Этажность
24
Парковка
Наземная
КОНСУЛЬТАЦИЯ НАШЕГО ЭКСПЕРТА
Дмитрий Ефремов
Эксперт проекта
Вы можете позвонить или написать мне в whatsapp:
или нажмите на кнопку, чтобы записаться на просмотр, и в ближайшее время я свяжусь с вами
ОПИСАНИЕ ОБЪЕКТА
⭐Предлагаем в продажу помещение свободного назначения в новом ЖК рядом с Магнитом. 

✅Основные характеристики:
• Площадь: 93.5 кв.м;
• Мощность электросети: 15 кВт;
• Высота потолков:3 м;
• Этаж: 1;

⭐Стоимость, условия сделки:
• Цена продажи - 33 000 000 руб;
• Арендатор - Вингараж;  
• МАП 250 000 руб/мес. Арендные каникулы до февраля, далее 10 месяцев МАП 150 000. Ежегодная безусловная индексация 3%
• Срок договора - длительный;
​​​​​​​• Окупаемость - 11.5 лет.

✅Описание:
• Высокий пешеходный и автомобильный трафик;
• Выход на Славянскую улицу - является основной пешеходной зоной в локации;
• Напротив помещения парковка, расположено рядом с Магнитом;
• Вывеска, места под рекламу;
• Помещение в хорошем состоянии;
• Все коммуникации: телефонные линии, водоснабжение, канализация, теплоснабжение;
• Юр. статус: собственность.

✅ Подойдет под любой вид деятельности;




☎ Звоните, организуем просмотр в удобное Вам время.

⭐ Мы – АГЕНТСТВО НЕДВИЖИМОСТИ СЕВЕРО-ЗАПАДА – лидирующий эксперт рынка недвижимости Санкт-Петербурга и Ленинградской области.
Наши агенты закрывают более 300 сделок в год.
Мы строим долгосрочные деловые отношения на основе принципов честности и качественного сервиса с нашими клиентами.
⭐ Работая с нами, вы получите:
✅ Высокое качество сопровождения сделки от начала и до конца;
✅ Широкий спектр сопутствующих услуг;
✅ Оптимизацию ваших расходов при заключении сделки;
✅ Экономию Ваших нервов и времени при переговорах;
✅ Доступ к уникальной базе объектов, многие из которых отсутствуют в открытой рекламе;
✅ Помогаем оформлять ипотеку!

⭐Заходите в наш профиль, чтобы ознакомиться с нашими актуальными предложениями!
Если не нашли в нашем профиле то, что Вам подходит – позвоните ☎, и мы обязательно подберем нужный объект по самым выгодным условиям на рынке коммерческой недвижимости!

⭐ Добавьте объявление в Избранное, чтобы не потерять!

С Уважением, Ефремов Дмитрий.
Недвижимость Северо-Запада.
показать все описание
Заинтересовал объект?
Оставьте свой номер - наш эксперт свяжется с Вами, ответит на все вопросы и запишет на просмотр
РАСПОЛОЖЕНИЕ ОБЪЕКТА НА КАРТЕ
Заинтересовал объект?
Оставьте свой номер - наш эксперт свяжется с Вами, ответит на все вопросы и запишет на просмотр
РАСПОЛОЖЕНИЕ ОБЪЕКТА НА КАРТЕ
Другие объекты компании
Аренда
16
17.07.2024
location_white Санкт-Петербург г, Карла Фаберже пл, 8 А
Площадь
561.80 м²
Цена за м²
1 450 ₽
Этажей в здании
15
Этаж
1
Аренда
13
26.06.2025
location_white Санкт-Петербург г, Шафировский пр-кт, 17к1
Площадь
4741.60 м²
Цена за м²
1 000 ₽
Этажей в здании
5
Этаж
1
Аренда
14
17.03.2026
location_white Санкт-Петербург г, Пулковское ш, 3к1
Площадь
158.20 м²
Цена за м²
2 199 ₽
Этажей в здании
2
Этаж
1
Продажа
12
05.09.2025
location_white Ленинградская обл, Промышленно-деловая зона Рыжики тер, -, -
Площадь
18704.00 м²
Цена за м²
5 881 ₽
Этаж
1