Помещение с крупными сетевыми арендаторами

ПСН
Дата обновления - 06.10.2025
Итоговая цена 92 250 000 ₽ Итоговая цена
Стоимость за 1 м² 233 781 ₽
Стоимость за 1 м²
ПСН
Дата обновления - 06.10.2025

Помещение с крупными сетевыми арендаторами

ХАРАКТЕРИСТИКИ ПОМЕЩЕНИЯ
Тип сделки
Продажа
Тип помещения
ПСН
Площадь помещения
395 м²
Этаж
1
Высота потолков
3.00 м
Отделка
Чистовая стандарт
ХАРАКТЕРИСТИКИ ЗДАНИЯ
Этажность
5
Парковка
Наземная
КОНСУЛЬТАЦИЯ НАШЕГО ЭКСПЕРТА
Дмитрий Ефремов
Эксперт проекта
Вы можете позвонить или написать мне в whatsapp:
или нажмите на кнопку, чтобы записаться на просмотр, и в ближайшее время я свяжусь с вами
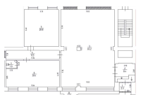
ОПИСАНИЕ ОБЪЕКТА
⭐Предлагаем в продажу помещение свободного назначения на трафике с крупными сетевыми арендаторами Хлебник, РосАл, комиссионный магазин.

✅Основные характеристики:
• Площадь: 394,6 м2;
• Высота потолков: 3 м;
• Этаж: 1 + цоколь;
• 3 отдельных входа;
• Помещение с ремонтом;
• Отопление центральное;
• Помещение находится в 5-ти минутах ходьбы от одного из красивейших розводных мостов – моста Петра Великого и в 10-ти минутах ходьбы от Смольного собора;
• Возле дома остановка общественного транспорта.

⭐Стоимость, условия сделки:
• Стоимость - 92 250 000 рублей;
• Арендаторы: Комиссионный магазин - 68.7 м2, пекарня Хлебник - 145.1 м2, РосАл - 180,8 м2;
• Общий МАП: 622 000 руб/мес;
• Окупаемость: 11,7 лет;
​​​​​​​• Доходность: 8,4%.

✅Описание:
• Высокий пешеходный и автомобильный трафик;
• Витринные окна;
• Вывеска, места под рекламу;
• Помещение в хорошем состоянии;
• Все коммуникации: телефонные линии, водоснабжение, канализация, теплоснабжение;
• Юр. статус: собственность.

✅ Подойдет под любой вид деятельности;




☎ Звоните, организуем просмотр в удобное Вам время.

⭐ Мы – АГЕНТСТВО НЕДВИЖИМОСТИ СЕВЕРО-ЗАПАДА – лидирующий эксперт рынка недвижимости Санкт-Петербурга и Ленинградской области.
Наши агенты закрывают более 300 сделок в год.
Мы строим долгосрочные деловые отношения на основе принципов честности и качественного сервиса с нашими клиентами.
⭐ Работая с нами, вы получите:
✅ Высокое качество сопровождения сделки от начала и до конца;
✅ Широкий спектр сопутствующих услуг;
✅ Оптимизацию ваших расходов при заключении сделки;
✅ Экономию Ваших нервов и времени при переговорах;
✅ Доступ к уникальной базе объектов, многие из которых отсутствуют в открытой рекламе;
✅ Помогаем оформлять ипотеку!

⭐Заходите в наш профиль, чтобы ознакомиться с нашими актуальными предложениями!
Если не нашли в нашем профиле то, что Вам подходит – позвоните ☎, и мы обязательно подберем нужный объект по самым выгодным условиям на рынке коммерческой недвижимости!

⭐ Добавьте объявление в Избранное, чтобы не потерять!

С Уважением, Дмитрий.
Недвижимость Северо-Запада.
показать все описание
Заинтересовал объект?
Оставьте свой номер - наш эксперт свяжется с Вами, ответит на все вопросы и запишет на просмотр
РАСПОЛОЖЕНИЕ ОБЪЕКТА НА КАРТЕ
Заинтересовал объект?
Оставьте свой номер - наш эксперт свяжется с Вами, ответит на все вопросы и запишет на просмотр
РАСПОЛОЖЕНИЕ ОБЪЕКТА НА КАРТЕ
Другие объекты компании
Аренда
Архив
137
23.01.2025
location_white Санкт-Петербург г, Пискарёвский пр-кт, 40
Площадь
162.00 м²
Цена за м²
2 000 ₽
Этажей в здании
12
Этаж
1
Продажа
177
06.11.2024
location_white Санкт-Петербург г, Жукова ул, 1к2
Площадь
1913.00 м²
Цена за м²
141 139 ₽
Этажей в здании
3
Этаж
3
Продажа
3
06.10.2025
location_white Санкт-Петербург г, Среднеохтинский пр-кт, 1к1
Площадь
394.60 м²
Цена за м²
233 781 ₽
Этажей в здании
5
Этаж
1
Продажа
14
23.09.2025
location_white Санкт-Петербург г, Среднеохтинский пр-кт, 1к1
Площадь
145.10 м²
Цена за м²
303 239 ₽
Этажей в здании
5
Этаж
1