Помещение свободного назначения вблизи метро

ПСН
Дата обновления - 24.04.2026
Итоговая цена 300 000 ₽ / мес Итоговая цена
Стоимость за 1 м² 1 138 ₽ / мес
Стоимость за 1 м²
Площадь помещения
264 м²
ПСН
Дата обновления - 24.04.2026

Помещение свободного назначения вблизи метро

ХАРАКТЕРИСТИКИ ПОМЕЩЕНИЯ
Тип сделки
Аренда
Тип помещения
ПСН
Площадь помещения
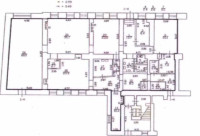
264 м²
Этаж
1
Высота потолков
2.80 м
Отделка
Чистовая стандарт
ХАРАКТЕРИСТИКИ ЗДАНИЯ
Этажность
1
Парковка
Открытая
КОНСУЛЬТАЦИЯ НАШЕГО ЭКСПЕРТА
Артур Гаджимурадов
Эксперт проекта
Вы можете позвонить или написать мне в whatsapp:
или нажмите на кнопку, чтобы записаться на просмотр, и в ближайшее время я свяжусь с вами
ОПИСАНИЕ ОБЪЕКТА
⭐Предлагаем в аренду помещение с ремонтом вблизи метро Чернышевская.

✅Основные характеристики:
• Площадь: 263,6 м2;
• Мощность электросети: 40 кВт;
• Высота потолков: 2,8 м;
• Этаж: 1;
• Два отдельных входа (с фасада и со двора);
• В 10 минутах от метро Чернышевская;

⭐Стоимость, условия сделки:
• Арендная ставка - 300 000 руб./мес.;
• Обеспечительный платеж - 100% (300 000 руб.);
• Срок договора - длительный (от 11 мес.);

✅Описание:
• Высокий пешеходный и автомобильный трафик;
• Вывеска, места под рекламу;
• Помещение в хорошем состоянии;
• Все коммуникации: телефонные линии, водоснабжение, канализация, теплоснабжение;
• Юр. статус: собственность.

✅ Подойдет под любой вид деятельности;

⭐ Добавьте объявление в Избранное, чтобы не потерять!

С Уважением, Артур Гаджимурадов.
Недвижимость Северо-Запада.
показать все описание
Заинтересовал объект?
Оставьте свой номер - наш эксперт свяжется с Вами, ответит на все вопросы и запишет на просмотр
РАСПОЛОЖЕНИЕ ОБЪЕКТА НА КАРТЕ
Заинтересовал объект?
Оставьте свой номер - наш эксперт свяжется с Вами, ответит на все вопросы и запишет на просмотр
РАСПОЛОЖЕНИЕ ОБЪЕКТА НА КАРТЕ
Другие объекты компании
Аренда
27
02.04.2026
location_white Ленинградская обл, Фёдоровское гп, Технологическая ул, 8
Площадь
890.00 м²
Цена за м²
359 ₽
Этажей в здании
1
Этаж
1
Продажа
27
16.05.2025
location_white Санкт-Петербург г, Боровая ул, 55к2
Площадь
1603.80 м²
Цена за м²
99 763 ₽
Этажей в здании
1
Этаж
1
Аренда
Архив
22
19.06.2024
location_white Санкт-Петербург г, Ветеранов пр-кт, 183
Площадь
46.00 м²
Цена за м²
5 000 ₽
Этажей в здании
1
Этаж
1
Продажа
16
24.11.2025
location_white Санкт-Петербург г, Петровская коса, 1к1 Р
Площадь
411.00 м²
Цена за м²
274 681 ₽
Этажей в здании
4
Этаж
4