Помещение в 6 мин от метро, 67м

ПСН
Дата обновления - 05.11.2025
Итоговая цена 95 000 ₽ / мес Итоговая цена
Стоимость за 1 м² 1 417 ₽ / мес
Стоимость за 1 м²
ПСН
Дата обновления - 05.11.2025

Помещение в 6 мин от метро, 67м

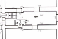
ХАРАКТЕРИСТИКИ ПОМЕЩЕНИЯ
Тип сделки
Аренда
Тип помещения
ПСН
Площадь помещения
67 м²
Этаж
-1
Высота потолков
2.40 м
Отделка
Чистовая стандарт
ХАРАКТЕРИСТИКИ ЗДАНИЯ
Этажность
5
Парковка
Наземная
КОНСУЛЬТАЦИЯ НАШЕГО ЭКСПЕРТА
Александр Николаев
Эксперт проекта
Вы можете позвонить или написать мне в whatsapp:
или нажмите на кнопку, чтобы записаться на просмотр, и в ближайшее время я свяжусь с вами
ОПИСАНИЕ ОБЪЕКТА
⭐Предлагаем аренду помещение в 6 мин от метро Петроградская 


✅Основные характеристики:
• Площадь: 67 м2;
• Мощность электросети: 20кВт;
• Высота потолков: 2.4м;
• Этаж: цоколь;
• В 6 минутах от метро Петроградская;


⭐Стоимость, условия сделки: 80 000 руб + КУ
Обеспечительный платеж80 000 руб
Договор длительный от 11 мес.
Подойдет под: офис, студию растяжки, спортзал, пункт выдачи, шоурум, интернет магазин, парикмахерскую, коворкинг​​​​​​​


✅Описание:
• Высокий пешеходный и автомобильный трафик;
• Отдельный вход;
• Есть окна;
• Вывеска, места под рекламу;
• Помещение в хорошем состоянии;
• Все коммуникации: Электричество, водоснабжение, канализация, теплоснабжение;
• Юр. статус: собственность.

​​​​​​​
✅ Подойдет под любой вид деятельности;




☎ Звоните, организуем просмотр в удобное Вам время.

⭐ Мы – АГЕНТСТВО НЕДВИЖИМОСТИ СЕВЕРО-ЗАПАДА – лидирующий эксперт рынка недвижимости Санкт-Петербурга и Ленинградской области.
Наши агенты закрывают более 300 сделок в год.
Мы строим долгосрочные деловые отношения на основе принципов честности и качественного сервиса с нашими клиентами.
⭐ Работая с нами, вы получите:
✅ Высокое качество сопровождения сделки от начала и до конца;
✅ Широкий спектр сопутствующих услуг;
✅ Оптимизацию ваших расходов при заключении сделки;
✅ Экономию Ваших нервов и времени при переговорах;
✅ Доступ к уникальной базе объектов, многие из которых отсутствуют в открытой рекламе;
✅ Помогаем оформлять ипотеку!

⭐Заходите в наш профиль, чтобы ознакомиться с нашими актуальными предложениями!
Если не нашли в нашем профиле то, что Вам подходит – позвоните ☎, и мы обязательно подберем нужный объект по самым выгодным условиям на рынке коммерческой недвижимости!

⭐ Добавьте объявление в Избранное, чтобы не потерять!

С Уважением, Николаев Александр.
Недвижимость Северо-Запада.
показать все описание
Заинтересовал объект?
Оставьте свой номер - наш эксперт свяжется с Вами, ответит на все вопросы и запишет на просмотр
РАСПОЛОЖЕНИЕ ОБЪЕКТА НА КАРТЕ
Заинтересовал объект?
Оставьте свой номер - наш эксперт свяжется с Вами, ответит на все вопросы и запишет на просмотр
РАСПОЛОЖЕНИЕ ОБЪЕКТА НА КАРТЕ
Другие объекты компании
Аренда
333
29.08.2024
location_white Санкт-Петербург г, Заневский пр-кт, 65а А
Площадь
176.20 м²
Цена за м²
2 200 ₽
Этажей в здании
3
Этаж
2
Аренда
121
23.06.2025
location_white Санкт-Петербург г, Звенигородская ул, 9 11 А
Площадь
1872.10 м²
Цена за м²
1 500 ₽
Этажей в здании
5
Этаж
1
Продажа
379
27.11.2024
location_white Санкт-Петербург г, Большой Сампсониевский пр-кт, 104 А
Площадь
700.00 м²
Цена за м²
171 428 ₽
Этаж
1
Продажа
339
28.11.2024
location_white Ленинградская обл, Янино-2 д, -, -
Площадь
258040.00 м²
Цена за м²
852 ₽
Этаж
1