Помещение в новом ТЦ, 473 м2

ПСН
Дата обновления - 22.12.2025
Итоговая цена 614 900 ₽ / мес Итоговая цена
Стоимость за 1 м² 1 300 ₽ / мес
Стоимость за 1 м²
ПСН
Дата обновления - 22.12.2025

Помещение в новом ТЦ, 473 м2

ХАРАКТЕРИСТИКИ ПОМЕЩЕНИЯ
Тип сделки
Аренда
Тип помещения
ПСН
Площадь помещения
473 м²
Этаж
1
Высота потолков
5.00 м
Отделка
Чистовая стандарт
ХАРАКТЕРИСТИКИ ЗДАНИЯ
Этажность
2
Парковка
Наземная
КОНСУЛЬТАЦИЯ НАШЕГО ЭКСПЕРТА
Артур Гаджимурадов
Эксперт проекта
Вы можете позвонить или написать мне в whatsapp:
или нажмите на кнопку, чтобы записаться на просмотр, и в ближайшее время я свяжусь с вами
ОПИСАНИЕ ОБЪЕКТА
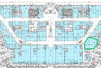
⭐Предлагаем в аренду помещение 473 м2 в новом ТРЦ Парк Молл на первом этаже, с зоной разгрузки! Можно разделить помещение на 219 м2 и 254 м2.

✅Основные характеристики:
• Площадь: 473 м2;
• Мощность электросети: 100 кВт;
• Высота потолков: 5 м;
• Этаж: 1;
• В 20 минутах пешком от метро Проспект Просвещения;

⭐Стоимость, условия сделки:
• Арендная ставка - 614 900 руб./мес. (1300 руб./м2 + К/У + эксплуатация - 115 руб./м2);
• Обеспечительный платеж - 100% (614 900 руб.);
• Срок договора - длительный (от 11 мес.);

✅Описание:
• Высокий пешеходный и автомобильный трафик;
• Отдельных главных два входа и два входа для разгрузки;
• Панорамное остекление;
• Вывеска, места под рекламу;
• Помещение в хорошем состоянии;
• Все коммуникации: телефонные линии, водоснабжение, канализация, теплоснабжение;
• Юр. статус: собственность.

✅ Подойдет под любой вид деятельности;




☎ Звоните, организуем просмотр в удобное Вам время.

⭐ Мы – АГЕНТСТВО НЕДВИЖИМОСТИ СЕВЕРО-ЗАПАДА – лидирующий эксперт рынка недвижимости Санкт-Петербурга и Ленинградской области.
Наши агенты закрывают более 300 сделок в год.
Мы строим долгосрочные деловые отношения на основе принципов честности и качественного сервиса с нашими клиентами.
⭐ Работая с нами, вы получите:
✅ Высокое качество сопровождения сделки от начала и до конца;
✅ Широкий спектр сопутствующих услуг;
✅ Оптимизацию ваших расходов при заключении сделки;
✅ Экономию Ваших нервов и времени при переговорах;
✅ Доступ к уникальной базе объектов, многие из которых отсутствуют в открытой рекламе;
✅ Помогаем оформлять ипотеку!

⭐Заходите в наш профиль, чтобы ознакомиться с нашими актуальными предложениями!
Если не нашли в нашем профиле то, что Вам подходит – позвоните ☎, и мы обязательно подберем нужный объект по самым выгодным условиям на рынке коммерческой недвижимости!

⭐ Добавьте объявление в Избранное, чтобы не потерять!

С Уважением, Артур Гаджимурадов.
Недвижимость Северо-Запада.
показать все описание
Заинтересовал объект?
Оставьте свой номер - наш эксперт свяжется с Вами, ответит на все вопросы и запишет на просмотр
РАСПОЛОЖЕНИЕ ОБЪЕКТА НА КАРТЕ
Заинтересовал объект?
Оставьте свой номер - наш эксперт свяжется с Вами, ответит на все вопросы и запишет на просмотр
РАСПОЛОЖЕНИЕ ОБЪЕКТА НА КАРТЕ
Другие объекты компании
Аренда
195
23.06.2025
location_white Санкт-Петербург г, 1-й Верхний пер, 2
Площадь
330.00 м²
Цена за м²
1 109 ₽
Этажей в здании
10
Этаж
1
Аренда
199
18.06.2025
location_white Ленинградская обл, Янино-1 гп, Ветряных мельниц (Янила Кантри мкр) ул, 3
Площадь
70.00 м²
Цена за м²
1 500 ₽
Этажей в здании
1
Этаж
2
Аренда
102
11.04.2023
location_white Ленинградская обл, Янино-1 гп, Шоссейная, 42
Площадь
1000.00 м²
Цена за м²
800 ₽
Этажей в здании
1
Этаж
2
Аренда
198
09.06.2025
location_white Санкт-Петербург г, Малоохтинский пр-кт, 96/2
Площадь
335.00 м²
Этажей в здании
5
Этаж
1