Помещение с готовым бизнесом Пятёрочка, 9лет

ПСН
Дата обновления - 27.03.2026
Итоговая цена 357 000 000 ₽ Итоговая цена
Стоимость за 1 м² 313 157 ₽
Стоимость за 1 м²
Площадь помещения
1 140 м²
ПСН
Дата обновления - 27.03.2026

Помещение с готовым бизнесом Пятёрочка, 9лет

ХАРАКТЕРИСТИКИ ПОМЕЩЕНИЯ
Тип сделки
Продажа
Тип помещения
ПСН
Площадь помещения
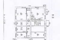
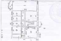
1 140 м²
Этаж
1
Высота потолков
3.00 м
Отделка
Чистовая стандарт
ХАРАКТЕРИСТИКИ ЗДАНИЯ
Этажность
5
Парковка
Открытая
КОНСУЛЬТАЦИЯ НАШЕГО ЭКСПЕРТА
Даниил Сигов
Эксперт проекта
Вы можете позвонить или написать мне в whatsapp:
или нажмите на кнопку, чтобы записаться на просмотр, и в ближайшее время я свяжусь с вами
ОПИСАНИЕ ОБЪЕКТА
Основные характеристики:
• Площадь: 1 140,9 м2;
• Этаж: 1;
• м. Ломоносовская в 6-ти минутах езды.
 
⭐​​​​​​​Стоимость, условия сделки: 357 000 000 рублей.;
• Арендный поток 2 814 201 руб., 5% безусловная ежегодная индексация прописана графиком в договоре;
• Арендатор федеральная сеть Пятерочка. Заключен долгосрочный договор до 2026года. Продление по желанию собственника 

Описание:
• Объект хорошо просматривается с Народной улицы и притягивает покупателей из автомобильного трафика;
• Имеется карман для парковки автомобиля
• Панорамные окна на Народную ул.;
• Вход отдельный;
• Помещение в хорошем состоянии;
• Все коммуникации: телефонные линии, водоснабжение, канализация, теплоснабжение, электроснабжение  80,1кВт;
• Юр. статус владельца - собственность.


✅ Подойдет под любой вид деятельности;


☎ Звоните, организуем просмотр в удобное Вам время.

⭐ Мы – АГЕНТСТВО НЕДВИЖИМОСТИ СЕВЕРО-ЗАПАДА – лидирующий эксперт рынка недвижимости Санкт-Петербурга и Ленинградской области.
Наши агенты закрывают более 300 сделок в год.
Мы строим долгосрочные деловые отношения на основе принципов честности и качественного сервиса с нашими клиентами.
⭐ Работая с нами, вы получите:
✅ Высокое качество сопровождения сделки от начала и до конца;
✅ Широкий спектр сопутствующих услуг;
✅ Оптимизацию ваших расходов при заключении сделки;
✅ Экономию Ваших нервов и времени при переговорах;
✅ Доступ к уникальной базе объектов, многие из которых отсутствуют в открытой рекламе;
✅ Помогаем оформлять ипотеку!

⭐Заходите в наш профиль, чтобы ознакомиться с нашими актуальными предложениями!
Если не нашли в нашем профиле то, что Вам подходит – позвоните ☎, и мы обязательно подберем нужный объект по самым выгодным условиям на рынке коммерческой недвижимости!

⭐ Добавьте объявление в Избранное, чтобы не потерять!

С Уважением, Даниил Сигов.
Недвижимость Северо-Запада.​​​​​​


показать все описание
Заинтересовал объект?
Оставьте свой номер - наш эксперт свяжется с Вами, ответит на все вопросы и запишет на просмотр
РАСПОЛОЖЕНИЕ ОБЪЕКТА НА КАРТЕ
Заинтересовал объект?
Оставьте свой номер - наш эксперт свяжется с Вами, ответит на все вопросы и запишет на просмотр
РАСПОЛОЖЕНИЕ ОБЪЕКТА НА КАРТЕ
Другие объекты компании
Аренда
39
02.05.2024
location_white Санкт-Петербург г, Комендантский пр-кт, 65стр1
Площадь
113.70 м²
Цена за м²
1 934 ₽
Этажей в здании
20
Этаж
1
Продажа
39
18.07.2025
location_white Ленинградская обл, Новоселье гп, Центральная ул, 11
Площадь
1288.00 м²
Цена за м²
136 645 ₽
Этажей в здании
9
Этаж
1
Продажа
0
25.04.2025
location_white Ленинградская обл, Гатчина г, Радищева ул, 22
Площадь
242.00 м²
Цена за м²
185 950 ₽
Этажей в здании
1
Этаж
1
Продажа
Архив
253
25.09.2025
location_white Ленинградская обл, Всеволожск г, Дорога Жизни ш, 46
Площадь
113.00 м²
Цена за м²
212 389 ₽
Этажей в здании
1
Этаж
1