Продажа 247м с Сетевым Арендатором у м. Автово

ПСН
Дата обновления - 16.07.2025
Итоговая цена 97 000 000 ₽ Итоговая цена
Стоимость за 1 м² 392 553 ₽
Стоимость за 1 м²
ПСН
Дата обновления - 16.07.2025

Продажа 247м с Сетевым Арендатором у м. Автово

ХАРАКТЕРИСТИКИ ПОМЕЩЕНИЯ
Тип сделки
Продажа
Тип помещения
ПСН
Площадь помещения
247 м²
Этаж
1
Высота потолков
3.14 м
Отделка
Чистовая стандарт
ХАРАКТЕРИСТИКИ ЗДАНИЯ
Этажность
6
Парковка
Открытая
КОНСУЛЬТАЦИЯ НАШЕГО ЭКСПЕРТА
Даниил Сигов
Эксперт проекта
Вы можете позвонить или написать мне в whatsapp:
или нажмите на кнопку, чтобы записаться на просмотр, и в ближайшее время я свяжусь с вами
ОПИСАНИЕ ОБЪЕКТА
Основные характеристики:
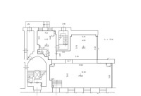
  • Площадь: 1эт - 147.4м2, Цоколь - 82,8; ЛК - 16,9 м2;
  • Высота потолков: 1 этаж - 3.14м, Цоколь - 2.75м;
  • Заглубление цоколя - 1,75м;
  • Мощность электросети: 25 кВт;
  • Этаж: цоколь и 1-й;
  • до станции метро Автово – 15м.
 
Стоимость, условия сделки: 97 000 000 руб.;
  • АП 584 000 руб./мес., арендатор «Подружка»;
  • Индексация 3%
 
Преимущества помещения:
  • Высокий пешеходный и автомобильный трафик;
  • Витринные окна; вход отдельный;
  • Помещение в хорошем состоянии;
  • Все коммуникации: телефонные линии, водоснабжение, канализация, теплоснабжение;
  • Юр. статус владельца - собственность.


✅ Подойдет под любой вид деятельности;

☎ Звоните, организуем просмотр в удобное Вам время.

⭐ Мы – АГЕНТСТВО НЕДВИЖИМОСТИ СЕВЕРО-ЗАПАДА – лидирующий эксперт рынка недвижимости Санкт-Петербурга и Ленинградской области.
Наши агенты закрывают более 300 сделок в год.
Мы строим долгосрочные деловые отношения на основе принципов честности и качественного сервиса с нашими клиентами.
⭐ Работая с нами, вы получите:
✅ Высокое качество сопровождения сделки от начала и до конца;
✅ Широкий спектр сопутствующих услуг;
✅ Оптимизацию ваших расходов при заключении сделки;
✅ Экономию Ваших нервов и времени при переговорах;
✅ Доступ к уникальной базе объектов, многие из которых отсутствуют в открытой рекламе;

⭐Заходите в наш профиль, чтобы ознакомиться с нашими актуальными предложениями!
Если не нашли в нашем профиле то, что Вам подходит – позвоните ☎, и мы обязательно подберем нужный объект по самым выгодным условиям на рынке коммерческой недвижимости!

⭐ Добавьте объявление в Избранное, чтобы не потерять!

С Уважением, Сигов Даниил.
Недвижимость Северо-Запада.
показать все описание
Заинтересовал объект?
Оставьте свой номер - наш эксперт свяжется с Вами, ответит на все вопросы и запишет на просмотр
РАСПОЛОЖЕНИЕ ОБЪЕКТА НА КАРТЕ
Заинтересовал объект?
Оставьте свой номер - наш эксперт свяжется с Вами, ответит на все вопросы и запишет на просмотр
РАСПОЛОЖЕНИЕ ОБЪЕКТА НА КАРТЕ
Другие объекты компании
Аренда
20
08.12.2025
location_white Ленинградская обл, Аннолово д, Новая, 1
Площадь
1500.00 м²
Цена за м²
250 ₽
Этажей в здании
1
Этаж
1
Продажа
113
11.08.2023
location_white Санкт-Петербург г, Гранитная ул, 34 А
Площадь
39.20 м²
Цена за м²
240 000 ₽
Этажей в здании
4
Этаж
1
Продажа
149
11.09.2025
location_white Ленинградская обл, Колтуши г, Мира ул, 9
Площадь
569.00 м²
Цена за м²
140 597 ₽
Этажей в здании
11
Этаж
1
Продажа
137
09.09.2025
location_white Коми Респ, Жешарт пгт, Молодежная ул, 10
Площадь
366.40 м²
Цена за м²
14 465 ₽
Этажей в здании
1
Этаж
1