Продажа 63м2 на Невском, есть арендатор!

ПСН
Дата обновления - 24.11.2025
Итоговая цена 15 000 000 ₽ Итоговая цена
Стоимость за 1 м² 235 849 ₽
Стоимость за 1 м²
ПСН
Дата обновления - 24.11.2025

Продажа 63м2 на Невском, есть арендатор!

ХАРАКТЕРИСТИКИ ПОМЕЩЕНИЯ
Тип сделки
Продажа
Тип помещения
ПСН
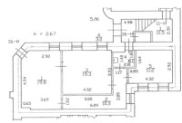
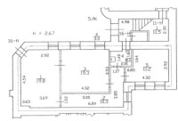
Площадь помещения
64 м²
Этаж
1
Высота потолков
2.67 м
Отделка
Чистовая стандарт
ХАРАКТЕРИСТИКИ ЗДАНИЯ
Этажность
5
Парковка
Открытая
КОНСУЛЬТАЦИЯ НАШЕГО ЭКСПЕРТА
Дарья Лунёва
Эксперт проекта
Вы можете позвонить или написать мне в whatsapp:
или нажмите на кнопку, чтобы записаться на просмотр, и в ближайшее время я свяжусь с вами
ОПИСАНИЕ ОБЪЕКТА
Основные характеристики:
  • Площадь: 63.6 м2;
  • Высота потолков: 2,67м;
  • Этаж: 1;
  • 3 минуты ходьбы от ст. метро Площадь Восстания и Маяковская.
 
⭐​​​​​​​Стоимость, условия сделки: 15 000 000 руб.
​​​​​​​Арендатор стоматология, арендная ставка : 110 000 руб + КУ
 
 
Преимущества помещения:
  • Высокий пешеходный и автомобильный трафик, помещение находится в самом сердце     Санкт-Петербурга - в шаговой доступности множество памятников архитектуры и достопримечательностей.;
  • Вход: со двора
  • Помещение в хорошем состоянии, планировка: кабинетная;
  • Все коммуникации: телефонные линии, водоснабжение, канализация, теплоснабжение;
  • Юр. статус владельца - собственность.


✅ Подойдет под любой вид деятельности;

☎ Звоните, организуем просмотр в удобное Вам время.

⭐ Мы – АГЕНТСТВО НЕДВИЖИМОСТИ СЕВЕРО-ЗАПАДА – лидирующий эксперт рынка недвижимости Санкт-Петербурга и Ленинградской области.
Наши агенты закрывают более 300 сделок в год.
Мы строим долгосрочные деловые отношения на основе принципов честности и качественного сервиса с нашими клиентами.
⭐ Работая с нами, вы получите:
✅ Высокое качество сопровождения сделки от начала и до конца;
✅ Широкий спектр сопутствующих услуг;
✅ Оптимизацию ваших расходов при заключении сделки;
✅ Экономию Ваших нервов и времени при переговорах;
✅ Доступ к уникальной базе объектов, многие из которых отсутствуют в открытой рекламе;

⭐Заходите в наш профиль, чтобы ознакомиться с нашими актуальными предложениями!
Если не нашли в нашем профиле то, что Вам подходит – позвоните ☎, и мы обязательно подберем нужный объект по самым выгодным условиям на рынке коммерческой недвижимости!

⭐ Добавьте объявление в Избранное, чтобы не потерять!

С Уважением, Браво Олег.
Недвижимость Северо-Запада.
показать все описание
Заинтересовал объект?
Оставьте свой номер - наш эксперт свяжется с Вами, ответит на все вопросы и запишет на просмотр
РАСПОЛОЖЕНИЕ ОБЪЕКТА НА КАРТЕ
Заинтересовал объект?
Оставьте свой номер - наш эксперт свяжется с Вами, ответит на все вопросы и запишет на просмотр
РАСПОЛОЖЕНИЕ ОБЪЕКТА НА КАРТЕ
Другие объекты компании
Аренда
95
02.10.2025
location_white Санкт-Петербург г, Большой Смоленский пр-кт, 30
Площадь
97.90 м²
Цена за м²
2 000 ₽
Этажей в здании
12
Этаж
1
Продажа
75
09.08.2023
location_white Парголово п, Фёдора Абрамова ул, 18к1 А
Площадь
107.00 м²
Цена за м²
420 560 ₽
Этажей в здании
10
Этаж
1
Аренда
91
10.09.2025
location_white Санкт-Петербург г, Мебельная ул, 5
Площадь
4409.00 м²
Цена за м²
1 199 ₽
Этажей в здании
1
Этаж
1
Аренда
46
19.11.2025
location_white Ленинградская обл, Коммунар, Станционная улица, 1А
Площадь
900.00 м²
Цена за м²
1 500 ₽
Этажей в здании
1
Этаж
1