Продажа автомобильного комплекса.

ОСЗ
Дата обновления - 11.02.2026
Итоговая цена 430 000 000 ₽ Итоговая цена
Стоимость за 1 м² 88 659 ₽
Стоимость за 1 м²
ОСЗ
Дата обновления - 11.02.2026

Продажа автомобильного комплекса.

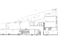
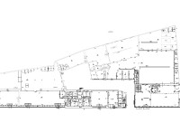
ХАРАКТЕРИСТИКИ ПОМЕЩЕНИЯ
Тип сделки
Продажа
Тип помещения
ОСЗ
Площадь помещения
4 850 м²
Этаж
1
Высота потолков
4.00 м
Отделка
Чистовая стандарт
Вход в помещение
Московский
ХАРАКТЕРИСТИКИ ЗДАНИЯ
Этажность
2
Парковка
Открытая
КОНСУЛЬТАЦИЯ НАШЕГО ЭКСПЕРТА
Даниил Сигов
Эксперт проекта
Вы можете позвонить или написать мне в whatsapp:
или нажмите на кнопку, чтобы записаться на просмотр, и в ближайшее время я свяжусь с вами
ОПИСАНИЕ ОБЪЕКТА
⭐ Предлагаем в продажу ОСЗ 4850 м2 с арендатором дилер Автостиль. Земля 0,5 Га и здание в собственности. 

✅ Основные характеристики:

• Площадь: 4850 м2;
• Мощность электросети: 170 кВт;
• Высота потолков: 4 м;
• Этаж: 1;
• В 15 минутах от метро Электросила;


⭐ Стоимость, условия сделки:

• Цена объекта -  430 000 000 рублей, 88 659 руб/м2;
• МАП - 4 500 000 руб.мес.;
• Арендатор - официальный дилер "Автостиль";
• Срок договора - длительный, 5 лет;
• Окупаемость: 7,5 лет;
• Доходность: 13%.


✅ Описание:

В продаже автомобильный комплекс. Шоу рум новых автомобилей. Сервисная зона обслуживания автомобилей. Малярно-кузовной цех. Огромная зона детейлинга автомобилей. Здание и земля в собственности.

✅ Подойдет под любой вид деятельности;

☎ Звоните, организуем просмотр в удобное Вам время.

⭐ Мы – АГЕНТСТВО НЕДВИЖИМОСТИ СЕВЕРО-ЗАПАДА – лидирующий эксперт рынка недвижимости Санкт-Петербурга и Ленинградской области.
Наши агенты закрывают более 300 сделок в год.
Мы строим долгосрочные деловые отношения на основе принципов честности и качественного сервиса с нашими клиентами.
⭐ Работая с нами, вы получите:
✅ Высокое качество сопровождения сделки от начала и до конца;
✅ Широкий спектр сопутствующих услуг;
✅ Оптимизацию ваших расходов при заключении сделки;
✅ Экономию Ваших нервов и времени при переговорах;
✅ Доступ к уникальной базе объектов, многие из которых отсутствуют в открытой рекламе;
✅ Помогаем оформлять ипотеку!

⭐Заходите в наш профиль, чтобы ознакомиться с нашими актуальными предложениями!
Если не нашли в нашем профиле то, что Вам подходит – позвоните ☎, и мы обязательно подберем нужный объект по самым выгодным условиям на рынке коммерческой недвижимости!

⭐ Добавьте объявление в Избранное, чтобы не потерять!

С Уважением, Дмитрий Утробин.
Недвижимость Северо-Запада.
показать все описание
Заинтересовал объект?
Оставьте свой номер - наш эксперт свяжется с Вами, ответит на все вопросы и запишет на просмотр
РАСПОЛОЖЕНИЕ ОБЪЕКТА НА КАРТЕ
Заинтересовал объект?
Оставьте свой номер - наш эксперт свяжется с Вами, ответит на все вопросы и запишет на просмотр
РАСПОЛОЖЕНИЕ ОБЪЕКТА НА КАРТЕ
Другие объекты компании
Продажа
181
28.10.2025
location_white Санкт-Петербург г, Жуковского ул, 38
Площадь
97.60 м²
Цена за м²
307 377 ₽
Этажей в здании
1
Этаж
1
Аренда
Архив
0
07.11.2025
location_white Санкт-Петербург г, Среднерогатская ул, 11к2 стр 1
Площадь
475.70 м²
Цена за м²
3 800 ₽
Этажей в здании
12
Этаж
1
Продажа
0
06.03.2026
location_white Санкт-Петербург г, Маршала Тухачевского ул, 1
Площадь
264.10 м²
Цена за м²
283 983 ₽
Этажей в здании
1
Этаж
1
Аренда
0
08.10.2025
location_white Санкт-Петербург г, 24-я В.О. линия, 13
Площадь
203.00 м²
Цена за м²
3 842 ₽
Этажей в здании
5
Этаж
1