Продажа доходного здания с якорным арендатором

ОСЗ
Дата обновления - 31.05.2024
Итоговая цена 650 000 000 ₽ Итоговая цена
Стоимость за 1 м² 264 227 ₽
Стоимость за 1 м²
ОСЗ
Дата обновления - 31.05.2024

Продажа доходного здания с якорным арендатором

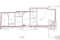
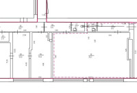
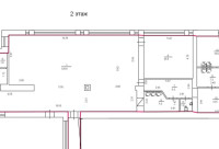
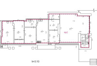
ХАРАКТЕРИСТИКИ ПОМЕЩЕНИЯ
Тип сделки
Продажа
Тип помещения
ОСЗ
Площадь помещения
2 460 м²
Этаж
1
Высота потолков
4.00 м
Отделка
Чистовая стандарт
ХАРАКТЕРИСТИКИ ЗДАНИЯ
Этажность
2
Парковка
Открытая
КОНСУЛЬТАЦИЯ НАШЕГО ЭКСПЕРТА
Даниил Сигов
Эксперт проекта
Вы можете позвонить или написать мне в whatsapp:
или нажмите на кнопку, чтобы записаться на просмотр, и в ближайшее время я свяжусь с вами
ОПИСАНИЕ ОБЪЕКТА
⭐Предлагаем в продажу доходное здание.

✅Основные характеристики:
• Кирпичное двухэтажное здание, площадью 2 460 кв.м.
Для персонала есть офис 100 кв.м.
Земля под зданием находится в собственности (998 кв/м), что позволяет видоизменять здание.
Некоторые части здания не используются и могут быть эксплуатируемыми и приносить
дополнительную прибыль: Крыша, площадью 600 кв.м ,Подвал с тремя входами, площадью 430 кв.м.
• Мощность электросети: 220кВт;
• Вокруг несколько точек метрополитена:
м. Купчино находится на расстоянии 2 км;
м. Проспект Славы в 2 км,
м.Дунайская 2, 8 км.


⭐Стоимость, условия сделки:
• Стоимость 650 000 000 рублей
• Текущий общий доход - 5 100 800 рублей / в месяц;
• Якорный арендатор "Пятёрочка"
Ежемесячная аренда 4 000 000 рублей + дополнительно оплачивает: все коммунальные
платежи в размере 400 000 рублей; техническое обслуживание 250 000 рублей; все налоги.
Договор подписан до 2026 года.
В здании находится с 2002 г.
Договор подписан до 2026 года, при желании можно сразу переподписать до 2032 года.
• построено в 1978 году и находится в собственности у физического лица с 1988 года.;


✅Описание:
• Перспективой развития локации является строительство транспортной развязки на пересечении
улиц Димитрова и Орджоникидзе в 500 метрах от здания, что позволит соединить Московский и Фрунзенский районы. Соответственно трафик автомобилей и общественного транспорта увеличиться
• Паркинг для посетителей магазинов.;
• Локация с большой проходимостью. Вокруг много жилых домов и остановок общественного транспорта.;
• Чистая налоговая история с 1988 года. Любые документальные подтверждения.;
• Весь технический персонал и заместитель остаются.
• Все коммуникации: телефонные линии, водоснабжение, канализация, теплоснабжение;
• Юр. статус: собственность.

✅ Подойдет под любой вид деятельности;



показать все описание
Заинтересовал объект?
Оставьте свой номер - наш эксперт свяжется с Вами, ответит на все вопросы и запишет на просмотр
РАСПОЛОЖЕНИЕ ОБЪЕКТА НА КАРТЕ
Заинтересовал объект?
Оставьте свой номер - наш эксперт свяжется с Вами, ответит на все вопросы и запишет на просмотр
РАСПОЛОЖЕНИЕ ОБЪЕКТА НА КАРТЕ
Другие объекты компании
Продажа
18
06.08.2024
location_white Санкт-Петербург г, Ветеранов пр-кт, 171к5стр1
Площадь
266.00 м²
Цена за м²
394 736 ₽
Этажей в здании
21
Этаж
1
Продажа
54
18.12.2025
location_white Ленинградская обл, деревня Заостровье, улица Труда, 14
Площадь
555.00 м²
Цена за м²
114 414 ₽
Этажей в здании
1
Этаж
1
Аренда
Архив
90
31.03.2023
location_white Санкт-Петербург г, Черняховского ул, 55 А
Площадь
57.40 м²
Цена за м²
2 000 ₽
Этажей в здании
3
Этаж
1
Аренда
133
15.10.2025
location_white Санкт-Петербург г, Вилькицкий б-р, 7
Площадь
81.30 м²
Цена за м²
2 200 ₽
Этажей в здании
20
Этаж
1