Продажа ГАБ - "Вкус Вилл"

ПСН
Дата обновления - 04.08.2025
Итоговая цена 50 000 000 ₽ Итоговая цена
Стоимость за 1 м² 330 033 ₽
Стоимость за 1 м²
Площадь помещения
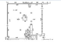
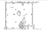
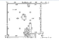
152 м²
ПСН
Дата обновления - 04.08.2025

Продажа ГАБ - "Вкус Вилл"

ХАРАКТЕРИСТИКИ ПОМЕЩЕНИЯ
Тип сделки
Продажа
Тип помещения
ПСН
Площадь помещения
152 м²
Этаж
1
Высота потолков
3.90 м
Отделка
Чистовая стандарт
Вид налога, включен ли в стоимость
Нет
ХАРАКТЕРИСТИКИ ЗДАНИЯ
Этажность
5
Парковка
Охраняемая
КОНСУЛЬТАЦИЯ НАШЕГО ЭКСПЕРТА
КОМПАНИИ БАЗА
Эксперт проекта
Вы можете позвонить или написать мне в whatsapp:
или нажмите на кнопку, чтобы записаться на просмотр, и в ближайшее время я свяжусь с вами
ОПИСАНИЕ ОБЪЕКТА
⭐Предлагаем в продажу ГАБ - "Вкус Вилл"

✅Основные характеристики:
• Площадь: 151.5 м2;
• Мощность электросети: 35 кВт;
• Высота потолков: 3,9 м;
• Этаж: 1;
• В густо заселенном районе;

⭐Стоимость, условия сделки:
• Цена - 50 000 000 руб.;
• МАП - 350 000 руб.;
• ГАП - 4 200 000 руб.;
• Срок договора - длительный до 2029 года;
• Ежегодная индексация 5%.

✅Описание:
• Высокий пешеходный и автомобильный трафик;
• Отдельных 2 - входа, главный с оживленной улицы;
• Большие окна;
• Вывеска, места под рекламу;
• Помещение в хорошем состоянии, высокая покупательская способность;
• Все коммуникации: телефонные линии, водоснабжение, канализация, теплоснабжение;
• Юр. статус: собственность.

✅ Подойдет под любой вид деятельности;




☎ Звоните, организуем просмотр в удобное Вам время.

⭐ Мы – АГЕНТСТВО НЕДВИЖИМОСТИ СЕВЕРО-ЗАПАДА – лидирующий эксперт рынка недвижимости Санкт-Петербурга и Ленинградской области.
Наши агенты закрывают более 300 сделок в год.
Мы строим долгосрочные деловые отношения на основе принципов честности и качественного сервиса с нашими клиентами.
⭐ Работая с нами, вы получите:
✅ Высокое качество сопровождения сделки от начала и до конца;
✅ Широкий спектр сопутствующих услуг;
✅ Оптимизацию ваших расходов при заключении сделки;
✅ Экономию Ваших нервов и времени при переговорах;
✅ Доступ к уникальной базе объектов, многие из которых отсутствуют в открытой рекламе;
✅ Помогаем оформлять ипотеку!

⭐Заходите в наш профиль, чтобы ознакомиться с нашими актуальными предложениями!
Если не нашли в нашем профиле то, что Вам подходит – позвоните ☎, и мы обязательно подберем нужный объект по самым выгодным условиям на рынке коммерческой недвижимости!

⭐ Добавьте объявление в Избранное, чтобы не потерять!

С Уважением, Евгений.
Недвижимость Северо-Запада.
показать все описание
Заинтересовал объект?
Оставьте свой номер - наш эксперт свяжется с Вами, ответит на все вопросы и запишет на просмотр
РАСПОЛОЖЕНИЕ ОБЪЕКТА НА КАРТЕ
Заинтересовал объект?
Оставьте свой номер - наш эксперт свяжется с Вами, ответит на все вопросы и запишет на просмотр
РАСПОЛОЖЕНИЕ ОБЪЕКТА НА КАРТЕ
Другие объекты компании
Аренда
Архив
3
31.01.2025
location_white Красное Село г, Юных пионеров ул, 38
Площадь
386.00 м²
Цена за м²
900 ₽
Этажей в здании
1
Этаж
1
Продажа
Архив
1
09.04.2024
location_white Санкт-Петербург г, Чкаловский пр-кт, 16 А
Площадь
143.00 м²
Цена за м²
43 356 ₽
Этажей в здании
6
Этаж
1
Продажа
212
09.06.2025
location_white Ленинградская обл, Новоселье гп, Центральная ул, 11
Площадь
30.30 м²
Цена за м²
495 049 ₽
Этажей в здании
9
Этаж
1
Аренда
46
29.07.2024
location_white Санкт-Петербург г, Будапештская ул, 94/41 А
Площадь
65.00 м²
Цена за м²
769 ₽
Этажей в здании
2
Этаж
2