Продажа офиса в центре, 319м!

ПСН
Дата обновления - 15.02.2024
Итоговая цена 35 000 000 ₽ Итоговая цена
Стоимость за 1 м² 109 717 ₽
Стоимость за 1 м²
Площадь помещения
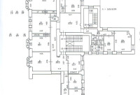
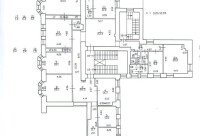
319 м²
ПСН
Дата обновления - 15.02.2024

Продажа офиса в центре, 319м!

ХАРАКТЕРИСТИКИ ПОМЕЩЕНИЯ
Тип сделки
Продажа
Тип помещения
ПСН
Площадь помещения
319 м²
Этаж
4
Высота потолков
3.00 м
Отделка
Чистовая стандарт
ХАРАКТЕРИСТИКИ ЗДАНИЯ
Этажность
4
Парковка
Наземная
КОНСУЛЬТАЦИЯ НАШЕГО ЭКСПЕРТА
Александр Николаев
Эксперт проекта
Вы можете позвонить или написать мне в whatsapp:
или нажмите на кнопку, чтобы записаться на просмотр, и в ближайшее время я свяжусь с вами
ОПИСАНИЕ ОБЪЕКТА
⭐Предлагаем в продажу офис в центре 319м!

✅Основные характеристики:
• Площадь: 319м2;
• Мощность электросети: 14кВт;
• Высота потолков: 3 м2;
• Этаж: 4;
• В 6 минутах от метро Спасская;


⭐Стоимость, условия сделки: 35 000 000 руб




✅Описание:
• Высокий пешеходный и автомобильный трафик;
• Отдельный вход;

• Вывеска, места под рекламу;
• Помещение в хорошем состоянии;
• Все коммуникации: телефонные линии, водоснабжение, канализация, теплоснабжение;
• Юр. статус: собственность.

✅ Подойдет под любой вид деятельности;




☎ Звоните, организуем просмотр в удобное Вам время.

⭐ Мы – АГЕНТСТВО НЕДВИЖИМОСТИ СЕВЕРО-ЗАПАДА – лидирующий эксперт рынка недвижимости Санкт-Петербурга и Ленинградской области.
Наши агенты закрывают более 300 сделок в год.
Мы строим долгосрочные деловые отношения на основе принципов честности и качественного сервиса с нашими клиентами.
⭐ Работая с нами, вы получите:
✅ Высокое качество сопровождения сделки от начала и до конца;
✅ Широкий спектр сопутствующих услуг;
✅ Оптимизацию ваших расходов при заключении сделки;
✅ Экономию Ваших нервов и времени при переговорах;
✅ Доступ к уникальной базе объектов, многие из которых отсутствуют в открытой рекламе;

⭐Заходите в наш профиль, чтобы ознакомиться с нашими актуальными предложениями!
Если не нашли в нашем профиле то, что Вам подходит – позвоните ☎, и мы обязательно подберем нужный объект по самым выгодным условиям на рынке коммерческой недвижимости!

⭐ Добавьте объявление в Избранное, чтобы не потерять!

С Уважением, Николаев Александр.
Недвижимость Северо-Запада.
показать все описание
Заинтересовал объект?
Оставьте свой номер - наш эксперт свяжется с Вами, ответит на все вопросы и запишет на просмотр
РАСПОЛОЖЕНИЕ ОБЪЕКТА НА КАРТЕ
Заинтересовал объект?
Оставьте свой номер - наш эксперт свяжется с Вами, ответит на все вопросы и запишет на просмотр
РАСПОЛОЖЕНИЕ ОБЪЕКТА НА КАРТЕ
Другие объекты компании
Аренда
8
29.09.2025
location_white Санкт-Петербург г, Гражданский пр-кт, 15к1
Площадь
251.00 м²
Цена за м²
1 314 ₽
Этажей в здании
9
Этаж
1
Продажа
140
14.05.2025
location_white Ленинградская обл, Куровицы д, Вырицкий пр-кт, 165
Площадь
818.70 м²
Цена за м²
122 144 ₽
Этажей в здании
1
Этаж
1
Продажа
454
13.03.2024
location_white Санкт-Петербург г, Казанская ул, 17 19 А
Площадь
351.60 м²
Цена за м²
224 687 ₽
Этажей в здании
4
Этаж
2
Продажа
392
29.11.2023
location_white Санкт-Петербург г, Пулковская ул, 2к1 А
Площадь
119.00 м²
Цена за м²
180 672 ₽
Этажей в здании
15
Этаж
1