Продажа помещения с арендатором бьюти коворкинг

ПСН
Дата обновления - 15.02.2024
Итоговая цена 72 708 000 ₽ Итоговая цена
Стоимость за 1 м² 200 297 ₽
Стоимость за 1 м²
ПСН
Дата обновления - 15.02.2024

Продажа помещения с арендатором бьюти коворкинг

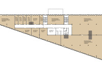
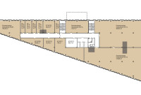
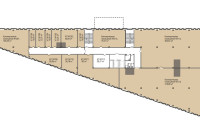
ХАРАКТЕРИСТИКИ ПОМЕЩЕНИЯ
Тип сделки
Продажа
Тип помещения
ПСН
Площадь помещения
363 м²
Этаж
2
Высота потолков
4.00 м
Отделка
Чистовая стандарт
ХАРАКТЕРИСТИКИ ЗДАНИЯ
Этажность
4
Парковка
Открытая
КОНСУЛЬТАЦИЯ НАШЕГО ЭКСПЕРТА
Даниил Сигов
Эксперт проекта
Вы можете позвонить или написать мне в whatsapp:
или нажмите на кнопку, чтобы записаться на просмотр, и в ближайшее время я свяжусь с вами
ОПИСАНИЕ ОБЪЕКТА
⭐Предлагаем продажу помещение в торгово-спортивно-медицинском центре  с арендатором.
Здание построено по высокотехнологическим нормам строительства, оборудованное системой вентиляцией, пожарной сигнализацией. Соответствует современным техническим требованиям. Предусмотрена инфраструктура для людей с ограниченными возможностями.
Удачная локация позволит успешно вести бизнес медицинским организациям, спортивным секциям, а также способствует хорошей торговли street retail.

✅Основные характеристики:
•Общая площадь здания -5 950 кв.м;
•Площадь:363 м2;
• Мощность электросети:30 кВт;
• Высота потолков: 4м;
• Этаж: 2;
⭐Стоимость, условия сделки:
• Стоимость помещения -72 708 000 рублей;
• Арендная ставка -436 248 руб./мес.;
• Срок договора - длительный (от 11 мес.);

✅Описание:
• Высокий пешеходный и автомобильный трафик;
• Панорамное остекление; 
• Вывеска, места под рекламу;
• Помещение в отличном состоянии;
• Все коммуникации: телефонные линии, водоснабжение, канализация, теплоснабжение;
• Юр. статус: собственность.

✅ Подойдет под любой вид деятельности;




☎ Звоните, организуем просмотр в удобное Вам время.

⭐ Мы – АГЕНТСТВО НЕДВИЖИМОСТИ СЕВЕРО-ЗАПАДА – лидирующий эксперт рынка недвижимости Санкт-Петербурга и Ленинградской области.
Наши агенты закрывают более 300 сделок в год.
Мы строим долгосрочные деловые отношения на основе принципов честности и качественного сервиса с нашими клиентами.
⭐ Работая с нами, вы получите:
✅ Высокое качество сопровождения сделки от начала и до конца;
✅ Широкий спектр сопутствующих услуг;
✅ Оптимизацию ваших расходов при заключении сделки;
✅ Экономию Ваших нервов и времени при переговорах;
✅ Доступ к уникальной базе объектов, многие из которых отсутствуют в открытой рекламе;

⭐Заходите в наш профиль, чтобы ознакомиться с нашими актуальными предложениями!
Если не нашли в нашем профиле то, что Вам подходит – позвоните ☎, и мы обязательно подберем нужный объект по самым выгодным условиям на рынке коммерческой недвижимости!

⭐ Добавьте объявление в Избранное, чтобы не потерять!

С Уважением, _____________________.
Недвижимость Северо-Запада.
показать все описание
Заинтересовал объект?
Оставьте свой номер - наш эксперт свяжется с Вами, ответит на все вопросы и запишет на просмотр
РАСПОЛОЖЕНИЕ ОБЪЕКТА НА КАРТЕ
Заинтересовал объект?
Оставьте свой номер - наш эксперт свяжется с Вами, ответит на все вопросы и запишет на просмотр
РАСПОЛОЖЕНИЕ ОБЪЕКТА НА КАРТЕ
Другие объекты компании
Продажа
16
25.11.2025
location_white Санкт-Петербург г, Парашютная ул, 32
Площадь
754.10 м²
Цена за м²
172 390 ₽
Этажей в здании
7
Этаж
1
Аренда
Архив
0
12.02.2025
location_white Ленинградская обл, Производственная зона Янино-1 (гп Янино-1) тер, Восточный пр-д, 4
Площадь
1673.00 м²
Цена за м²
750 ₽
Этажей в здании
2
Этаж
1
Продажа
98
06.05.2024
location_white Санкт-Петербург г, Крыленко ул, 6к5стр1
Площадь
6.00 м²
Цена за м²
1 083 333 ₽
Этажей в здании
8
Этаж
1
Аренда
Архив
84
08.02.2023
location_white Санкт-Петербург г, Дыбенко ул, 2стр1
Площадь
152.00 м²
Цена за м²
986 ₽
Этажей в здании
23
Этаж
1