Продажа помещения с арендатором на трафике, 99 м2

ПСН
Дата обновления - 02.02.2026
Итоговая цена 32 000 000 ₽ Итоговая цена
Стоимость за 1 м² 322 906 ₽
Стоимость за 1 м²
ПСН
Дата обновления - 02.02.2026

Продажа помещения с арендатором на трафике, 99 м2

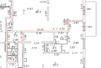
ХАРАКТЕРИСТИКИ ПОМЕЩЕНИЯ
Тип сделки
Продажа
Тип помещения
ПСН
Площадь помещения
99 м²
Этаж
1
Высота потолков
3.00 м
Отделка
Чистовая стандарт
ХАРАКТЕРИСТИКИ ЗДАНИЯ
Этажность
13
Парковка
Открытая
КОНСУЛЬТАЦИЯ НАШЕГО ЭКСПЕРТА
Диана Ильюхина
Эксперт проекта
Вы можете позвонить или написать мне в whatsapp:
или нажмите на кнопку, чтобы записаться на просмотр, и в ближайшее время я свяжусь с вами
ОПИСАНИЕ ОБЪЕКТА
⭐Предлагаем в продажу помещение с надежным арендатором.

✅Основные характеристики:
• Площадь: 99м2;
• Мощность электросети: 15кВт;
• Высота потолков:3м;
• Этаж: 1;


⭐Стоимость, условия сделки:
• 32 000 000 р.
• Арендатор: Красное белое. Арендный поток - 180 000 руб./мес.
• Договор до 2029 года.


✅Описание:
• Вокруг мало комерции;
• Высокий пешеходный и автомобильный трафик;
• 2  входа;
• Витринные окна;
• Вывеска, места под рекламу;
• Помещение в хорошем состоянии;
• Все коммуникации: телефонные линии, водоснабжение, канализация, теплоснабжение;
• Юр. статус: собственность.

✅ Подойдет под любой вид деятельности;


☎ Звоните, организуем просмотр в удобное Вам время.

⭐ Мы – АГЕНТСТВО НЕДВИЖИМОСТИ СЕВЕРО-ЗАПАДА – лидирующий эксперт рынка недвижимости Санкт-Петербурга и Ленинградской области.
Наши агенты закрывают более 300 сделок в год.
Мы строим долгосрочные деловые отношения на основе принципов честности и качественного сервиса с нашими клиентами.
⭐ Работая с нами, вы получите:
✅ Высокое качество сопровождения сделки от начала и до конца;
✅ Широкий спектр сопутствующих услуг;
✅ Оптимизацию ваших расходов при заключении сделки;
✅ Экономию Ваших нервов и времени при переговорах;
✅ Доступ к уникальной базе объектов, многие из которых отсутствуют в открытой рекламе;

⭐Заходите в наш профиль, чтобы ознакомиться с нашими актуальными предложениями!
Если не нашли в нашем профиле то, что Вам подходит – позвоните ☎, и мы обязательно подберем нужный объект по самым выгодным условиям на рынке коммерческой недвижимости!

⭐ Добавьте объявление в Избранное, чтобы не потерять!

С Уважением, Тлевалдэ.
Недвижимость Северо-Запада.
показать все описание
Заинтересовал объект?
Оставьте свой номер - наш эксперт свяжется с Вами, ответит на все вопросы и запишет на просмотр
РАСПОЛОЖЕНИЕ ОБЪЕКТА НА КАРТЕ
Заинтересовал объект?
Оставьте свой номер - наш эксперт свяжется с Вами, ответит на все вопросы и запишет на просмотр
РАСПОЛОЖЕНИЕ ОБЪЕКТА НА КАРТЕ
Другие объекты компании
Продажа
150
27.01.2023
location_white Санкт-Петербург г, Энергетиков пр-кт, 50
Площадь
942.00 м²
Цена за м²
196 390 ₽
Этажей в здании
2
Этаж
1
Продажа
126
27.07.2023
location_white Санкт-Петербург г, Гороховая ул, 4 А
Площадь
231.00 м²
Цена за м²
432 900 ₽
Этажей в здании
5
Этаж
1
Продажа
197
28.02.2024
location_white Ленинградская обл, Мурино г, 2-я Линия ул, 23
Площадь
1000.00 м²
Цена за м²
80 000 ₽
Этажей в здании
1
Этаж
1
Продажа
311
11.04.2025
location_white Санкт-Петербург г, Варшавская ул, 6к1
Площадь
572.90 м²
Цена за м²
342 119 ₽
Этажей в здании
1
Этаж
1