Продажа помещения с арендатором СУШИВОК

ПСН
Дата обновления - 13.03.2025
Итоговая цена 19 990 000 ₽ Итоговая цена
Стоимость за 1 м² 366 492 ₽
Стоимость за 1 м²
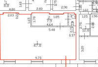
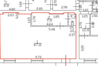
Площадь помещения
57 м²
ПСН
Дата обновления - 13.03.2025

Продажа помещения с арендатором СУШИВОК

ХАРАКТЕРИСТИКИ ПОМЕЩЕНИЯ
Тип сделки
Продажа
Тип помещения
ПСН
Площадь помещения
57 м²
Этаж
1
Высота потолков
3.00 м
Отделка
Чистовая стандарт
ХАРАКТЕРИСТИКИ ЗДАНИЯ
Этажность
9
Парковка
Открытая
КОНСУЛЬТАЦИЯ НАШЕГО ЭКСПЕРТА
Михаил Лунев
Эксперт проекта
Вы можете позвонить или написать мне в whatsapp:
или нажмите на кнопку, чтобы записаться на просмотр, и в ближайшее время я свяжусь с вами
ОПИСАНИЕ ОБЪЕКТА
⭐Предлагаем в продажу помещение с арендатором СУШИВОК. Открытие в конце сентября.
✅Основные характеристики:
• Площадь: 57,3 м2;
• Мощность электросети: 15 кВт;
• Высота потолков: 3м;
• Этаж: 1;
• В 9 минутах от метро Ломоносовская;


⭐Стоимость, условия сделки:
• Стоимость помещения - 19 990 000 рублей;
• Арендатор СУШИВОК. Арендная ставка  - 150 000 руб. /мес.Индексация 5% в одностороннем порядке;
• Срок договора - длительный (от 11 мес.);


✅Описание:
• Высокий пешеходный и автомобильный трафик;
• Отдельный вход;
• Витринные окна;
• Вывеска, места под рекламу;
• Помещение в хорошем состоянии;
• Все коммуникации: телефонные линии, водоснабжение, канализация, теплоснабжение;
• Юр. статус: собственность.

✅ Подойдет под любой вид деятельности;




☎ Звоните, организуем просмотр в удобное Вам время.

⭐ Мы – АГЕНТСТВО НЕДВИЖИМОСТИ СЕВЕРО-ЗАПАДА – лидирующий эксперт рынка недвижимости Санкт-Петербурга и Ленинградской области.
Наши агенты закрывают более 300 сделок в год.
Мы строим долгосрочные деловые отношения на основе принципов честности и качественного сервиса с нашими клиентами.
⭐ Работая с нами, вы получите:
✅ Высокое качество сопровождения сделки от начала и до конца;
✅ Широкий спектр сопутствующих услуг;
✅ Оптимизацию ваших расходов при заключении сделки;
✅ Экономию Ваших нервов и времени при переговорах;
✅ Доступ к уникальной базе объектов, многие из которых отсутствуют в открытой рекламе;
✅ Помогаем оформлять ипотеку!

⭐Заходите в наш профиль, чтобы ознакомиться с нашими актуальными предложениями!
Если не нашли в нашем профиле то, что Вам подходит – позвоните ☎, и мы обязательно подберем нужный объект по самым выгодным условиям на рынке коммерческой недвижимости!

⭐ Добавьте объявление в Избранное, чтобы не потерять!

С Уважением, Михаил Лунёв.
Недвижимость Северо-Запада.
показать все описание
Заинтересовал объект?
Оставьте свой номер - наш эксперт свяжется с Вами, ответит на все вопросы и запишет на просмотр
РАСПОЛОЖЕНИЕ ОБЪЕКТА НА КАРТЕ
Заинтересовал объект?
Оставьте свой номер - наш эксперт свяжется с Вами, ответит на все вопросы и запишет на просмотр
РАСПОЛОЖЕНИЕ ОБЪЕКТА НА КАРТЕ
Другие объекты компании
Аренда
65
17.03.2026
location_white Санкт-Петербург г, Херсонская ул, 39
Площадь
325.00 м²
Цена за м²
3 200 ₽
Этажей в здании
1
Этаж
1
Продажа
46
04.07.2024
location_white Санкт-Петербург г, Пулковское ш, 80
Площадь
5000.00 м²
Цена за м²
10 000 ₽
Этажей в здании
2
Этаж
1
Продажа
29
30.05.2024
location_white Ленинградская обл, Чуфринский (Цвелодубовская тер.) проезд, Чуфринский (Цвелодубовская тер.) проезд, 1
Площадь
675.00 м²
Цена за м²
44 444 ₽
Этажей в здании
1
Этаж
1
Продажа
26
20.06.2024
location_white Карелия Респ, Вятиккя п, Приладожская ул, 3
Площадь
109600.00 м²
Цена за м²
228 ₽
Этажей в здании
1
Этаж
1