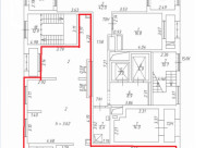
Продажа помещения с НДС площадью 112 кв.м.

ПСН
Дата обновления - 17.12.2025
Итоговая цена 40 000 000 ₽ Итоговая цена
Стоимость за 1 м² 357 142 ₽
Стоимость за 1 м²
ПСН
Дата обновления - 17.12.2025

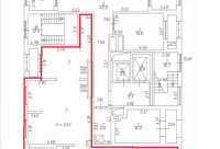
Продажа помещения с НДС площадью 112 кв.м.

ХАРАКТЕРИСТИКИ ПОМЕЩЕНИЯ
Тип сделки
Продажа
Тип помещения
ПСН
Площадь помещения
112 м²
Этаж
1
Высота потолков
3.60 м
Отделка
Черновая
ХАРАКТЕРИСТИКИ ЗДАНИЯ
Этажность
18
Парковка
Наземная
КОНСУЛЬТАЦИЯ НАШЕГО ЭКСПЕРТА
Дмитрий Ефремов
Эксперт проекта
Вы можете позвонить или написать мне в whatsapp:
или нажмите на кнопку, чтобы записаться на просмотр, и в ближайшее время я свяжусь с вами
ОПИСАНИЕ ОБЪЕКТА
⭐Предлагаем в продажу помещение свободного назначения в новом доме с НДС.

✅Основные характеристики:
• Площадь: 112 м2;
• Мощность электросети: 25 кВт;
• Высота потолков:3.6 м;
• Этаж: 1;

⭐Стоимость, условия сделки:
• Стоимость - 40 000 000 руб.;

✅Описание:
• Высокий пешеходный и автомобильный трафик;
• Отдельный вход - на улицу и во двор;
• Витринные окна;
• Вывеска, места под рекламу;
• Помещение в хорошем состоянии;
• Все коммуникации: телефонные линии, водоснабжение, канализация, теплоснабжение;
• Юр. статус: собственность.

✅ Подойдет под любой вид деятельности;




☎ Звоните, организуем просмотр в удобное Вам время.

⭐ Мы – АГЕНТСТВО НЕДВИЖИМОСТИ СЕВЕРО-ЗАПАДА – лидирующий эксперт рынка недвижимости Санкт-Петербурга и Ленинградской области.
Наши агенты закрывают более 300 сделок в год.
Мы строим долгосрочные деловые отношения на основе принципов честности и качественного сервиса с нашими клиентами.
⭐ Работая с нами, вы получите:
✅ Высокое качество сопровождения сделки от начала и до конца;
✅ Широкий спектр сопутствующих услуг;
✅ Оптимизацию ваших расходов при заключении сделки;
✅ Экономию Ваших нервов и времени при переговорах;
✅ Доступ к уникальной базе объектов, многие из которых отсутствуют в открытой рекламе;
✅ Помогаем оформлять ипотеку!

⭐Заходите в наш профиль, чтобы ознакомиться с нашими актуальными предложениями!
Если не нашли в нашем профиле то, что Вам подходит – позвоните ☎, и мы обязательно подберем нужный объект по самым выгодным условиям на рынке коммерческой недвижимости!

⭐ Добавьте объявление в Избранное, чтобы не потерять!

С Уважением, _____________________.
Недвижимость Северо-Запада.
показать все описание
Заинтересовал объект?
Оставьте свой номер - наш эксперт свяжется с Вами, ответит на все вопросы и запишет на просмотр
РАСПОЛОЖЕНИЕ ОБЪЕКТА НА КАРТЕ
Заинтересовал объект?
Оставьте свой номер - наш эксперт свяжется с Вами, ответит на все вопросы и запишет на просмотр
РАСПОЛОЖЕНИЕ ОБЪЕКТА НА КАРТЕ
Другие объекты компании
Продажа
85
21.06.2024
location_white Ленинградская обл, Ильичево п, Придорожная ул, 24
Площадь
486.20 м²
Цена за м²
113 122 ₽
Этажей в здании
1
Этаж
1
Аренда
44
20.10.2025
location_white Санкт-Петербург г, Канала Грибоедова наб, 29 А
Площадь
212.60 м²
Цена за м²
940 ₽
Этажей в здании
1
Этаж
-1
Продажа
181
22.05.2025
location_white Санкт-Петербург г, Парашютная ул, 23к1
Площадь
380.00 м²
Цена за м²
184 210 ₽
Этажей в здании
1
Этаж
1
Продажа
106
19.09.2025
location_white Ленинградская обл, Приозерск г, Привокзальная ул, 3
Площадь
1100.00 м²
Цена за м²
25 000 ₽
Этажей в здании
2
Этаж
1