Продажа помещения с Wildberries

ПСН
Дата обновления - 04.08.2025
Итоговая цена 21 990 000 ₽ Итоговая цена
Стоимость за 1 м² 347 943 ₽
Стоимость за 1 м²
ПСН
Дата обновления - 04.08.2025

Продажа помещения с Wildberries

ХАРАКТЕРИСТИКИ ПОМЕЩЕНИЯ
Тип сделки
Продажа
Тип помещения
ПСН
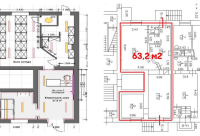
Площадь помещения
63 м²
Этаж
1
Высота потолков
3.00 м
Отделка
Чистовая стандарт
Вход в помещение
Калининский
ХАРАКТЕРИСТИКИ ЗДАНИЯ
Этажность
3
Парковка
Открытая
КОНСУЛЬТАЦИЯ НАШЕГО ЭКСПЕРТА
КОМПАНИИ БАЗА
Эксперт проекта
Вы можете позвонить или написать мне в whatsapp:
или нажмите на кнопку, чтобы записаться на просмотр, и в ближайшее время я свяжусь с вами
ОПИСАНИЕ ОБЪЕКТА
⭐Предлагаем в продажу угловое помещения на перекрестке с сетевым арендатором Wildberries.

✅Основные характеристики:
• Площадь: 63,2 м2;
• Мощность электросети: 15 кВт, возможно увеличение;
• Высота потолков: 3 м;
• Этаж: 1;
• Помещение хорошо просматривается со всех сторон;
• В Санкт-Петербурге, Кондратьевский пр. д.39;

⭐Стоимость, условия сделки:
• Цена продажи: 21 990 000 рублей;
• Арендатор - Wildberries, на данный момент вышли на ремонт;
• Арендная ставка: 175 000 руб./мес;
• Окупаемость – 10,4 лет;
• Индексация – не более 10% по согласованию сторон.


✅Описание:
• Остановки общественного транспорта;
• Рядом супермаркет Дикси;
• Высокий пешеходный и автомобильный трафик;
• 2 входа: 1 с фасада, 1 со двора;
• Вывеска, места под рекламу;
• Помещение в хорошем состоянии;
• Все коммуникации: телефонные линии, водоснабжение, канализация, теплоснабжение;
• Юр. статус: собственность.

✅ Подойдет под любой вид деятельности;




☎ Звоните, организуем просмотр в удобное Вам время.

⭐ Мы – АГЕНТСТВО НЕДВИЖИМОСТИ СЕВЕРО-ЗАПАДА – лидирующий эксперт рынка недвижимости Санкт-Петербурга и Ленинградской области.
Наши агенты закрывают более 300 сделок в год.
Мы строим долгосрочные деловые отношения на основе принципов честности и качественного сервиса с нашими клиентами.
⭐ Работая с нами, вы получите:
✅ Высокое качество сопровождения сделки от начала и до конца;
✅ Широкий спектр сопутствующих услуг;
✅ Оптимизацию ваших расходов при заключении сделки;
✅ Экономию Ваших нервов и времени при переговорах;
✅ Доступ к уникальной базе объектов, многие из которых отсутствуют в открытой рекламе;
✅ Помогаем оформлять ипотеку!

⭐Заходите в наш профиль, чтобы ознакомиться с нашими актуальными предложениями!
Если не нашли в нашем профиле то, что Вам подходит – позвоните ☎, и мы обязательно подберем нужный объект по самым выгодным условиям на рынке коммерческой недвижимости!

⭐ Добавьте объявление в Избранное, чтобы не потерять!

С Уважением, Михаил.
Недвижимость Северо-Запада.
показать все описание
Заинтересовал объект?
Оставьте свой номер - наш эксперт свяжется с Вами, ответит на все вопросы и запишет на просмотр
РАСПОЛОЖЕНИЕ ОБЪЕКТА НА КАРТЕ
Заинтересовал объект?
Оставьте свой номер - наш эксперт свяжется с Вами, ответит на все вопросы и запишет на просмотр
РАСПОЛОЖЕНИЕ ОБЪЕКТА НА КАРТЕ
Другие объекты компании
Аренда
26
02.03.2026
location_white Санкт-Петербург г, Дальневосточный пр-кт, 73а
Площадь
950.00 м²
Цена за м²
650 ₽
Этажей в здании
1
Этаж
2
Аренда
73
19.01.2026
location_white Санкт-Петербург г, Невский пр-кт, 68а
Площадь
176.40 м²
Цена за м²
3 400 ₽
Этажей в здании
1
Этаж
5
Продажа
229
28.02.2024
location_white Ленинградская обл, Проба д, Пробинское ш, 28
Площадь
700.00 м²
Цена за м²
28 571 ₽
Этажей в здании
1
Этаж
1
Аренда
104
20.11.2025
location_white Санкт-Петербург г, Камышовая ул, 17к1
Площадь
450.00 м²
Цена за м²
2 000 ₽
Этажей в здании
1
Этаж
1