Продажа помещения в ЖК Куинджи

ПСН
Дата обновления - 14.07.2025
Итоговая цена 44 000 000 ₽ Итоговая цена
Стоимость за 1 м² 370 682 ₽
Стоимость за 1 м²
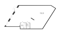
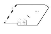
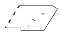
Площадь помещения
119 м²
ПСН
Дата обновления - 14.07.2025

Продажа помещения в ЖК Куинджи

ХАРАКТЕРИСТИКИ ПОМЕЩЕНИЯ
Тип сделки
Продажа
Тип помещения
ПСН
Площадь помещения
119 м²
Этаж
1
Высота потолков
3.40 м
Отделка
Черновая
ХАРАКТЕРИСТИКИ ЗДАНИЯ
Этажность
1
Парковка
Открытая
КОНСУЛЬТАЦИЯ НАШЕГО ЭКСПЕРТА
КОМПАНИИ БАЗА
Эксперт проекта
Вы можете позвонить или написать мне в whatsapp:
или нажмите на кнопку, чтобы записаться на просмотр, и в ближайшее время я свяжусь с вами
ОПИСАНИЕ ОБЪЕКТА
⭐Предлагаем в продажу помещение в новом строящемся ЖК Куинджи во Фрунзенском р-не.

✅Основные характеристики:
• Площадь: 118,7 м2 (свободная планировка);
• Мощность электросети: 19 кВт;
• Высота потолков: 3,4 м;
• Этаж: 1;
• Витринное остекление;
• Вентиляция: индивидуальная;
• Срок сдачи: 4 квартал 2026 года;
• Класс недвижимости: элитный;
• Во Фрунзенском р-не, ул. Тосина;

⭐Стоимость, условия сделки:
• Цена продажи: 44 000 000 рублей.

✅Описание:
• Высокий пешеходный и автомобильный трафик;
• Отдельный вход;
• Вывеска, места под рекламу;
• Помещение в хорошем состоянии;
• Все коммуникации: телефонные линии, водоснабжение, канализация, теплоснабжение;
• Юр. статус: собственность.

✅ Подойдет под любой вид деятельности;




☎ Звоните, организуем просмотр в удобное Вам время.

⭐ Мы – АГЕНТСТВО НЕДВИЖИМОСТИ СЕВЕРО-ЗАПАДА – лидирующий эксперт рынка недвижимости Санкт-Петербурга и Ленинградской области.
Наши агенты закрывают более 300 сделок в год.
Мы строим долгосрочные деловые отношения на основе принципов честности и качественного сервиса с нашими клиентами.
⭐ Работая с нами, вы получите:
✅ Высокое качество сопровождения сделки от начала и до конца;
✅ Широкий спектр сопутствующих услуг;
✅ Оптимизацию ваших расходов при заключении сделки;
✅ Экономию Ваших нервов и времени при переговорах;
✅ Доступ к уникальной базе объектов, многие из которых отсутствуют в открытой рекламе;
✅ Помогаем оформлять ипотеку!

⭐Заходите в наш профиль, чтобы ознакомиться с нашими актуальными предложениями!
Если не нашли в нашем профиле то, что Вам подходит – позвоните ☎, и мы обязательно подберем нужный объект по самым выгодным условиям на рынке коммерческой недвижимости!

⭐ Добавьте объявление в Избранное, чтобы не потерять!

С Уважением, Тлевалдэ.
Недвижимость Северо-Запада.
показать все описание
Заинтересовал объект?
Оставьте свой номер - наш эксперт свяжется с Вами, ответит на все вопросы и запишет на просмотр
РАСПОЛОЖЕНИЕ ОБЪЕКТА НА КАРТЕ
Заинтересовал объект?
Оставьте свой номер - наш эксперт свяжется с Вами, ответит на все вопросы и запишет на просмотр
РАСПОЛОЖЕНИЕ ОБЪЕКТА НА КАРТЕ
Другие объекты компании
Продажа
Архив
1
21.11.2024
location_white Санкт-Петербург г, Олеко Дундича ул, 36к1
Площадь
340.00 м²
Цена за м²
152 941 ₽
Этажей в здании
9
Этаж
1
Продажа
Архив
0
21.11.2024
location_white Левашово п, -, -
Площадь
30000.00 м²
Цена за м²
10 666 ₽
Этажей в здании
1
Этаж
1
Продажа
Эксклюзив
628
15.01.2025
location_white Ленинградская обл, Янино-1 гп, Шоссейная ул, 10
Площадь
210.00 м²
Цена за м²
222 857 ₽
Этажей в здании
1
Этаж
1
Продажа
334
28.05.2025
location_white Санкт-Петербург г, Коломенская ул, 14 Б
Площадь
181.70 м²
Цена за м²
99 064 ₽
Этажей в здании
2
Этаж
1