Продажа с арендатором KERAMA MARAZZI

ПСН
Дата обновления - 26.01.2026
Итоговая цена 180 000 000 ₽ Итоговая цена
Стоимость за 1 м² 268 376 ₽
Стоимость за 1 м²
ПСН
Дата обновления - 26.01.2026

Продажа с арендатором KERAMA MARAZZI

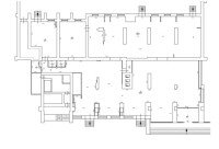
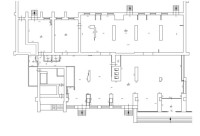
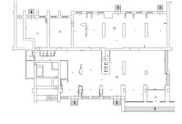
ХАРАКТЕРИСТИКИ ПОМЕЩЕНИЯ
Тип сделки
Продажа
Тип помещения
ПСН
Площадь помещения
671 м²
Этаж
1
Высота потолков
5.00 м
Отделка
Чистовая стандарт
ХАРАКТЕРИСТИКИ ЗДАНИЯ
Этажность
1
Парковка
Открытая
КОНСУЛЬТАЦИЯ НАШЕГО ЭКСПЕРТА
КОМПАНИИ БАЗА
Эксперт проекта
Вы можете позвонить или написать мне в whatsapp:
или нажмите на кнопку, чтобы записаться на просмотр, и в ближайшее время я свяжусь с вами
ОПИСАНИЕ ОБЪЕКТА
⭐Предлагаем в продажу помещение с арендатором KERAMA MARAZZI


✅Основные характеристики:
• Площадь: 670,7м2;
• Мощность электросети: 45кВт;
• Высота потолков:4,5м (над встроенными помещениями, технический этаж 2м)  ;
• Этаж: 1;
• Рядом с метро Гражданский проспект;


⭐Стоимость, условия сделки:
• Стоимость - 180 000 000 рублей ;
• Арендный платеж  арендатора KERAMA MARAZZI - 1 109 300 руб./мес.+КУ;
• Срок договора - до 07.02.27г;



✅Описание:
• Высокий пешеходный и автомобильный трафик;
• Отдельный вход;
• Витринные окна;
• Вывеска, места под рекламу;
• Сложившийся густонаселенный район;
• Все коммуникации: телефонные линии, водоснабжение, канализация, теплоснабжение;
• Юр. статус: собственность.

✅ Подойдет под любой вид деятельности;




☎ Звоните, организуем просмотр в удобное Вам время.

⭐ Мы – АГЕНТСТВО НЕДВИЖИМОСТИ СЕВЕРО-ЗАПАДА – лидирующий эксперт рынка недвижимости Санкт-Петербурга и Ленинградской области.
Наши агенты закрывают более 300 сделок в год.
Мы строим долгосрочные деловые отношения на основе принципов честности и качественного сервиса с нашими клиентами.
⭐ Работая с нами, вы получите:
✅ Высокое качество сопровождения сделки от начала и до конца;
✅ Широкий спектр сопутствующих услуг;
✅ Оптимизацию ваших расходов при заключении сделки;
✅ Экономию Ваших нервов и времени при переговорах;
✅ Доступ к уникальной базе объектов, многие из которых отсутствуют в открытой рекламе;
✅ Помогаем оформлять ипотеку!

⭐Заходите в наш профиль, чтобы ознакомиться с нашими актуальными предложениями!
Если не нашли в нашем профиле то, что Вам подходит – позвоните ☎, и мы обязательно подберем нужный объект по самым выгодным условиям на рынке коммерческой недвижимости!

⭐ Добавьте объявление в Избранное, чтобы не потерять!

С Уважением, _____________________.
Недвижимость Северо-Запада.
показать все описание
Заинтересовал объект?
Оставьте свой номер - наш эксперт свяжется с Вами, ответит на все вопросы и запишет на просмотр
РАСПОЛОЖЕНИЕ ОБЪЕКТА НА КАРТЕ
Заинтересовал объект?
Оставьте свой номер - наш эксперт свяжется с Вами, ответит на все вопросы и запишет на просмотр
РАСПОЛОЖЕНИЕ ОБЪЕКТА НА КАРТЕ
Другие объекты компании
Продажа
183
20.08.2025
location_white Санкт-Петербург г, Пейзажная ул, 14стр1
Площадь
137.40 м²
Цена за м²
152 838 ₽
Этажей в здании
5
Этаж
1
Аренда
194
25.05.2023
location_white Санкт-Петербург г, Челюскина ул, 4
Площадь
159.90 м²
Цена за м²
2 200 ₽
Этажей в здании
16
Этаж
1
Продажа
153
30.05.2024
location_white Ленинградская обл, Чуфринский (Цвелодубовская тер.) проезд, Чуфринский (Цвелодубовская тер.) проезд, 1
Площадь
675.00 м²
Цена за м²
44 444 ₽
Этажей в здании
1
Этаж
1
Продажа
169
07.06.2023
location_white Санкт-Петербург г, Лидии Зверевой ул, 9к1стр1
Площадь
80.10 м²
Цена за м²
168 539 ₽
Этажей в здании
25
Этаж
1