Продажа с арендатором "ЛЕНТА".

ПСН
Дата обновления - 03.04.2025
Итоговая цена 154 000 000 ₽ Итоговая цена
Стоимость за 1 м² 492 012 ₽
Стоимость за 1 м²
ПСН
Дата обновления - 03.04.2025

Продажа с арендатором "ЛЕНТА".

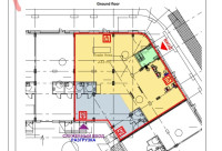
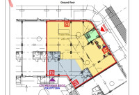
ХАРАКТЕРИСТИКИ ПОМЕЩЕНИЯ
Тип сделки
Продажа
Тип помещения
ПСН
Площадь помещения
313 м²
Этаж
1
Высота потолков
4.00 м
Отделка
Чистовая стандарт
ХАРАКТЕРИСТИКИ ЗДАНИЯ
Этажность
10
Парковка
Открытая
КОНСУЛЬТАЦИЯ НАШЕГО ЭКСПЕРТА
Дмитрий Утробин
Эксперт проекта
Вы можете позвонить или написать мне в whatsapp:
или нажмите на кнопку, чтобы записаться на просмотр, и в ближайшее время я свяжусь с вами
ОПИСАНИЕ ОБЪЕКТА
⭐ Предлагаем в продажу помещение площадью 313 м2 с надежным сетевым арендатором магазин Лента.

✅ Основные характеристики:

• Площадь: 313 м2;
• Мощность электросети: 100 кВт;
• Высота потолков: 4 м;
• Этаж: 1;
• В 5 минутах от метро Лиговский проспект;


⭐ Стоимость, условия сделки:

• Цена объекта - 154 000 000 рублей;
• МАП - 689 000 руб.мес;
• Арендатор - магазин Лента;
• Срок договора - длительный (от 11 мес.);


✅ Описание:

• Высокий пешеходный и автомобильный трафик;
• Отдельный вход;
• Большие окна;
• Вывеска, места под рекламу;
• Помещение в хорошем состоянии;
• Все коммуникации: телефонные линии, водоснабжение, канализация, теплоснабжение;
• Юр. статус: собственность.

✅ Подойдет под любой вид деятельности;

☎ Звоните, организуем просмотр в удобное Вам время.

⭐ Мы – АГЕНТСТВО НЕДВИЖИМОСТИ СЕВЕРО-ЗАПАДА – лидирующий эксперт рынка недвижимости Санкт-Петербурга и Ленинградской области.
Наши агенты закрывают более 300 сделок в год.
Мы строим долгосрочные деловые отношения на основе принципов честности и качественного сервиса с нашими клиентами.

⭐ Работая с нами, вы получите:

✅ Высокое качество сопровождения сделки от начала и до конца;
✅ Широкий спектр сопутствующих услуг;
✅ Оптимизацию ваших расходов при заключении сделки;
✅ Экономию Ваших нервов и времени при переговорах;
✅ Доступ к уникальной базе объектов, многие из которых отсутствуют в открытой рекламе;
✅ Помогаем оформлять ипотеку!

⭐Заходите в наш профиль, чтобы ознакомиться с нашими актуальными предложениями!

Если не нашли в нашем профиле то, что Вам подходит – позвоните ☎, и мы обязательно подберем нужный объект по самым выгодным условиям на рынке коммерческой недвижимости!

⭐ Добавьте объявление в Избранное, чтобы не потерять!

С Уважением, Дмитрий.
Недвижимость Северо-Запада.
показать все описание
Заинтересовал объект?
Оставьте свой номер - наш эксперт свяжется с Вами, ответит на все вопросы и запишет на просмотр
РАСПОЛОЖЕНИЕ ОБЪЕКТА НА КАРТЕ
Заинтересовал объект?
Оставьте свой номер - наш эксперт свяжется с Вами, ответит на все вопросы и запишет на просмотр
РАСПОЛОЖЕНИЕ ОБЪЕКТА НА КАРТЕ
Другие объекты компании
Продажа
252
17.04.2025
location_white Санкт-Петербург г, Северный пр-кт, 115к2
Площадь
30.90 м²
Цена за м²
478 964 ₽
Этажей в здании
1
Этаж
1
Продажа
198
10.06.2025
location_white Санкт-Петербург г, Радищева ул, 39литераВ
Площадь
2490.00 м²
Цена за м²
186 144 ₽
Этажей в здании
4
Этаж
1
Аренда
64
07.11.2025
location_white Ленинградская обл, Аннолово д, 2-й Вертикальный проезд, 11к2
Площадь
540.00 м²
Цена за м²
455 ₽
Этажей в здании
1
Этаж
1
Продажа
80
31.10.2025
location_white Санкт-Петербург г, Прилукская ул, 35 А
Площадь
97.90 м²
Цена за м²
178 753 ₽
Этажей в здании
9
Этаж
1