Продажа склада 420м2

Склад
Дата обновления - 23.10.2025
Итоговая цена 105 000 000 ₽ Итоговая цена
Стоимость за 1 м² 250 000 ₽
Стоимость за 1 м²
Склад
Дата обновления - 23.10.2025

Продажа склада 420м2

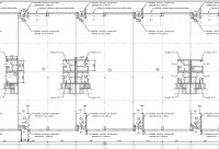
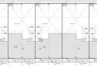
ХАРАКТЕРИСТИКИ ПОМЕЩЕНИЯ
Тип сделки
Продажа
Тип помещения
Склад
Площадь помещения
420 м²
Этаж
1
Высота потолков
5.50 м
Отделка
Черновая
Вход в помещение
Красногвардейский
ХАРАКТЕРИСТИКИ ЗДАНИЯ
Этажность
2
Парковка
Открытая
КОНСУЛЬТАЦИЯ НАШЕГО ЭКСПЕРТА
Даниил Сигов
Эксперт проекта
Вы можете позвонить или написать мне в whatsapp:
или нажмите на кнопку, чтобы записаться на просмотр, и в ближайшее время я свяжусь с вами
ОПИСАНИЕ ОБЪЕКТА
⭐Предлагаем в продажу площади в новом комплексе. 

✅Основные характеристики:
• Площадь: 420 м2;
• Мощность электросети:15 кВт(возможно увеличение);
• Этаж: 1 и антресоль;

⭐Стоимость, условия сделки:
• Стоимость 105 000 000  (7% НДС);

✅Описание:
• Гипоксидные полы
• Рабочая высота потолков 6 м
• Вытяжка
• Дымоудаление
• Пожарка
• Система умный склад
• Отопление водяное от газовой котельной. 
• По каждому боксу 5 парковочных мест ( доп. место 6000 рублей)
• На территории кафе сквозной проезд
• Камеры считывающие номера и лица
• Назначение: склад, автосервис, производство, оказание услуг, торговля и др.;;
• Все коммуникации: телефонные линии, водоснабжение, канализация, теплоснабжение;
• Юр. статус: собственность.

✅ Подойдет под любой вид деятельности;




☎ Звоните, организуем просмотр в удобное Вам время.

⭐ Мы – АГЕНТСТВО НЕДВИЖИМОСТИ СЕВЕРО-ЗАПАДА – лидирующий эксперт рынка недвижимости Санкт-Петербурга и Ленинградской области.
Наши агенты закрывают более 300 сделок в год.
Мы строим долгосрочные деловые отношения на основе принципов честности и качественного сервиса с нашими клиентами.
⭐ Работая с нами, вы получите:
✅ Высокое качество сопровождения сделки от начала и до конца;
✅ Широкий спектр сопутствующих услуг;
✅ Оптимизацию ваших расходов при заключении сделки;
✅ Экономию Ваших нервов и времени при переговорах;
✅ Доступ к уникальной базе объектов, многие из которых отсутствуют в открытой рекламе;
✅ Помогаем оформлять ипотеку!

⭐Заходите в наш профиль, чтобы ознакомиться с нашими актуальными предложениями!
Если не нашли в нашем профиле то, что Вам подходит – позвоните ☎, и мы обязательно подберем нужный объект по самым выгодным условиям на рынке коммерческой недвижимости!

⭐ Добавьте объявление в Избранное, чтобы не потерять!

С Уважением, Даниил.
Недвижимость Северо-Запада.
показать все описание
Заинтересовал объект?
Оставьте свой номер - наш эксперт свяжется с Вами, ответит на все вопросы и запишет на просмотр
РАСПОЛОЖЕНИЕ ОБЪЕКТА НА КАРТЕ
Заинтересовал объект?
Оставьте свой номер - наш эксперт свяжется с Вами, ответит на все вопросы и запишет на просмотр
РАСПОЛОЖЕНИЕ ОБЪЕКТА НА КАРТЕ
Другие объекты компании
Продажа
77
18.11.2025
location_white Санкт-Петербург г, Кораблестроителей ул, 33
Площадь
939.80 м²
Цена за м²
159 608 ₽
Этажей в здании
5
Этаж
3
Продажа
6
15.01.2026
location_white Санкт-Петербург г, 7-я В.О. линия, 30
Площадь
189.30 м²
Цена за м²
507 131 ₽
Этажей в здании
1
Этаж
1
Продажа
420
11.12.2024
location_white Санкт-Петербург г, Обуховской Обороны пр-кт, 141 А
Площадь
80.00 м²
Цена за м²
173 750 ₽
Этажей в здании
5
Этаж
1
Аренда
Архив
0
04.08.2025
location_white Ленинградская обл, Новое Девяткино д, Главная ул, 22
Площадь
720.00 м²
Цена за м²
625 ₽
Этажей в здании
3
Этаж
1