Продажа Склада/Торг.помещения у дороги п.Победа

ОСЗ
Дата обновления - 24.12.2025
Итоговая цена 29 999 990 ₽ Итоговая цена
Стоимость за 1 м² 55 422 ₽
Стоимость за 1 м²
ОСЗ
Дата обновления - 24.12.2025

Продажа Склада/Торг.помещения у дороги п.Победа

ХАРАКТЕРИСТИКИ ПОМЕЩЕНИЯ
Тип сделки
Продажа
Тип помещения
ОСЗ
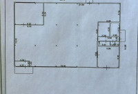
Площадь помещения
541 м²
Этаж
1
Высота потолков
4.00 м
Отделка
Чистовая стандарт
ХАРАКТЕРИСТИКИ ЗДАНИЯ
Этажность
1
Парковка
Открытая
КОНСУЛЬТАЦИЯ НАШЕГО ЭКСПЕРТА
Даниил Сигов
Эксперт проекта
Вы можете позвонить или написать мне в whatsapp:
или нажмите на кнопку, чтобы записаться на просмотр, и в ближайшее время я свяжусь с вами
ОПИСАНИЕ ОБЪЕКТА
⭐Предлагаем в продажу помещение/склад у дороги в Выборгском районе, п. Победы. 

✅Основные характеристики:
• Площадь: 541,3м2;
• Земельный участок 17 соток;
• Мощность электросети: 60 кВт;
• Высота потолков:5 м;
• Этаж: 1;
• Располагается в Выборгском р-не Ленинградской области.
• водоснабжение - централизованное, канализация - ЛОС, теплоснабжение - котел пеллетный;

⭐Стоимость, условия сделки:
• Цена продажи: 30 000 000 рублей.
​​​​​​​

✅Описание:
• Высокий пешеходный и автомобильный трафик;
• Отдельный вход;
• Панорамные окна;
• Вывеска, места под рекламу;
• Помещение в хорошем состоянии;
• Все коммуникации: телефонные линии, водоснабжение, канализация, теплоснабжение;
• Юр. статус: собственность.

✅ Подойдет под любой вид деятельности;




☎ Звоните, организуем просмотр в удобное Вам время.

⭐ Мы – АГЕНТСТВО НЕДВИЖИМОСТИ СЕВЕРО-ЗАПАДА – лидирующий эксперт рынка недвижимости Санкт-Петербурга и Ленинградской области.
Наши агенты закрывают более 300 сделок в год.
Мы строим долгосрочные деловые отношения на основе принципов честности и качественного сервиса с нашими клиентами.
⭐ Работая с нами, вы получите:
✅ Высокое качество сопровождения сделки от начала и до конца;
✅ Широкий спектр сопутствующих услуг;
✅ Оптимизацию ваших расходов при заключении сделки;
✅ Экономию Ваших нервов и времени при переговорах;
✅ Доступ к уникальной базе объектов, многие из которых отсутствуют в открытой рекламе;
✅ Помогаем оформлять ипотеку!

⭐Заходите в наш профиль, чтобы ознакомиться с нашими актуальными предложениями!
Если не нашли в нашем профиле то, что Вам подходит – позвоните ☎, и мы обязательно подберем нужный объект по самым выгодным условиям на рынке коммерческой недвижимости!

⭐ Добавьте объявление в Избранное, чтобы не потерять!

С Уважением, Сергей.
Недвижимость Северо-Запада.
показать все описание
Заинтересовал объект?
Оставьте свой номер - наш эксперт свяжется с Вами, ответит на все вопросы и запишет на просмотр
РАСПОЛОЖЕНИЕ ОБЪЕКТА НА КАРТЕ
Заинтересовал объект?
Оставьте свой номер - наш эксперт свяжется с Вами, ответит на все вопросы и запишет на просмотр
РАСПОЛОЖЕНИЕ ОБЪЕКТА НА КАРТЕ
Другие объекты компании
Продажа
302
15.04.2025
location_white Санкт-Петербург г, Санкт-Петербург г, Вадима Шефнера ул, 4
Площадь
34806.00 м²
Цена за м²
59 472 ₽
Этаж
1
Продажа
306
09.04.2025
location_white Санкт-Петербург г, Литейный пр-кт, 14
Площадь
200.40 м²
Цена за м²
380 000 ₽
Этажей в здании
4
Этаж
1
Продажа
87
11.08.2023
location_white Санкт-Петербург г, Большая Зеленина ул, 31/1 А
Площадь
234.20 м²
Цена за м²
422 715 ₽
Этажей в здании
5
Этаж
1
Продажа
219
03.06.2025
location_white Ленинградская обл, Всеволожск г, Всеволожский пр-кт, 61
Площадь
1983.00 м²
Цена за м²
52 950 ₽
Этажей в здании
3
Этаж
1