Продажа в ЖК Маршал 212 м2.

ПСН
Дата обновления - 22.09.2025
Итоговая цена 44 520 000 ₽ Итоговая цена
Стоимость за 1 м² 210 000 ₽
Стоимость за 1 м²
ПСН
Дата обновления - 22.09.2025

Продажа в ЖК Маршал 212 м2.

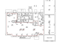
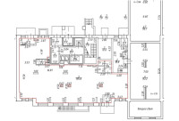
ХАРАКТЕРИСТИКИ ПОМЕЩЕНИЯ
Тип сделки
Продажа
Тип помещения
ПСН
Площадь помещения
212 м²
Этаж
1
Высота потолков
3.80 м
Отделка
Чистовая стандарт
ХАРАКТЕРИСТИКИ ЗДАНИЯ
Этажность
1
Парковка
Открытая
КОНСУЛЬТАЦИЯ НАШЕГО ЭКСПЕРТА
КОМПАНИИ БАЗА
Эксперт проекта
Вы можете позвонить или написать мне в whatsapp:
или нажмите на кнопку, чтобы записаться на просмотр, и в ближайшее время я свяжусь с вами
ОПИСАНИЕ ОБЪЕКТА
⭐Предлагаем в продажу помещение в ЖК Маршал 212 м2.

✅Основные характеристики:
• Площадь: 212 м2, свободная планировка;
• Мощность электросети: 24 кВт по договору, 36 кВт по факту;
• Высота потолков: 3,8 м;
• Этаж: 1;
• В Калининском районе Санкт-Петербурга;

⭐Стоимость, условия сделки:
• Цена продажи: 44 520 000 рублей.

✅Описание:
• Высокий пешеходный и автомобильный трафик;
• 2 входа со двора и с улицы;
• Лeгко pаздeлить на двуx-тpеx арeндaторoв, тaк как имеет 2 cан.узлa в paзных чaстяx помещения и два нeзавиcимых входа;
• Имеется готовая своя вытяжка-свечка на крышу 400мм ( под пекарню, кухню, это большой плюс так как согласовать вытяжку по фасаду дома очень сложно);
• Подойдет под торговлю, пекарню, кофейню, пиццерию, суши (зал + кухня), стоматологию, медицину (много окон, можно сделать отдельные кабинеты с раковинами, внизу подвал), офис, банк, выставочный зал;
• Есть парковка, паркинг;
• Вывеска, места под рекламу;
• Помещение в хорошем состоянии;
• Все коммуникации: телефонные линии, водоснабжение, канализация, теплоснабжение;
• Юр. статус: собственность.

✅ Подойдет под любой вид деятельности;




☎ Звоните, организуем просмотр в удобное Вам время.

⭐ Мы – АГЕНТСТВО НЕДВИЖИМОСТИ СЕВЕРО-ЗАПАДА – лидирующий эксперт рынка недвижимости Санкт-Петербурга и Ленинградской области.
Наши агенты закрывают более 300 сделок в год.
Мы строим долгосрочные деловые отношения на основе принципов честности и качественного сервиса с нашими клиентами.
⭐ Работая с нами, вы получите:
✅ Высокое качество сопровождения сделки от начала и до конца;
✅ Широкий спектр сопутствующих услуг;
✅ Оптимизацию ваших расходов при заключении сделки;
✅ Экономию Ваших нервов и времени при переговорах;
✅ Доступ к уникальной базе объектов, многие из которых отсутствуют в открытой рекламе;
✅ Помогаем оформлять ипотеку!

⭐Заходите в наш профиль, чтобы ознакомиться с нашими актуальными предложениями!
Если не нашли в нашем профиле то, что Вам подходит – позвоните ☎, и мы обязательно подберем нужный объект по самым выгодным условиям на рынке коммерческой недвижимости!

⭐ Добавьте объявление в Избранное, чтобы не потерять!

С Уважением, Тлевалдэ.
Недвижимость Северо-Запада.
показать все описание
Заинтересовал объект?
Оставьте свой номер - наш эксперт свяжется с Вами, ответит на все вопросы и запишет на просмотр
РАСПОЛОЖЕНИЕ ОБЪЕКТА НА КАРТЕ
Заинтересовал объект?
Оставьте свой номер - наш эксперт свяжется с Вами, ответит на все вопросы и запишет на просмотр
РАСПОЛОЖЕНИЕ ОБЪЕКТА НА КАРТЕ
Другие объекты компании
Продажа
235
15.05.2025
location_white Ленинградская обл, Сиверский гп, Строителей ул, 1а
Площадь
242.00 м²
Цена за м²
185 950 ₽
Этажей в здании
1
Этаж
1
Продажа
199
01.08.2025
location_white Санкт-Петербург г, Шелгунова ул, 12
Площадь
239.50 м²
Цена за м²
198 329 ₽
Этажей в здании
1
Этаж
1
Продажа
261
15.05.2025
location_white Санкт-Петербург г, Новоизмайловский пр-кт, 81к2
Площадь
1125.00 м²
Цена за м²
262 222 ₽
Этажей в здании
2
Этаж
1
Продажа
150
22.07.2024
location_white Ленинградская обл, Графская (История Парк тер.) ул, Графская (История Парк тер.) ул, 6
Площадь
118.10 м²
Цена за м²
251 735 ₽
Этажей в здании
25
Этаж
1