Продажа здания 570 м2

ОСЗ
Дата обновления - 17.11.2025
Итоговая цена 135 000 000 ₽ Итоговая цена
Стоимость за 1 м² 236 842 ₽
Стоимость за 1 м²
ОСЗ
Дата обновления - 17.11.2025

Продажа здания 570 м2

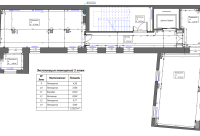
ХАРАКТЕРИСТИКИ ПОМЕЩЕНИЯ
Тип сделки
Продажа
Тип помещения
ОСЗ
Площадь помещения
570 м²
Этаж
1
Высота потолков
3.00 м
Отделка
Чистовая стандарт
ХАРАКТЕРИСТИКИ ЗДАНИЯ
Этажность
5
Парковка
Открытая
КОНСУЛЬТАЦИЯ НАШЕГО ЭКСПЕРТА
Тлевалдэ Шуканов
Эксперт проекта
Вы можете позвонить или написать мне в whatsapp:
или нажмите на кнопку, чтобы записаться на просмотр, и в ближайшее время я свяжусь с вами
ОПИСАНИЕ ОБЪЕКТА
⭐Предлагаем в продажу 5-ти этажное здание 570 м2 после реконструкции.

✅Основные характеристики:
• Площадь здания: 570 м2;
  Площадь этажа около 120 м2;
• Назначение здания - после реконструкции "научно-консультационный центр";
• Здание находится внутри закрытого двора. Вход и окна выходят во двор. С Греческого проспекта виден задний фасад здания;
• Земельный участок под зданием 180 м2 в собственности, прилегающая земля в собственности города;
• 1-3 этаж кирпично-монолитные, 4-5 этаж монолитные, фасадные стены- газобетон;
• Была произведена реконструкция здания , фундамент бутовый усиленный железобетоном;
• Все перекрытия монолитные, кровля плоская наплавляемая, утеплённая;
• Фасад 1,2 этаж - вентилируемый, 3-5 этажи оштукатуривание по утеплителю;
• Внутренняя отделка здания "черновая". Установлен грузопассажирский лифт "otis";
• Мощность электросети: грщ внутри здания, мощность до 48 Квт;
• Канализация централизованная. Водоснабжение хвс и гвс централизованное. Отопление централизованное (радиаторы и конвектора);
• Этаж: 1-5;
• Подвал отсутствует;
• Центральный район, ул. 3я Советская д.4 лит.Б;
• Удалённость от метро "Площадь Востания" - 650 м (пешком 7 мин). Любой общественный транспорт в доступе;

⭐Стоимость, условия сделки:
• Цена продажи: 135 000 000 рублей;
• Ориентировочная дата ввода в эксплуатацию январь-февраль 2026 г;


☎ Звоните, организуем просмотр в удобное Вам время.

⭐ Мы – АГЕНТСТВО НЕДВИЖИМОСТИ СЕВЕРО-ЗАПАДА – лидирующий эксперт рынка недвижимости Санкт-Петербурга и Ленинградской области.
Наши агенты закрывают более 300 сделок в год.
Мы строим долгосрочные деловые отношения на основе принципов честности и качественного сервиса с нашими клиентами.
⭐ Работая с нами, вы получите:
✅ Высокое качество сопровождения сделки от начала и до конца;
✅ Широкий спектр сопутствующих услуг;
✅ Оптимизацию ваших расходов при заключении сделки;
✅ Экономию Ваших нервов и времени при переговорах;
✅ Доступ к уникальной базе объектов, многие из которых отсутствуют в открытой рекламе;
✅ Помогаем оформлять ипотеку!

⭐Заходите в наш профиль, чтобы ознакомиться с нашими актуальными предложениями!
Если не нашли в нашем профиле то, что Вам подходит – позвоните ☎, и мы обязательно подберем нужный объект по самым выгодным условиям на рынке коммерческой недвижимости!

⭐ Добавьте объявление в Избранное, чтобы не потерять!

С Уважением, Тлевалдэ.
Недвижимость Северо-Запада.
показать все описание
Заинтересовал объект?
Оставьте свой номер - наш эксперт свяжется с Вами, ответит на все вопросы и запишет на просмотр
РАСПОЛОЖЕНИЕ ОБЪЕКТА НА КАРТЕ
Заинтересовал объект?
Оставьте свой номер - наш эксперт свяжется с Вами, ответит на все вопросы и запишет на просмотр
РАСПОЛОЖЕНИЕ ОБЪЕКТА НА КАРТЕ
Другие объекты компании
Аренда
161
08.08.2025
location_white Санкт-Петербург г, Гангутская ул, 8
Площадь
250.00 м²
Цена за м²
1 780 ₽
Этажей в здании
2
Этаж
2
Продажа
43
16.10.2023
location_white Ленинградская обл, Бугры п, Тихая ул, 13к1
Площадь
119.30 м²
Цена за м²
259 849 ₽
Этажей в здании
16
Этаж
1
Аренда
Архив
0
04.03.2025
location_white Санкт-Петербург г, Обуховской Обороны пр-кт, 112к2 литИ
Площадь
161.80 м²
Цена за м²
1 500 ₽
Этажей в здании
8
Этаж
5
Продажа
243
25.03.2025
Площадь
2448.00 м²
Цена за м²
3 703 ₽
Этаж
1