Торговое помещение с арендатором

ПСН
Дата обновления - 04.05.2026
Итоговая цена 31 500 000 ₽ Итоговая цена
Стоимость за 1 м² 150 000 ₽
Стоимость за 1 м²
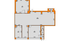
Площадь помещения
210 м²
ПСН
Дата обновления - 04.05.2026

Торговое помещение с арендатором

ХАРАКТЕРИСТИКИ ПОМЕЩЕНИЯ
Тип сделки
Продажа
Тип помещения
ПСН
Площадь помещения
210 м²
Этаж
1
Высота потолков
3.00 м
Отделка
Чистовая стандарт
ХАРАКТЕРИСТИКИ ЗДАНИЯ
Этажность
5
Парковка
Открытая
КОНСУЛЬТАЦИЯ НАШЕГО ЭКСПЕРТА
Михаил Лунев
Эксперт проекта
Вы можете позвонить или написать мне в whatsapp:
или нажмите на кнопку, чтобы записаться на просмотр, и в ближайшее время я свяжусь с вами
ОПИСАНИЕ ОБЪЕКТА
⭐ Предлагаем в продажу помещение с ремонтом площадью 210 м2 с надежным арендатором.

✅ Основные характеристики:
• Площадь: 210 м2;
• Мощность электросети: 25 кВт;
• Высота потолков: 3 м;
• Этаж: 1;

⭐ Стоимость, условия сделки:
• Цена объекта - 31 500 000 рублей, 150 000 рублей за 1 м2;
• МАП - 256 000 руб.мес.;
• Арендатор - Сервис шлангов, арендатор снимает 11 лет, индексация 10%;
• Взнос по 1 этажу сейчас составляет 220 рублей за 1 м2, в эту сумму входит всё и даже отопление. Выходит 46 200 руб, оплачивает собственник помещения.
• Окупаемость: 9,3 лет с индексацией 10%, без учета индексации 10,2 лет;
• Доходность: 10,7% с индексацией, без 9,7%.


✅ Описание:
• Высокий пешеходный и автомобильный трафик;
• Отдельный вход;
• Большие окна;
• Вывеска, места под рекламу;
• Помещение в хорошем состоянии;
• Все коммуникации: телефонные линии, водоснабжение, канализация, теплоснабжение;
• Юр. статус: собственность.

✅ Подойдет под любой вид деятельности;

☎ Звоните, организуем просмотр в удобное Вам время.

⭐ Мы – АГЕНТСТВО НЕДВИЖИМОСТИ СЕВЕРО-ЗАПАДА – лидирующий эксперт рынка недвижимости Санкт-Петербурга и Ленинградской области.
Наши агенты закрывают более 300 сделок в год.
Мы строим долгосрочные деловые отношения на основе принципов честности и качественного сервиса с нашими клиентами.
⭐ Работая с нами, вы получите:
✅ Высокое качество сопровождения сделки от начала и до конца;
✅ Широкий спектр сопутствующих услуг;
✅ Оптимизацию ваших расходов при заключении сделки;
✅ Экономию Ваших нервов и времени при переговорах;
✅ Доступ к уникальной базе объектов, многие из которых отсутствуют в открытой рекламе;
✅ Помогаем оформлять ипотеку!

⭐Заходите в наш профиль, чтобы ознакомиться с нашими актуальными предложениями!
Если не нашли в нашем профиле то, что Вам подходит – позвоните ☎, и мы обязательно подберем нужный объект по самым выгодным условиям на рынке коммерческой недвижимости!

⭐ Добавьте объявление в Избранное, чтобы не потерять!

С Уважением, Дмитрий Утробин.
Недвижимость Северо-Запада.
показать все описание
Заинтересовал объект?
Оставьте свой номер - наш эксперт свяжется с Вами, ответит на все вопросы и запишет на просмотр
РАСПОЛОЖЕНИЕ ОБЪЕКТА НА КАРТЕ
Заинтересовал объект?
Оставьте свой номер - наш эксперт свяжется с Вами, ответит на все вопросы и запишет на просмотр
РАСПОЛОЖЕНИЕ ОБЪЕКТА НА КАРТЕ
Другие объекты компании
Продажа
83
25.02.2026
location_white Санкт-Петербург г, Авиаконструкторов пр-кт, 54
Площадь
40.00 м²
Цена за м²
437 500 ₽
Этажей в здании
1
Этаж
1
Продажа
Архив
24
09.03.2023
location_white Санкт-Петербург г, Караваевская ул, 23 А
Площадь
4596.00 м²
Цена за м²
97 911 ₽
Этажей в здании
4
Этаж
1
Аренда
Архив
4
25.09.2025
location_white Санкт-Петербург г, Канала Грибоедова наб, 130
Площадь
146.00 м²
Цена за м²
1 301 ₽
Этажей в здании
5
Этаж
3
Продажа
76
11.03.2026
location_white Ленинградская обл, Орехово п. ж/д ст., Главная ул, 50/1
Площадь
55.00 м²
Цена за м²
360 000 ₽
Этажей в здании
1
Этаж
1