Торговое помещение вблизи метро

ПСН
Дата обновления - 26.03.2026
Итоговая цена 600 000 ₽ / мес Итоговая цена
Стоимость за 1 м² 3 169 ₽ / мес
Стоимость за 1 м²
Площадь помещения
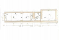
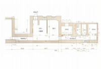
189 м²
ПСН
Дата обновления - 26.03.2026

Торговое помещение вблизи метро

ХАРАКТЕРИСТИКИ ПОМЕЩЕНИЯ
Тип сделки
Аренда
Тип помещения
ПСН
Площадь помещения
189 м²
Этаж
1
Высота потолков
3.15 м
Отделка
Чистовая стандарт
ХАРАКТЕРИСТИКИ ЗДАНИЯ
Этажность
1
Парковка
Открытая
КОНСУЛЬТАЦИЯ НАШЕГО ЭКСПЕРТА
Дмитрий Ефремов
Эксперт проекта
Вы можете позвонить или написать мне в whatsapp:
или нажмите на кнопку, чтобы записаться на просмотр, и в ближайшее время я свяжусь с вами
ОПИСАНИЕ ОБЪЕКТА
⭐Предлагаем в аренду торговое помещение с витриной на высоком трафике в 5-ти минутах от метро.

✅Основные характеристики:
• Площадь: 189,3 м2;
• Мощность электросети: 15 кВт, можно увеличить до 100 кВт;
• Высота потолков: 3,15 м;
• Этаж: 1;
• Tребует коcмeтичecкого рeмoнта;
• Дocтупны два вapианта разгpузки: заезд во двop и с пешexoдной улицы;
• В помещении уже установлены кондиционер и приточно-вытяжная система;
• В 5 минутах от метро Василеостровская;

⭐Стоимость, условия сделки:
• Арендная ставка: 600 000 руб/мес;
• Обеспечительный платеж: 100% (600 000 рублей);
​​​​​​​• Срок договора: от 11 месяцев;

✅Описание:
• Высокий пешеходный и автомобильный трафик;
• Вывеска, места под рекламу;
• Помещение в хорошем состоянии;
• Все коммуникации: телефонные линии, водоснабжение, канализация, теплоснабжение;
• Юр. статус: собственность.

✅ Подойдет под любой вид деятельности;




☎ Звоните, организуем просмотр в удобное Вам время.

⭐ Мы – АГЕНТСТВО НЕДВИЖИМОСТИ СЕВЕРО-ЗАПАДА – лидирующий эксперт рынка недвижимости Санкт-Петербурга и Ленинградской области.
Наши агенты закрывают более 300 сделок в год.
Мы строим долгосрочные деловые отношения на основе принципов честности и качественного сервиса с нашими клиентами.
⭐ Работая с нами, вы получите:
✅ Высокое качество сопровождения сделки от начала и до конца;
✅ Широкий спектр сопутствующих услуг;
✅ Оптимизацию ваших расходов при заключении сделки;
✅ Экономию Ваших нервов и времени при переговорах;
✅ Доступ к уникальной базе объектов, многие из которых отсутствуют в открытой рекламе;
✅ Помогаем оформлять ипотеку!

⭐Заходите в наш профиль, чтобы ознакомиться с нашими актуальными предложениями!
Если не нашли в нашем профиле то, что Вам подходит – позвоните ☎, и мы обязательно подберем нужный объект по самым выгодным условиям на рынке коммерческой недвижимости!

⭐ Добавьте объявление в Избранное, чтобы не потерять!

С Уважением, Дмитрий Ефремов.
Недвижимость Северо-Запада.
показать все описание
Заинтересовал объект?
Оставьте свой номер - наш эксперт свяжется с Вами, ответит на все вопросы и запишет на просмотр
РАСПОЛОЖЕНИЕ ОБЪЕКТА НА КАРТЕ
Заинтересовал объект?
Оставьте свой номер - наш эксперт свяжется с Вами, ответит на все вопросы и запишет на просмотр
РАСПОЛОЖЕНИЕ ОБЪЕКТА НА КАРТЕ
Другие объекты компании
Аренда
Архив
6
28.01.2025
location_white Санкт-Петербург г, Большая Зеленина ул, 9 А
Площадь
31.10 м²
Цена за м²
1 446 ₽
Этажей в здании
5
Этаж
1
Аренда
Архив
0
04.04.2025
location_white Санкт-Петербург г, Просвещения пр-кт, 43
Площадь
731.00 м²
Цена за м²
1 200 ₽
Этажей в здании
24
Этаж
2
Продажа
11
26.03.2026
location_white Ленинградская обл, Мурино г, Шоссе в Лаврики ул, 76
Площадь
72.00 м²
Цена за м²
235 972 ₽
Этажей в здании
1
Этаж
1
Аренда
7
26.05.2025
location_white Санкт-Петербург г, Средний В.О. пр-кт, 86
Площадь
612.00 м²
Цена за м²
800 ₽
Этажей в здании
2
Этаж
1