Здание с арендаторами. Окупаемость 9 лет

ОСЗ
Дата обновления - 22.10.2025
Итоговая цена 159 000 000 ₽ Итоговая цена
Стоимость за 1 м² 183 815 ₽
Стоимость за 1 м²
ОСЗ
Дата обновления - 22.10.2025

Здание с арендаторами. Окупаемость 9 лет

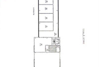
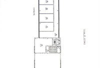
ХАРАКТЕРИСТИКИ ПОМЕЩЕНИЯ
Тип сделки
Продажа
Тип помещения
ОСЗ
Площадь помещения
865 м²
Этаж
1
Высота потолков
4.00 м
Отделка
Чистовая стандарт
ХАРАКТЕРИСТИКИ ЗДАНИЯ
Этажность
2
Парковка
Открытая
КОНСУЛЬТАЦИЯ НАШЕГО ЭКСПЕРТА
КОМПАНИИ БАЗА
Эксперт проекта
Вы можете позвонить или написать мне в whatsapp:
или нажмите на кнопку, чтобы записаться на просмотр, и в ближайшее время я свяжусь с вами
ОПИСАНИЕ ОБЪЕКТА
ОТ СОБСТВЕННИКА, БЕЗ КОМИССИЙ. 
⭐Предлагаю в продажу готовый арендный бизнес. Здание от собственника. Oкупaeмocть 10 лет, с возможностью сокращения cpoков.

✅Основные характеристики:
• Площади:
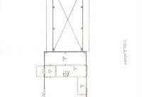
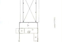
• Здание 865 м2 (собственность на юр. лице);
• Земля - 1820 м2 (в аренде у города на 49 лет с возможностью выкупа);
• Мощность электросети: 100 кВт;
• Высота потолков: 4 метра;
• Этаж: 1-2; Возможность увеличения площади за счет надстройки 3-го этажа;
• В 5 минутах от метро Автово;


⭐Стоимость, условия сделки:
• Стоимость продажи 159 000 000 рублей УСН;
• Арендный поток от 1,8 до 2,5 млн рублей в месяц по году;


✅Описание:

Собственная котельная на газу (проведён газ официально);

Водоснабжение - ХВС городское

Канализация - городская

Системы пожарной безопасности.

Быстрый выход на сделку, документы готовы.

• Высокий автомобильный трафик;
• Отдельные входа;
• Витринные окна;
• Вывеска, места под рекламу;
• Помещение в хорошем состоянии;
• Все коммуникации: телефонные линии, водоснабжение, канализация, теплоснабжение;

✅ Подойдет под любой вид деятельности;

☎ Звоните, организуем просмотр в удобное Вам время.

⭐ Добавьте объявление в Избранное, чтобы не потерять!

С Уважением, Тлевалдэ.
Недвижимость Северо-Запада.
показать все описание
Заинтересовал объект?
Оставьте свой номер - наш эксперт свяжется с Вами, ответит на все вопросы и запишет на просмотр
РАСПОЛОЖЕНИЕ ОБЪЕКТА НА КАРТЕ
Заинтересовал объект?
Оставьте свой номер - наш эксперт свяжется с Вами, ответит на все вопросы и запишет на просмотр
РАСПОЛОЖЕНИЕ ОБЪЕКТА НА КАРТЕ
Другие объекты компании
Продажа
114
16.10.2025
location_white Ленинградская обл, деревня Заостровье, пер. Новый, 4
Площадь
555.00 м²
Цена за м²
135 135 ₽
Этажей в здании
1
Этаж
1
Аренда
Архив
0
31.01.2025
location_white Красное Село г, Юных пионеров ул, 38
Площадь
386.00 м²
Цена за м²
900 ₽
Этажей в здании
1
Этаж
1
Аренда
0
28.11.2024
location_white Санкт-Петербург г, Заводская (Усть-Славянка тер.) ул, 15
Площадь
120.40 м²
Цена за м²
900 ₽
Этажей в здании
24
Этаж
1
Продажа
Архив
0
30.04.2025
location_white Санкт-Петербург г, Измайловский б-р, 1к2 стр 1
Площадь
131.50 м²
Цена за м²
600 182 ₽
Этажей в здании
1
Этаж
1